Baroque Admitted: Obelisk Winery by AiD
Foto: BoysPlayNice
The town of Valtice, which is known for its Baroque castle and for its excellent conditions for viticulture, lies about halfway between Brno and Vienna. The architects from the AiD team have created a winery on a slope; the building invites visitors to learn about wine production and sample the results. A border post once stood on this land, which offers a strategically valuable view of the Pálava Hills. Today, the landscape is tended as lovingly as the vineyards and counts among the region’s most significant sources of income.
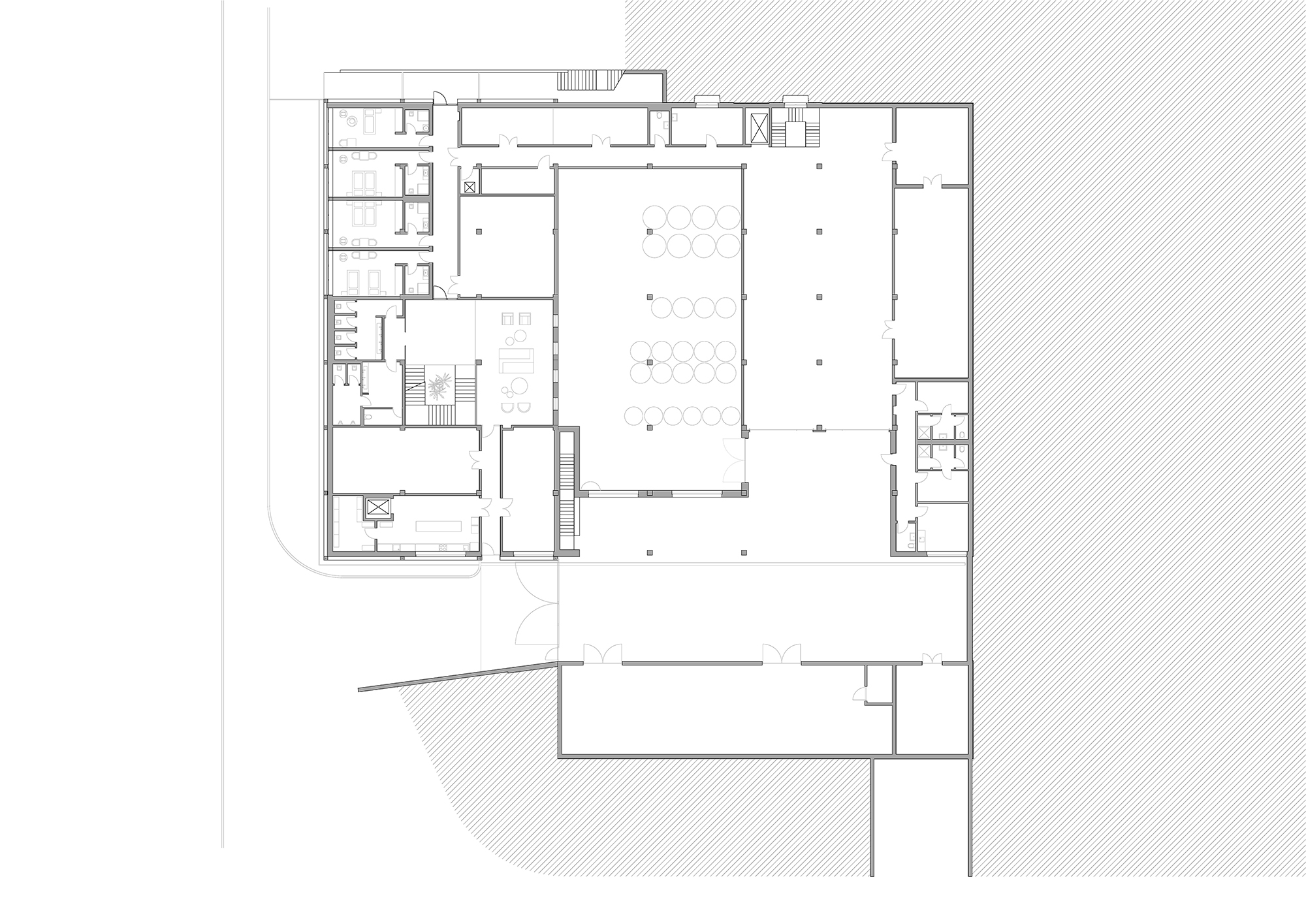
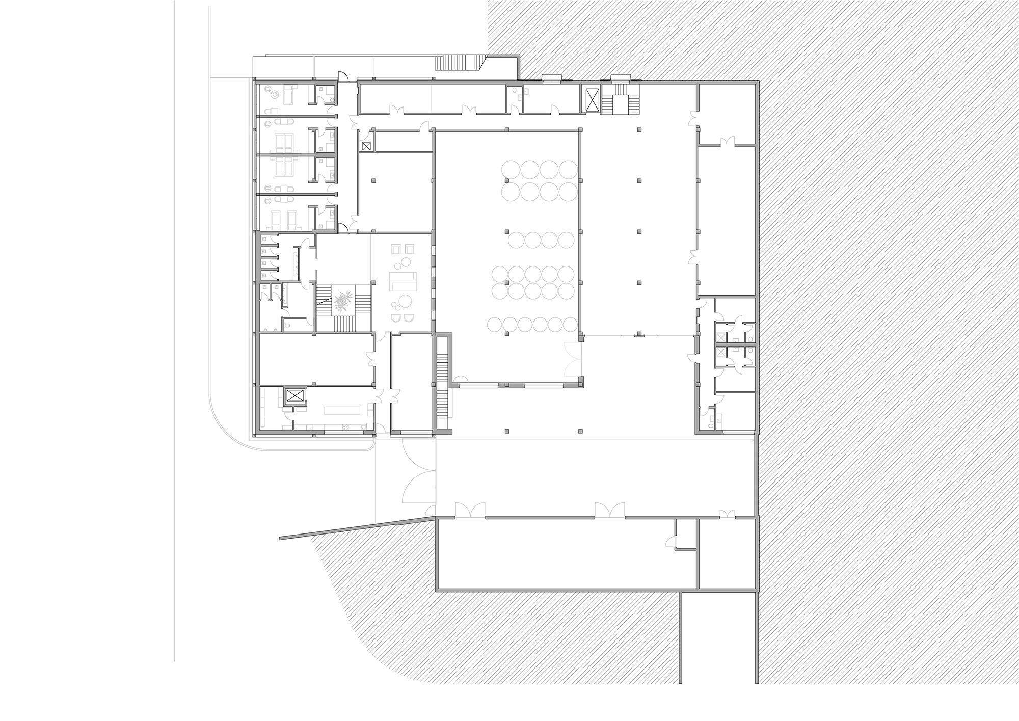
The winery is divided into two areas. The largest part of the building lies underground. This is where the wine is produced and stored. Above ground, impressive rooms offer space for tastings, celebrations and sales. Thanks to the slope, the first subterranean level appears as the base of the winery. This is home to four rooms for overnight guests, who thus have access to daylight.
The building is enrobed in a structure of exposed concrete. Fine supports at equal distances bear the jutting roof plate, forming monumental colonnades around the winery. The interior design is also inspired by the Baroque castle near the winery; it interprets the stylistic elements as a contemporary, reduced architectural language. In the hall, the ceiling is adorned with inlays featuring motifs from viticulture. In contrast, the design is quite restrained in terms of forms and materials. The supporting structure of square, exposed-concrete supports reappears indoors as well. Extensive glazing allows a direct view over the adjacent vineyards. A glass balustrade allows daylight to flood into the spacious, open stairway.
The same materials are used on the lower levels. Visitors walk on wooden floors to enter the glassed-in production area, where the metal machines stand in front of rough exposed-concrete walls.
Further information:
Photographer: BoysPlayNice




























