A Crowning Hipped Roof: Haus Rühlstrasse by Alex Lehnerer
Foto: Tobias Wootton
Im Erlanger Stadtteil Sieglitzhof entstand in den 1960er-Jahren eine Wohnsiedlung aus Bungalows. Um den hufeisenförmigen Straßenverlauf der Rühlstraße herum sitzen die Baukörper mit Walmdächern und großzügigen Gartenanlagen. Auch auf dem Grundstück des Projekts existierte ein Vorgängerbau, in dem die Großeltern der Familie lebten. Der Neubau von Alex Lehnerer zitiert die Dachform, aber hebt sich im Hinblick auf die Grundrissorganisation deutlich ab.
Innenraumgestaltung und Organisation
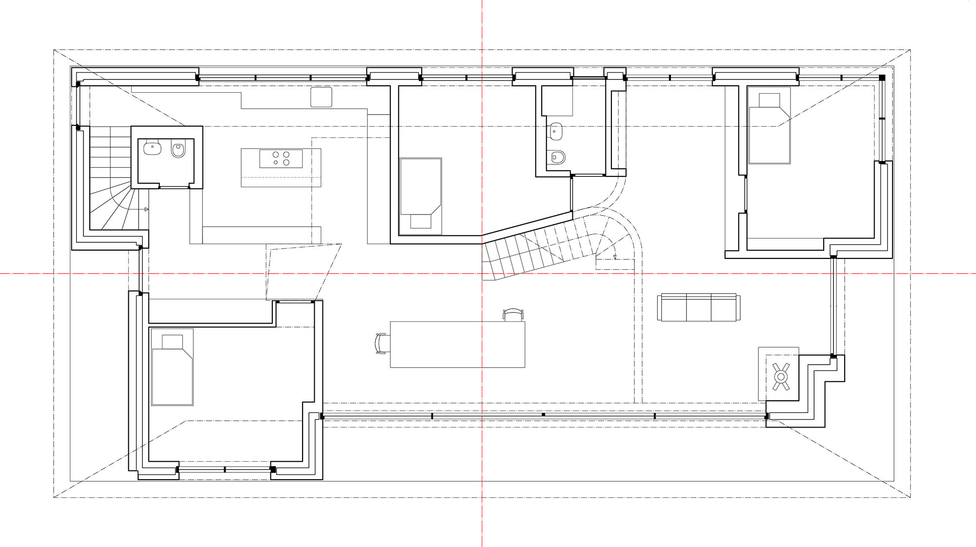
Anders als beim streng gerasterten Vorgängerbau mit voneinander abgetrennten Räumen eröffnen sich im neuen Äquivalent weite, offene Bereiche. Im Erdgeschoss sind die Kinderzimmer um den zentralen Wohnbereich herum angeordnet. Den Eltern bleiben die ruhigen Räume im ausgebauten Dach.
Ein Wechselspiel von einzelnen monolithischen Sichtbetonwänden und verglasten Flächen ermöglicht einen hohen Anteil an Tageslicht im Innenraum. Stellenweise tauchen auch Elemente aus Holz auf: in Türen, Einbauregalen und akzentuiert eingeschobenen Innenwänden. Der so entstehende Kontrast zwischen kühlem Grau und warmen Brauntönen ergibt ein ausbalanciertes Farb- und Materialkonzept. Ein kleines persönliches Detail ist in eine Wandnische eingelassen: eine hölzerne Madonna.
Äußere Hülle
Von außen dominiert das Fußwalmdach mit Wellblecheindeckung die Gestaltung. Die Traufe sitzt tief über dem Erdgeschoss und kragt weit über die Fassade hinaus. Das Obergeschoss befindet sich im Dachraum und profitiert von hohen Fensterflächen in den Giebeldreiecken. Bei dem Entwurf wurde sichtbar das Ziel verfolgt, die wesentlichen Merkmale des Wohnviertels und des Vorgängerbaus mit modernen Ansprüchen zu verknüpfen. Daher fügt sich das Haus sensibel in seine Umgebung ein.













