// Check if the article Layout ?>
Beneath the Pavement, Art: Amos Rex Museum in Helsinki
Foto: Mika Huisman
Amos Anderson was a Finnish MP, businessman, publisher and art collector. The collection at the Amos Rex Museum in the Finnish capital – consisting primarily of art from the 20th and 21st centuries as well as finds from ancient cultures – are based to a large extent on his collections. In 1940, Anderson established the foundation that has now financed the new construction for “his” museum.
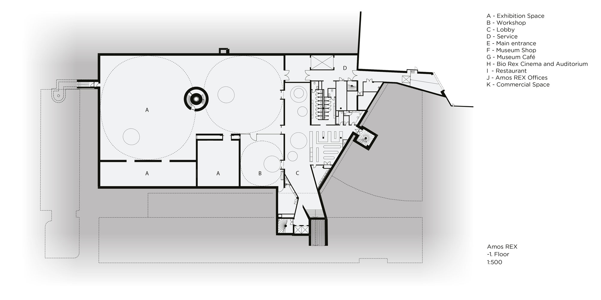
The location could not be more prominent: the museum is inside and underneath the square in front of the Lasipalatsi (glass palace), kitty-corner to the Finnish parliament buildings. Viljo Revell, Heimo Riihimäki and Niilo Kokko designed the building in 1936 as a temporary pleasure pavilion for the 1940 Summer Olympics, which were later postponed until 1952. Contrary to its original purpose, the Lasipalatsi has remained as a Helsinki landmark, attracting customers with its shops, restaurants and the Bio Rex cinema. But it had become dilapidated and already undergone several restoration projects.
With the latest refurbishment by JKMM, a new user has moved into the glass palace. In future, the Amos Anderson Art Museum will occupy around half the building, including the cinema, as accommodation for its administration offices and museum shop. For the exhibitions, JKMM have created a new structure under the square in front of the historical building. The large cupolas with round skylights and concrete tiling now jut above the asphalt surface, forming an Eldorado for skateboarders and playing children. The large exhibition hall beneath the square has an area of nearly 1,000 square metres; at its highest point, it is 9.45 metres high.
The cupolas are made of 20-centimetre reinforced concrete with surrounding prestressed-concrete ring anchors which bear the shear strain. Over this, the architects applied a thick layer of insulation and a fill of granulated glass foam. Finally, a second layer of 12-centimetre-thick exposed concrete forms the base for the covering of tiles and asphalt.
The location could not be more prominent: the museum is inside and underneath the square in front of the Lasipalatsi (glass palace), kitty-corner to the Finnish parliament buildings. Viljo Revell, Heimo Riihimäki and Niilo Kokko designed the building in 1936 as a temporary pleasure pavilion for the 1940 Summer Olympics, which were later postponed until 1952. Contrary to its original purpose, the Lasipalatsi has remained as a Helsinki landmark, attracting customers with its shops, restaurants and the Bio Rex cinema. But it had become dilapidated and already undergone several restoration projects.
With the latest refurbishment by JKMM, a new user has moved into the glass palace. In future, the Amos Anderson Art Museum will occupy around half the building, including the cinema, as accommodation for its administration offices and museum shop. For the exhibitions, JKMM have created a new structure under the square in front of the historical building. The large cupolas with round skylights and concrete tiling now jut above the asphalt surface, forming an Eldorado for skateboarders and playing children. The large exhibition hall beneath the square has an area of nearly 1,000 square metres; at its highest point, it is 9.45 metres high.
The cupolas are made of 20-centimetre reinforced concrete with surrounding prestressed-concrete ring anchors which bear the shear strain. Over this, the architects applied a thick layer of insulation and a fill of granulated glass foam. Finally, a second layer of 12-centimetre-thick exposed concrete forms the base for the covering of tiles and asphalt.
Further information:
Project management: Haahtela-rakennuttaminen Oy
Structural engineering: Sipti Oy, Sweco Rakennetekniikka Oy (Kuppeln)
HVAC planning: Ramboll Talotekniikka Oy
Electrical engineering: Ramboll Talotekniikka Oy
Room acoustics, noise protection: Ins.tsto Heikki Helimäki Oy / Helimäki Akustikot
Fire safety: L2 Paloturvallisuus Oy
Project management: Haahtela-rakennuttaminen Oy
Structural engineering: Sipti Oy, Sweco Rakennetekniikka Oy (Kuppeln)
HVAC planning: Ramboll Talotekniikka Oy
Electrical engineering: Ramboll Talotekniikka Oy
Room acoustics, noise protection: Ins.tsto Heikki Helimäki Oy / Helimäki Akustikot
Fire safety: L2 Paloturvallisuus Oy















































