Movable backdrops: Event hall in Valencia
Foto: Mariela Apollonio
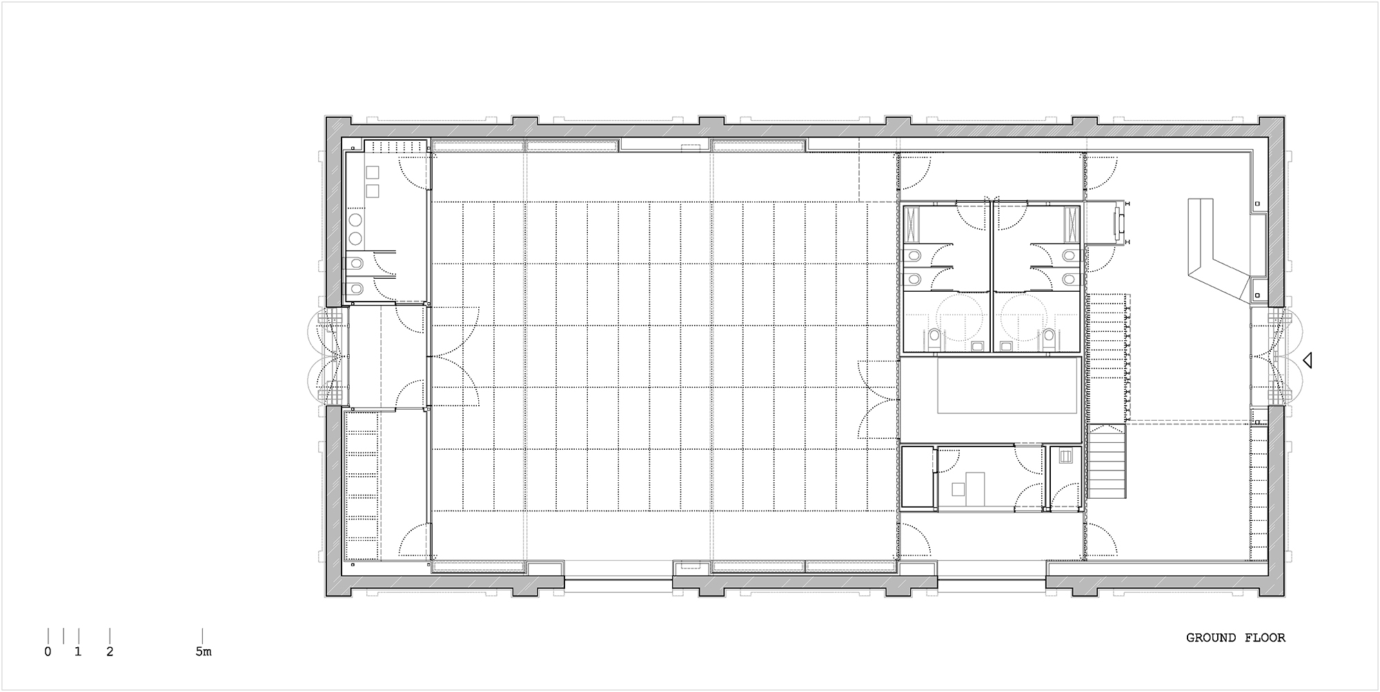
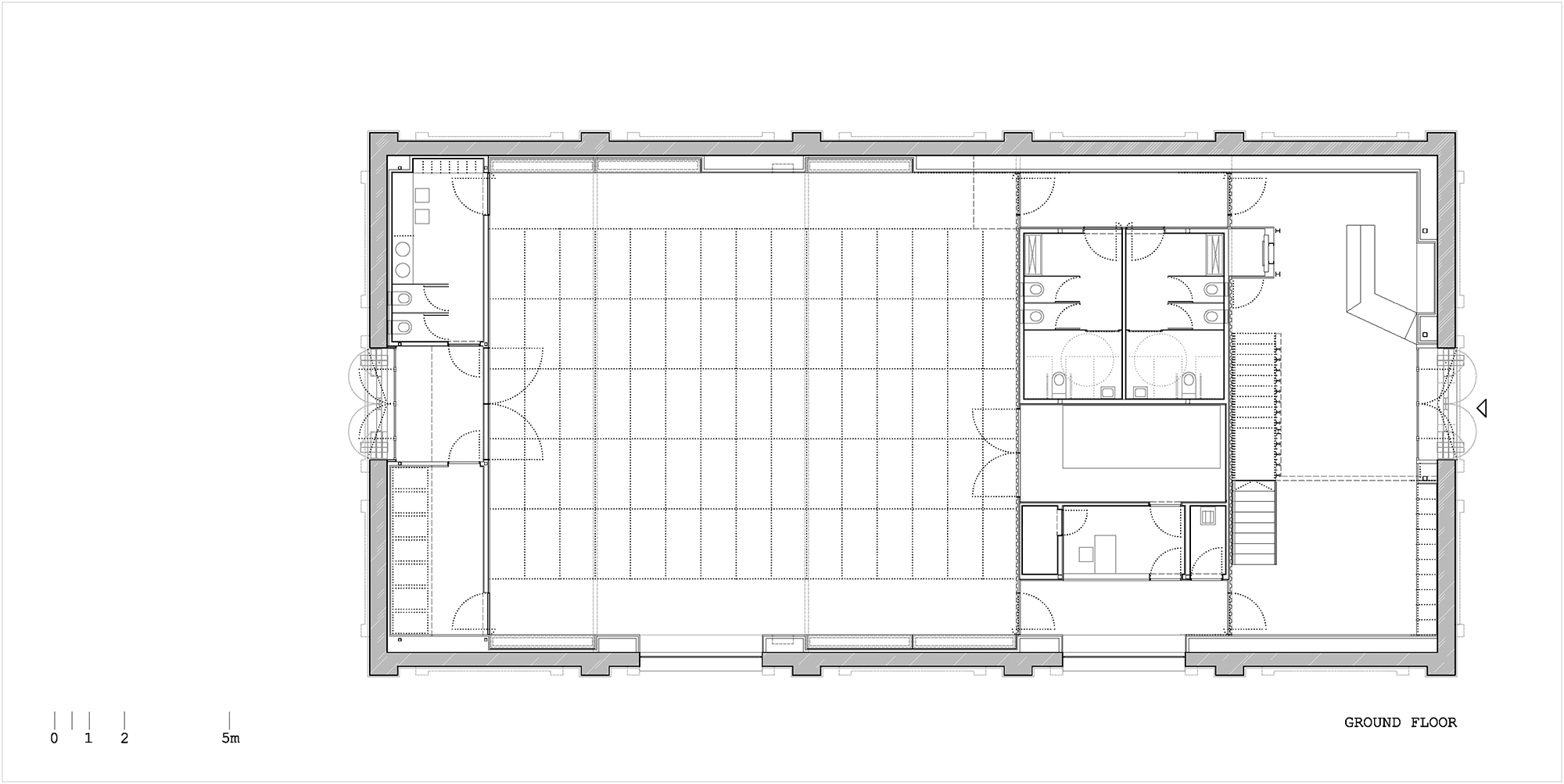
Rund um den Hauptbahnhof von Valencia wurden in den letzten Jahren Gleise zurückgebaut, alte Betriebsgebäude beseitigt und öffentlicher Raum für den neuen zentralen Park der Stadt gewonnen. Eine alte Lagerhalle aus dem Jahr 1917 blieb indes erhalten und ist in den letzten Jahren von Contell Martínez zum Veranstaltungsort umgebaut worden.
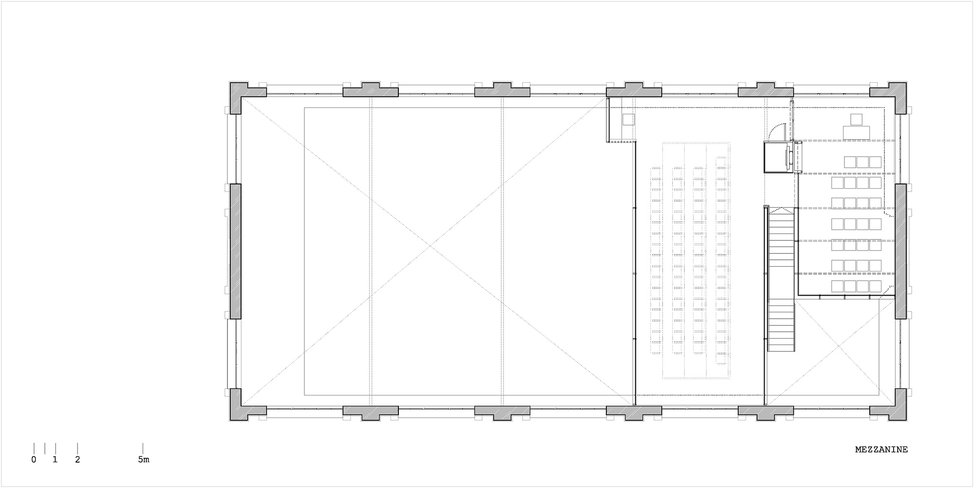
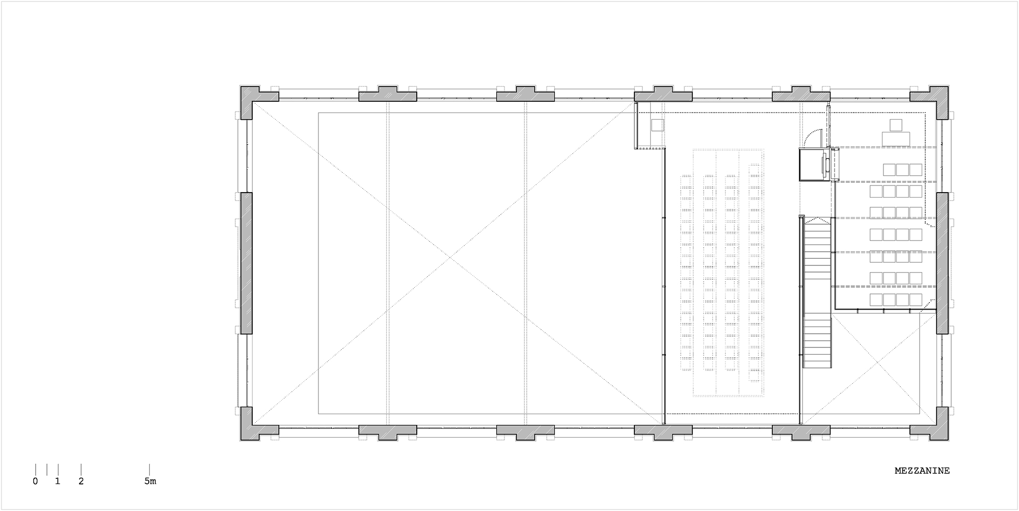
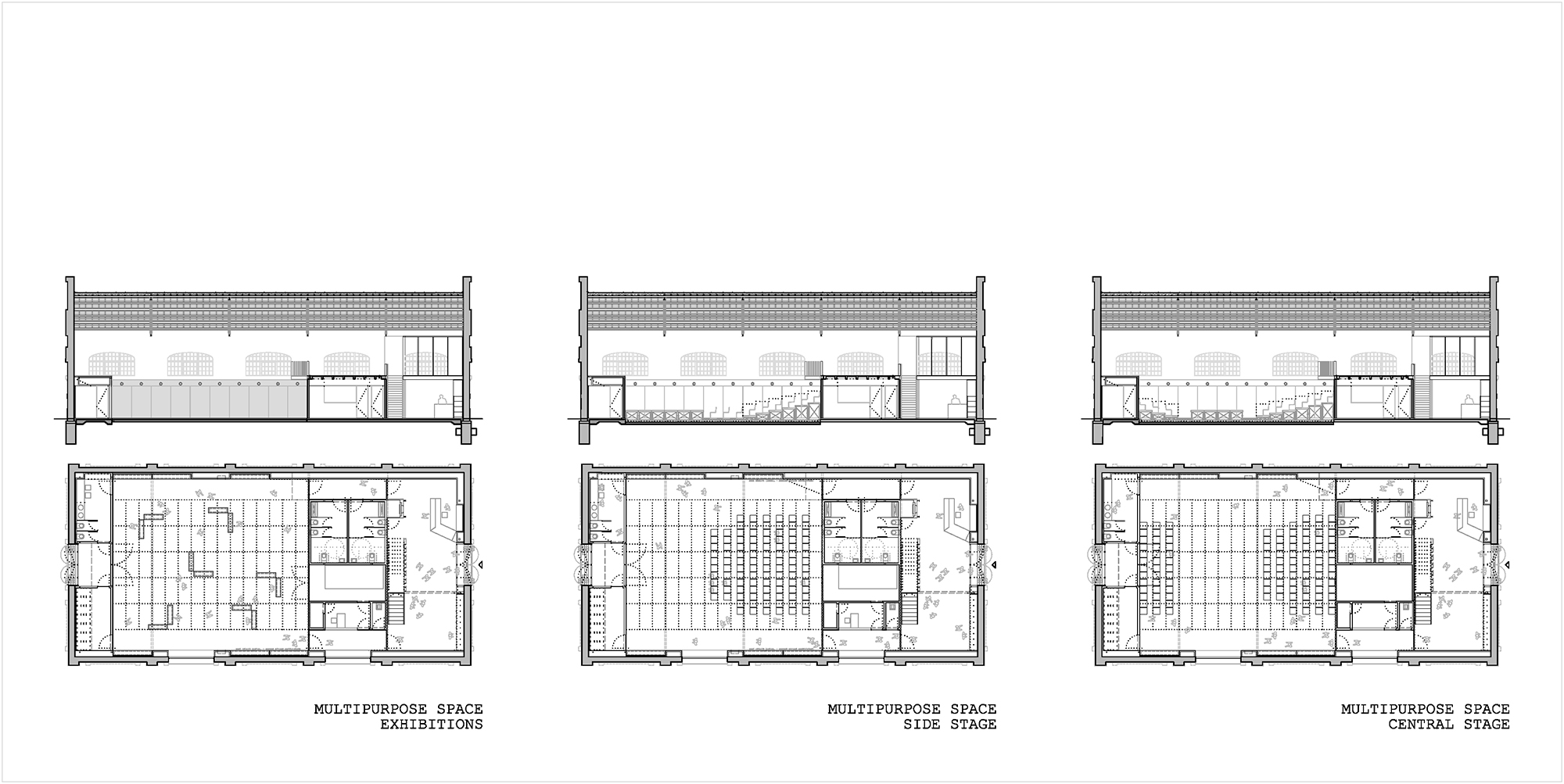
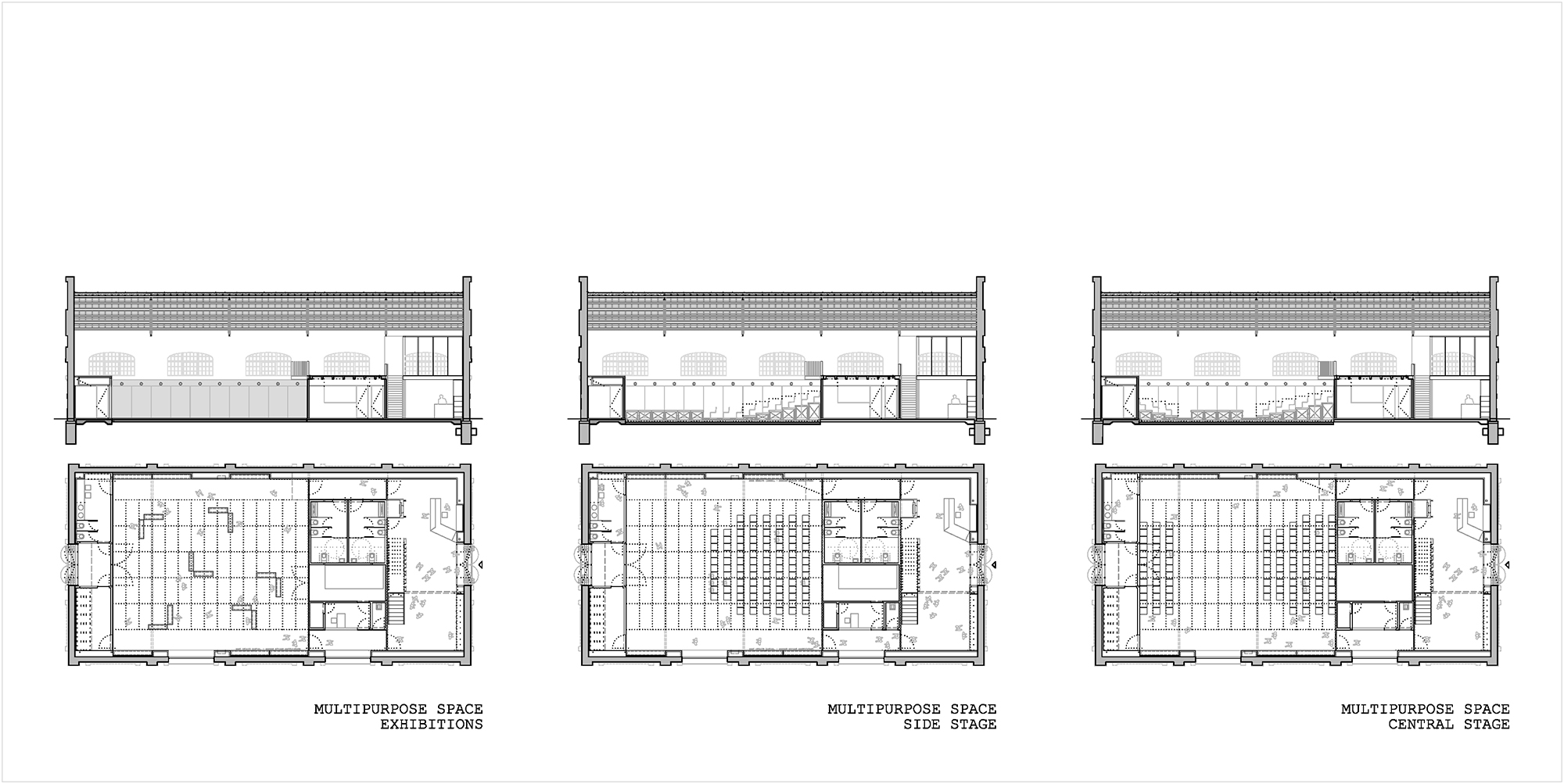
Betritt man das Gebäude von Osten durch den Haupteingang, trifft man dort zunächst auf einen Raumteiler aus wiederverwendeten Bahngleisen und Bewehrungsstählen. Er trennt den niedrigen Eingangsbereich von der dahinter liegenden Halle ab. Auf einer Zwischendecke über dem Eingang platzierten die Architekten einen rundum verglasten Besprechungsraum mit transluzenter Membrandecke.
Der neue Innenausbau folgt der durch die filigranen Dachbinder vorgegebenen, vagen Zonierung der Halle in fünf Joche. Das erste ist mit Empfangstresen, Schließfächern sowie einem Aufzug und einer Treppe hinauf zum neu geschaffenen Mezzanin belegt. Im zweiten Raumabschnitt folgt ein geschlossener Bereich mit WCs, Büro und Nebenräumen und dahinter der große Veranstaltungssaal. Ausziehtribünen und eine Art stählerner Wandschränke entlang der Längswände verleihen ihm seine Multifunktionalität. Die scheinbar so massiven Schränke stehen auf Rollen, sind vielfältig klapp- und schwenkbar und können so als Schließfächer, Empfangstresen, Raumteiler, Lagerflächen oder Künstlergarderoben genutzt werden. Ihre Lochblechfronten tragen zur Dämpfung der Raumakustik bei. Die Bleche stammen aus einem anderen Lagerhaus in der Nähe und die Abmessungen der Schränke folgen jenen des dort vorgefundenen Materials, um möglichst wenig Verschnitt zu produzieren.




















