// Check if the article Layout ?>
BI(h)OME
Photo: Nico Marques/ Photekt
In appearance the light and airy unit mainly brings a summer pavilion to mind, making it difficult to imagine the "house" in a colder climate than California's. Yet it is an important contribution to the current discussion on the constrained housing situation in big cities. In Los Angeles alone, at least 100,000 new apartments have to be built by 2021 according to the conurbation's mayor. As research by the UCLA students shows, however, every fifth of the city's 500,000 single-family homes has at least a backyard or garden – and thus a potential location for erecting the small dwelling unit.
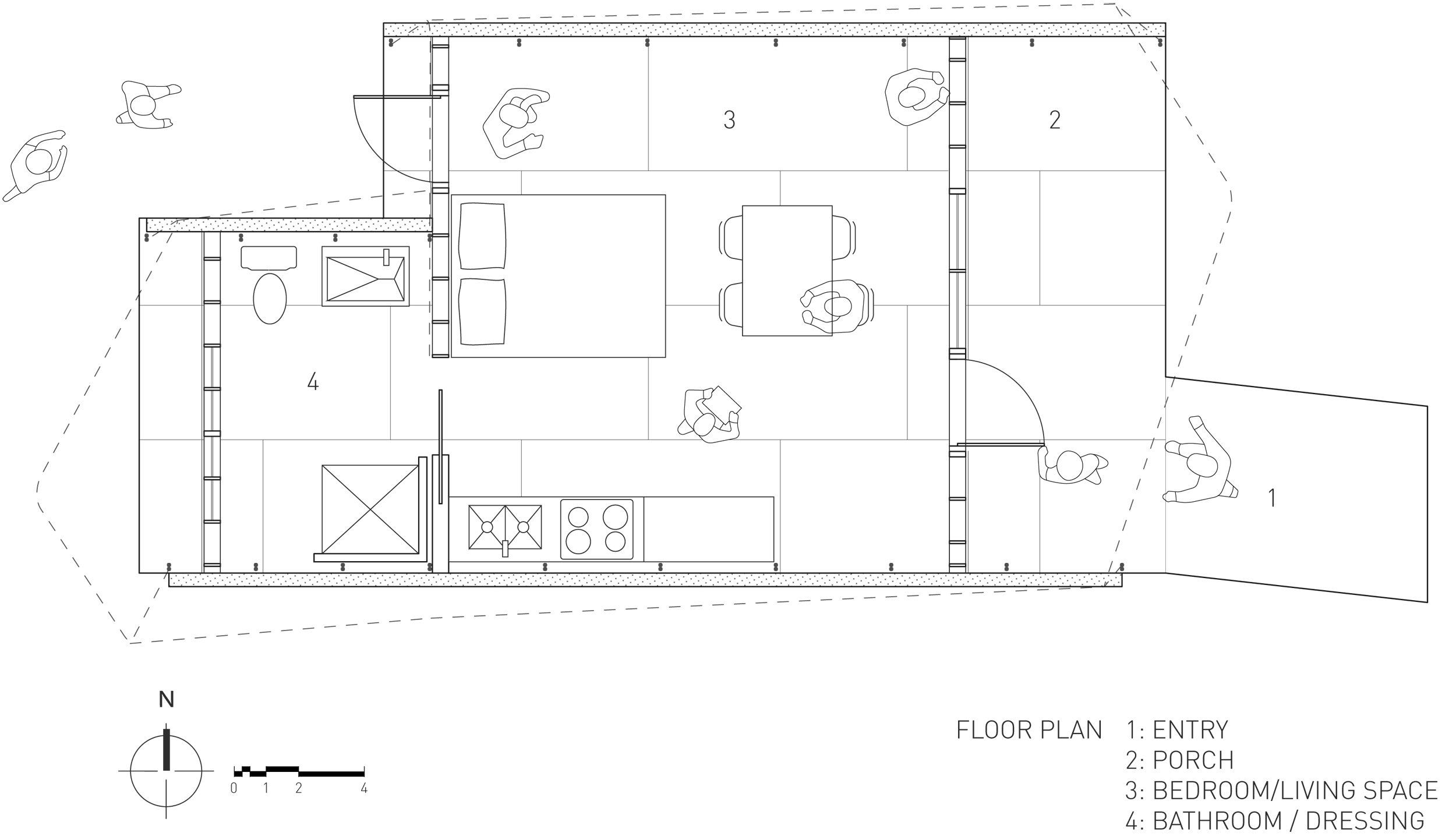
The students accordingly designed a prototype of the compact and lightweight structure, paying attention to aspects such as simplicity of construction to make the unit easy to erect and dismantle on the one hand and to enable recycling of the materials involved, such as wood, steel, foil and paper-based materials, on the other. The dwelling unit has a bedroom, kitchen and bathroom and features partition walls that do double duty as shelving or storage space. The first built version features plastic sheeting drawn over a frame of steel and wood and complemented with circular elements. Energy requirements are low due to the structure's total weight of 3.5 kg per square metre, and can be further decreased through use of photovoltaic cells on the outer skin. In mass production the unit would cost about US$ 55,000, comparable to the price of trailer home.













