// Check if the article Layout ?>
Bird-Watching on the Fjord: Tipperne Bird Sanctuary
Foto: Rasmus Norlander
Ringkøbing Fjord lies on the west coast of Denmark. The bird-watching and research centre now stands at the tip of a peninsula that cuts into the fjord. Every year, this place is a resting point for migratory birds; it is considered one of Europe’s oldest places where birds are counted. Public access used to be strictly limited. However, the changes introduced by Johansen Skovsted Arkitekter mean that more people can now enjoy the show without disturbing either the birds or the scientists.
Each of the new structures has its own character. The bird-watching cabin, the observation tower, the workshop, new paths and the research station are distributed over the grounds.
Ship’s masts and Construction
The observation tower consists of a steel frame that was manufactured at a local mast factory. Its open structure is made of triangular frames, each of which holds the vertical iron bars. These bars, which are 50 and 65 mm thick, bear the compressive forces of the construction, while those with a diameter of 22 mm form the railing and work against the tensile forces. Only on the top storey are all four walls closed in with panels of galvanized iron and translucent plastic. Windows can be closed depending whether the researchers must concentrate on counting or visitors want an unobstructed view of the birds.
Make a stop in the hiding place
Another triangular structure stands along the path that leads through the bird sanctuary. This building, made of 6-mm-thick Corten steel plates, differs from the tower in that it is nearly completely closed off and is firmly connected to the ground. Only a narrow slit in the upper portion offers the possibility to discreetly observe animal life up close. The reinforced edges made of installation profiles also serve as eavestroughs which divert rainwater into the surrounding terrain.
Wood construction meets aluminum
The third new building is the workshop, which was inspired by temporary hunting cabins. This simple wooden structure has been reinforced with inner aluminum plates measuring 3 mm in thickness. The light-coloured aluminum forms a colour contrast to the black-stained wood on the exterior. Light falls evenly into the workshop through translucent GRP panels.
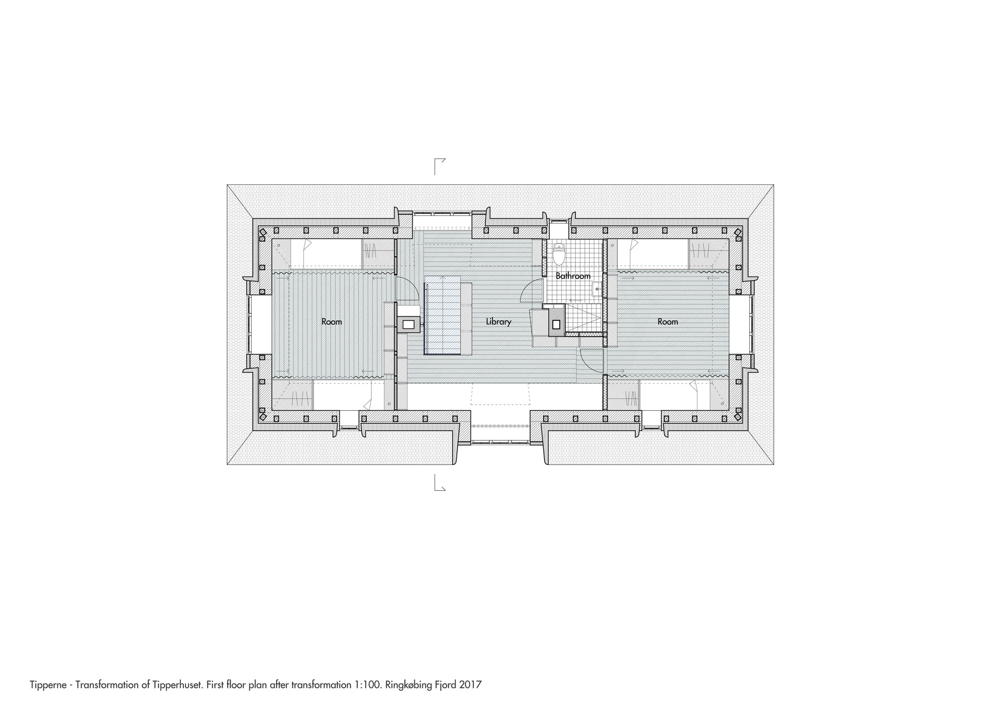
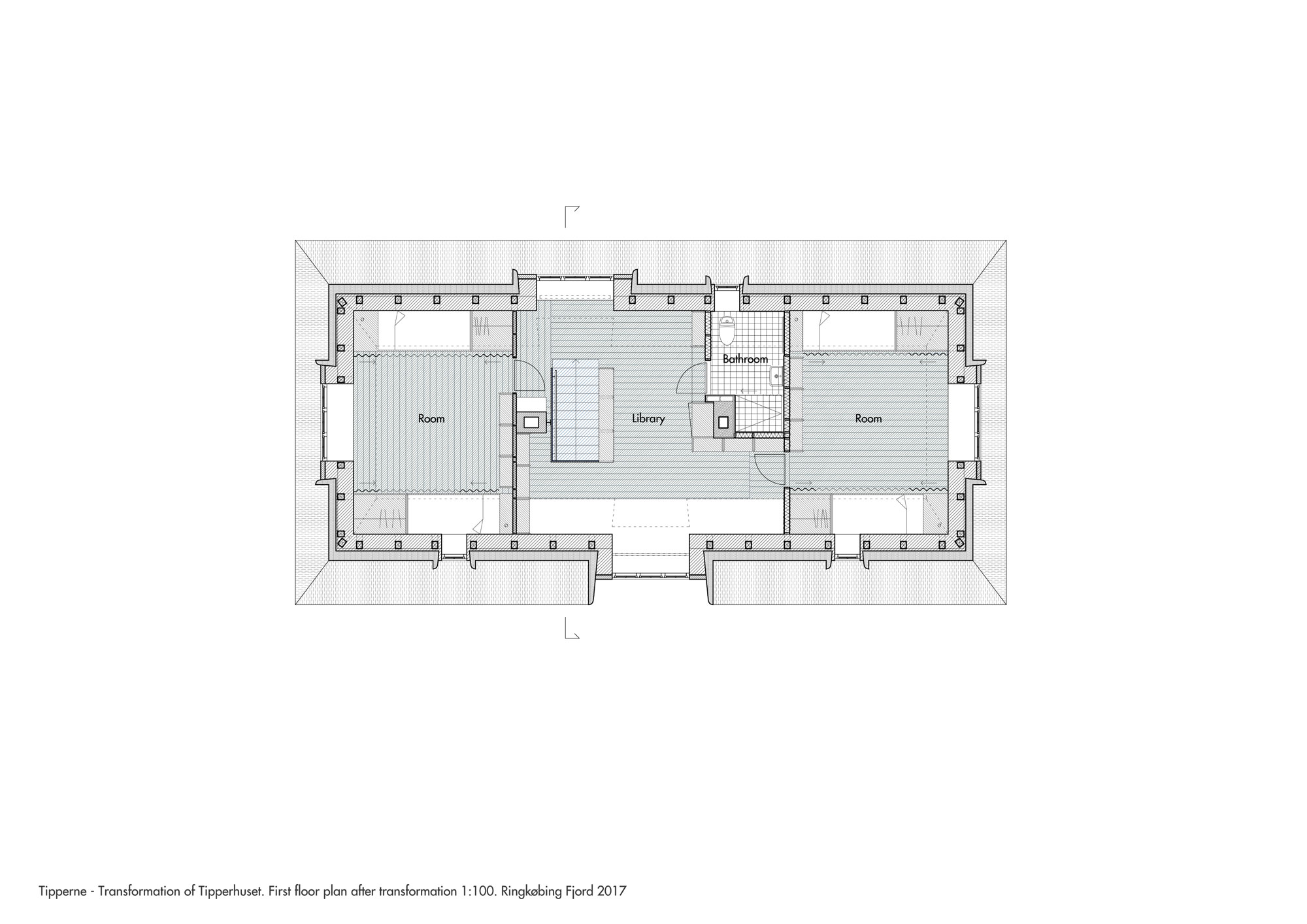
The existing Tipper House has been refurbished as a centre for visitors and research. In order to preserve the character and quality of the building, Johansen Skovsted Arkitekter worked with subtle interventions. Outside, only the ramp at the entrance reveals any change. On the ground floor, a dining and exhibition room has been installed next to the central kitchen. There is also a multipurpose space where lectures can take place. One level up, two bedrooms with alcoves flank the library. Red pipes, radiators and wind gauges on the walls serve to identify this place as a research station, while fittings of OSB take up the fibrous texture of the thatched roof and the plants in the surrounding environment.
Each of the new structures has its own character. The bird-watching cabin, the observation tower, the workshop, new paths and the research station are distributed over the grounds.
Ship’s masts and Construction
The observation tower consists of a steel frame that was manufactured at a local mast factory. Its open structure is made of triangular frames, each of which holds the vertical iron bars. These bars, which are 50 and 65 mm thick, bear the compressive forces of the construction, while those with a diameter of 22 mm form the railing and work against the tensile forces. Only on the top storey are all four walls closed in with panels of galvanized iron and translucent plastic. Windows can be closed depending whether the researchers must concentrate on counting or visitors want an unobstructed view of the birds.
Make a stop in the hiding place
Another triangular structure stands along the path that leads through the bird sanctuary. This building, made of 6-mm-thick Corten steel plates, differs from the tower in that it is nearly completely closed off and is firmly connected to the ground. Only a narrow slit in the upper portion offers the possibility to discreetly observe animal life up close. The reinforced edges made of installation profiles also serve as eavestroughs which divert rainwater into the surrounding terrain.
Wood construction meets aluminum
The third new building is the workshop, which was inspired by temporary hunting cabins. This simple wooden structure has been reinforced with inner aluminum plates measuring 3 mm in thickness. The light-coloured aluminum forms a colour contrast to the black-stained wood on the exterior. Light falls evenly into the workshop through translucent GRP panels.
The existing Tipper House has been refurbished as a centre for visitors and research. In order to preserve the character and quality of the building, Johansen Skovsted Arkitekter worked with subtle interventions. Outside, only the ramp at the entrance reveals any change. On the ground floor, a dining and exhibition room has been installed next to the central kitchen. There is also a multipurpose space where lectures can take place. One level up, two bedrooms with alcoves flank the library. Red pipes, radiators and wind gauges on the walls serve to identify this place as a research station, while fittings of OSB take up the fibrous texture of the thatched roof and the plants in the surrounding environment.






















