// Check if the article Layout ?>
Brave New World: SFMOMA by Snøhetta
Photo: Jon McNeal
A great cloud of fog hangs peacefully behind the massive, geometric San Francisco Museum of Modern Art. It is a cloud of fog that can often be found in San Francisco Bay: grey, opaque, murky. However, this cloud gets its look from plastic panels on the façade. It hangs so still because it is the new SFMOMA, designed by Norwegian architects Snøhetta.
To be precise, the striking façade has been covered with 700 panels of FRP (fibreglass-reinforced polymer). The mixed-in silicate crystals and their meandering surface texture are meant to look like the crinkly surface of the water in the bay. Moreover, the building gets its appearance of a cloud from its shape as well. Despite the ten storeys that it accommodates, it is wider than it is tall. This is in contrast to the prevalent building styles in SoMa, the district where it stands. The architects wanted to set an anti-commerce accent, for commerce is increasing here. In their opinion, commerce is embodied by the vertically oriented structures in the area. On the other hand, to a certain extent the district’s economic success has come thanks to Mario Botta’s building for SFMOMA.
Connecting Two Giants
When a design was sought in 1988, Botta was enjoying a good reputation, primarily in Europe. He won out over internationally renowned architects such as Frank Gehry and Tadao Ando. With its simple shapes and clear geometry, his building was meant to stand apart from the abstract, dilapidated buildings in the surrounding area. Botta worked with materials which were not the products of industrialization, such as brick, wood and natural stone. It was Charles Jencks who categorized Botta as a postmodern Classicist. But whatever people want to call Botta’s style, it was indisputable that his massive structure, with its presence and the ambivalent response it invoked in citizens, was responsible for a lasting change in the SoMa district. Indeed, over the years the neighbourhood has developed into a magnet for art and culture. Craig Dykers, a founding member of Snøhetta, diplomatically comments: “The building has achieved its goal and has struck SoMa like a meteorite. This has really accelerated development in this neighbourhood.” Furthermore, Dykers emphasizes the efforts he has made to create a visual connection between the new and old buildings. For example, the rough façade gives a nod to Botta’s various applications of brickwork. The colour of the façade is not only similar to the haze of fog, it also creates an analogy to the granite of the black-and-white skylight tower. Nonetheless, despite all these efforts Mario Botta has had nothing positive to say about the new building. He claims it does not honour his own design, but merely stands there like a mute wall. However, he has these impressions only from newspaper illustrations. There is still hope that the completed structure will give him a better idea.
Apart from all these differences of opinion, Snøhetta worked towards a goal similar to the one Botta strove to achieve in 1988: the SoMa district should again profit from a building project by means of footpaths, new access points and terraces allowing views of the area. The building should be more inviting. Outdoor sculptures should interweave art with urban space.
The Way Up
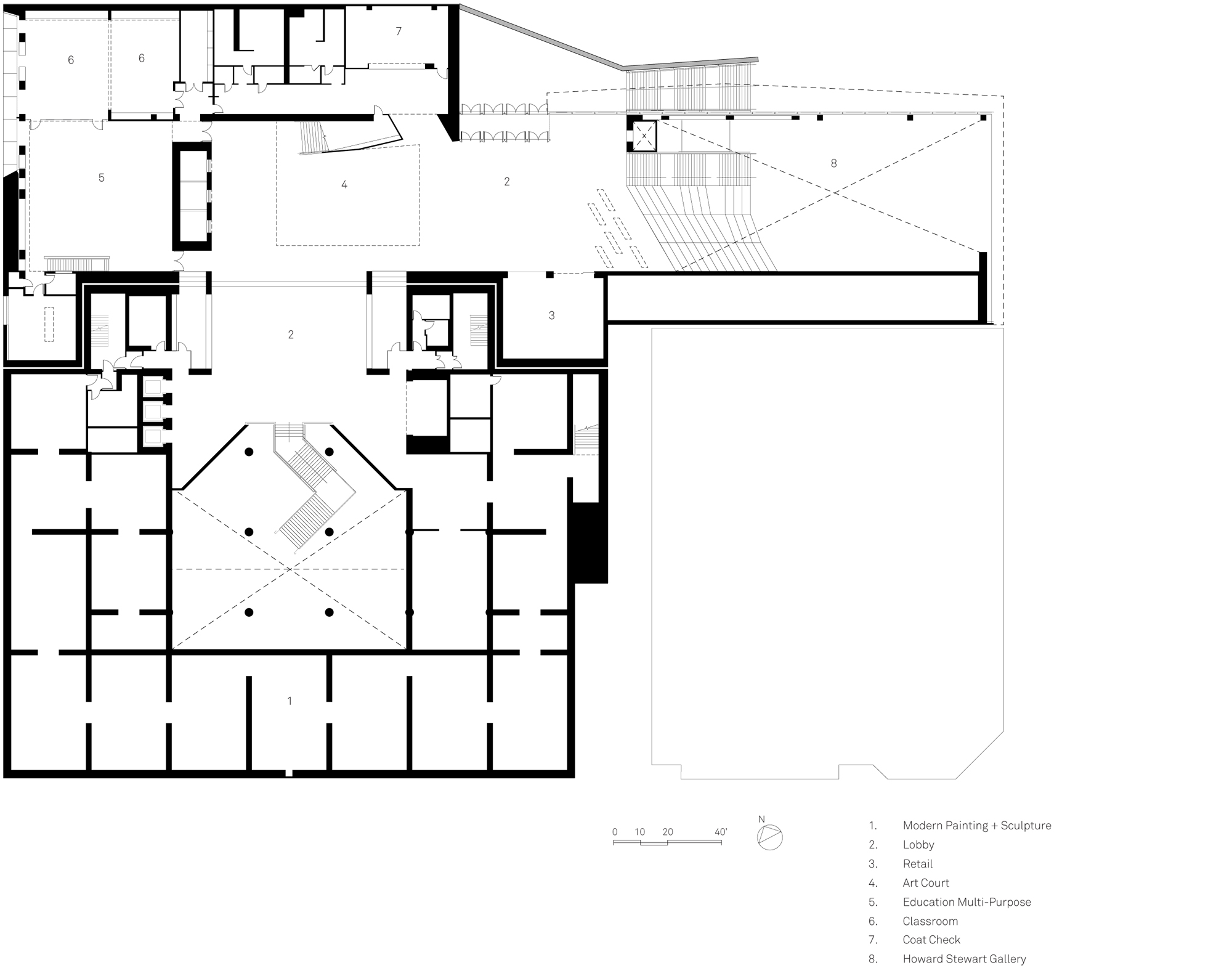
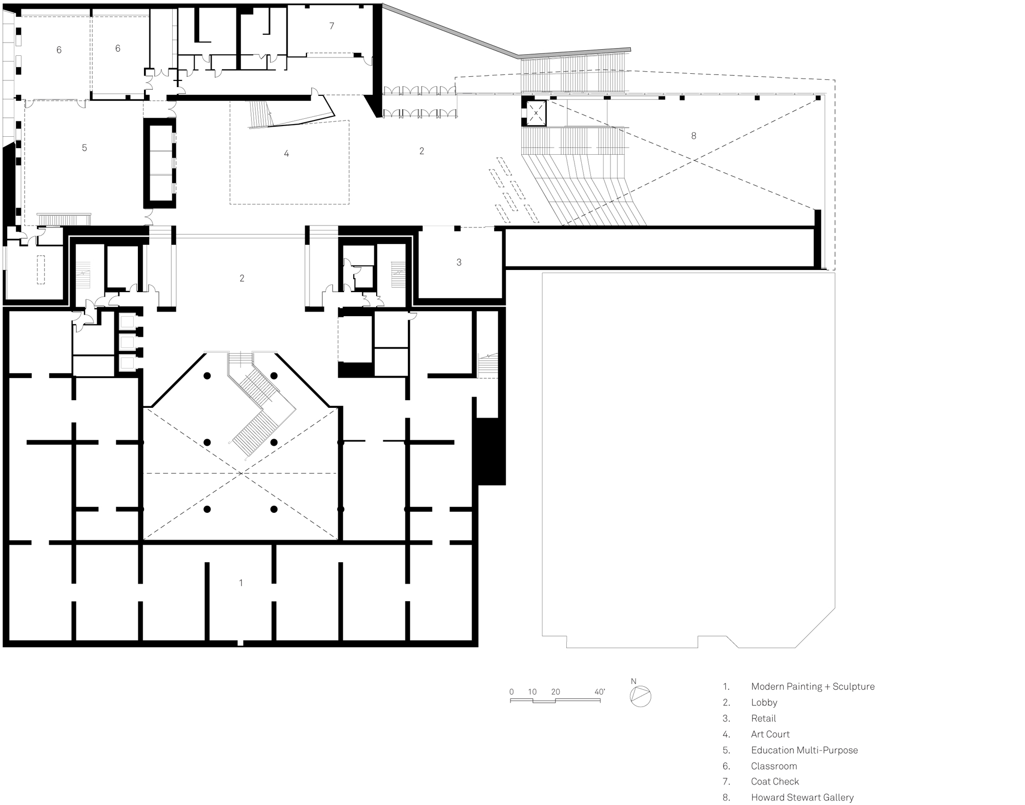
San Franciscans are actually invited to use the museum as a place to meet and spend time. One of the new entrances leads into the freely accessible exhibition spaces on the ground floor. There, a maple-clad stairway that occupies the entire width of the room serves as seating in a relaxed atmosphere. The architects envision this as one of San Francisco’s busiest places in the future. Another path leads visitors up a new, sculptural stairway that now rises under the skylight in the Botta building. The stairs continue the grey stripes of the flooring, while the light-coloured maple cladding clearly stands apart. An old stairway has been replaced here in order to create a seamless transition from the old building to the new. Just like the abovementioned seating stairway, this path also leads to the second storey, the Schwab Hall. This is where the first works of art can be seen. Tickets are required for those who wish to continue their way into the museum.
Ideally, visitors will now work their way up through the ten levels of the museum. On the path, artworks alternate with fresh air and viewpoints. A special work of art is located on the third-floor terrace: America’s largest wall garden, which features more than 19,000 plants representing local species. Apart from this green wall, the other exhibition spaces function as “blank canvases for curators.” Suitable spaces for every part of the collection have been created in close collaboration with the museum management. Yet the column-free floor plans have been kept as flexible and minimalist as possible without becoming too big. This allows visitors to concentrate on the art.
An Expanded Art Experience
In addition to the fantastic collections, the SFMOMA education program has been brought up to date. Now schoolchildren, teachers and others who hunger for knowledge can use the library and teaching rooms. Even the generation of digital natives will feel at home in the new museum concept; the museum’s own app allows composers, comedians, artists, authors and others to give short commentaries. Although the museum’s cubature is intended as a juxtaposition to the surrounding commercial structures, every path leads to the expanded museum gift shop. In fact, the shop even has a branch at San Francisco’s airport, where it supplies departing art lovers with souvenirs.
Exemplary Energy
Snøhetta’s new building boasts low energy consumption; it is working towards the LEED Gold Certificate. All the spaces in the museum are lit exclusively with LEDs. In the future, the museum will use 46% less energy and 60% less drinking water than before. For example, the large wall garden will be watered by the building’s water-recovery system.
To be precise, the striking façade has been covered with 700 panels of FRP (fibreglass-reinforced polymer). The mixed-in silicate crystals and their meandering surface texture are meant to look like the crinkly surface of the water in the bay. Moreover, the building gets its appearance of a cloud from its shape as well. Despite the ten storeys that it accommodates, it is wider than it is tall. This is in contrast to the prevalent building styles in SoMa, the district where it stands. The architects wanted to set an anti-commerce accent, for commerce is increasing here. In their opinion, commerce is embodied by the vertically oriented structures in the area. On the other hand, to a certain extent the district’s economic success has come thanks to Mario Botta’s building for SFMOMA.
Connecting Two Giants
When a design was sought in 1988, Botta was enjoying a good reputation, primarily in Europe. He won out over internationally renowned architects such as Frank Gehry and Tadao Ando. With its simple shapes and clear geometry, his building was meant to stand apart from the abstract, dilapidated buildings in the surrounding area. Botta worked with materials which were not the products of industrialization, such as brick, wood and natural stone. It was Charles Jencks who categorized Botta as a postmodern Classicist. But whatever people want to call Botta’s style, it was indisputable that his massive structure, with its presence and the ambivalent response it invoked in citizens, was responsible for a lasting change in the SoMa district. Indeed, over the years the neighbourhood has developed into a magnet for art and culture. Craig Dykers, a founding member of Snøhetta, diplomatically comments: “The building has achieved its goal and has struck SoMa like a meteorite. This has really accelerated development in this neighbourhood.” Furthermore, Dykers emphasizes the efforts he has made to create a visual connection between the new and old buildings. For example, the rough façade gives a nod to Botta’s various applications of brickwork. The colour of the façade is not only similar to the haze of fog, it also creates an analogy to the granite of the black-and-white skylight tower. Nonetheless, despite all these efforts Mario Botta has had nothing positive to say about the new building. He claims it does not honour his own design, but merely stands there like a mute wall. However, he has these impressions only from newspaper illustrations. There is still hope that the completed structure will give him a better idea.
Apart from all these differences of opinion, Snøhetta worked towards a goal similar to the one Botta strove to achieve in 1988: the SoMa district should again profit from a building project by means of footpaths, new access points and terraces allowing views of the area. The building should be more inviting. Outdoor sculptures should interweave art with urban space.
The Way Up
San Franciscans are actually invited to use the museum as a place to meet and spend time. One of the new entrances leads into the freely accessible exhibition spaces on the ground floor. There, a maple-clad stairway that occupies the entire width of the room serves as seating in a relaxed atmosphere. The architects envision this as one of San Francisco’s busiest places in the future. Another path leads visitors up a new, sculptural stairway that now rises under the skylight in the Botta building. The stairs continue the grey stripes of the flooring, while the light-coloured maple cladding clearly stands apart. An old stairway has been replaced here in order to create a seamless transition from the old building to the new. Just like the abovementioned seating stairway, this path also leads to the second storey, the Schwab Hall. This is where the first works of art can be seen. Tickets are required for those who wish to continue their way into the museum.
Ideally, visitors will now work their way up through the ten levels of the museum. On the path, artworks alternate with fresh air and viewpoints. A special work of art is located on the third-floor terrace: America’s largest wall garden, which features more than 19,000 plants representing local species. Apart from this green wall, the other exhibition spaces function as “blank canvases for curators.” Suitable spaces for every part of the collection have been created in close collaboration with the museum management. Yet the column-free floor plans have been kept as flexible and minimalist as possible without becoming too big. This allows visitors to concentrate on the art.
An Expanded Art Experience
In addition to the fantastic collections, the SFMOMA education program has been brought up to date. Now schoolchildren, teachers and others who hunger for knowledge can use the library and teaching rooms. Even the generation of digital natives will feel at home in the new museum concept; the museum’s own app allows composers, comedians, artists, authors and others to give short commentaries. Although the museum’s cubature is intended as a juxtaposition to the surrounding commercial structures, every path leads to the expanded museum gift shop. In fact, the shop even has a branch at San Francisco’s airport, where it supplies departing art lovers with souvenirs.
Exemplary Energy
Snøhetta’s new building boasts low energy consumption; it is working towards the LEED Gold Certificate. All the spaces in the museum are lit exclusively with LEDs. In the future, the museum will use 46% less energy and 60% less drinking water than before. For example, the large wall garden will be watered by the building’s water-recovery system.
Further information:
Cost: 305 Mio. $
Area: 235.000 m2
Selektion of the architects: September 2010
Start of construction: Juni 2013
Cost: 305 Mio. $
Area: 235.000 m2
Selektion of the architects: September 2010
Start of construction: Juni 2013
Further information:
Cost: 305 Mio. $
Area: 235.000 m2
Selektion of the architects: September 2010
Start of construction: Juni 2013
Cost: 305 Mio. $
Area: 235.000 m2
Selektion of the architects: September 2010
Start of construction: Juni 2013














