// Check if the article Layout ?>
Brick on Brick: Apartment House in Stoke Newington
Photo: Tim Soar
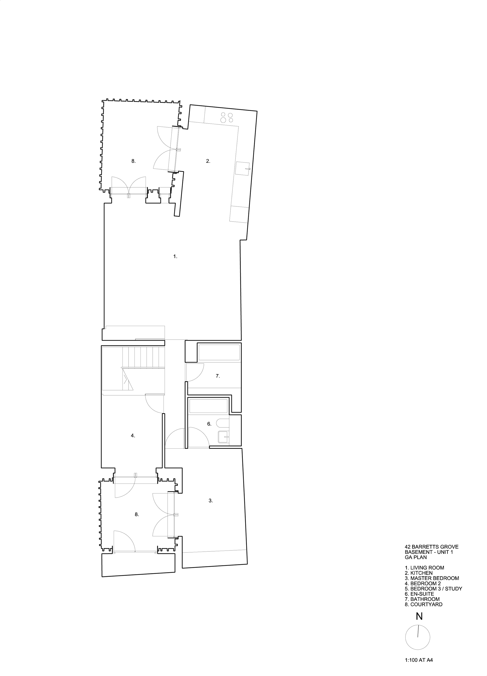
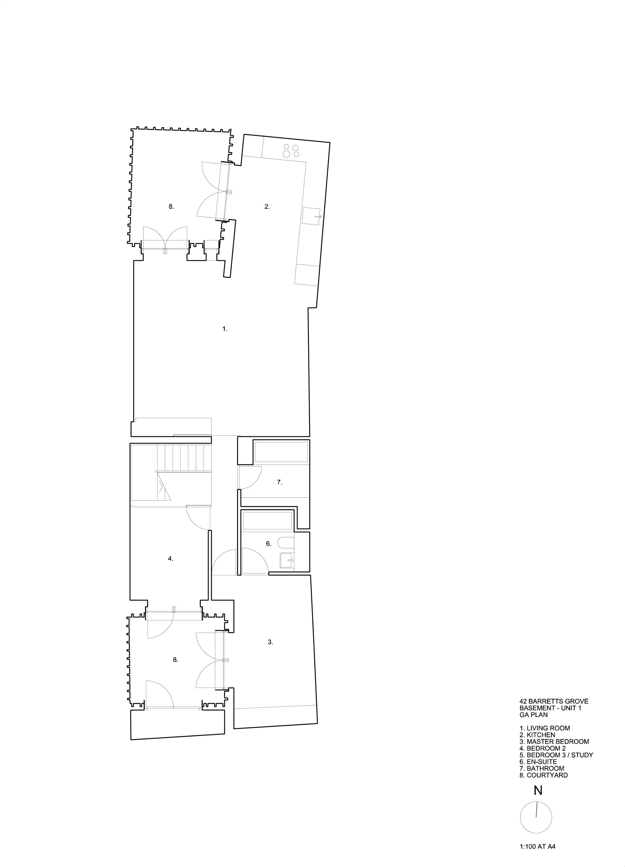
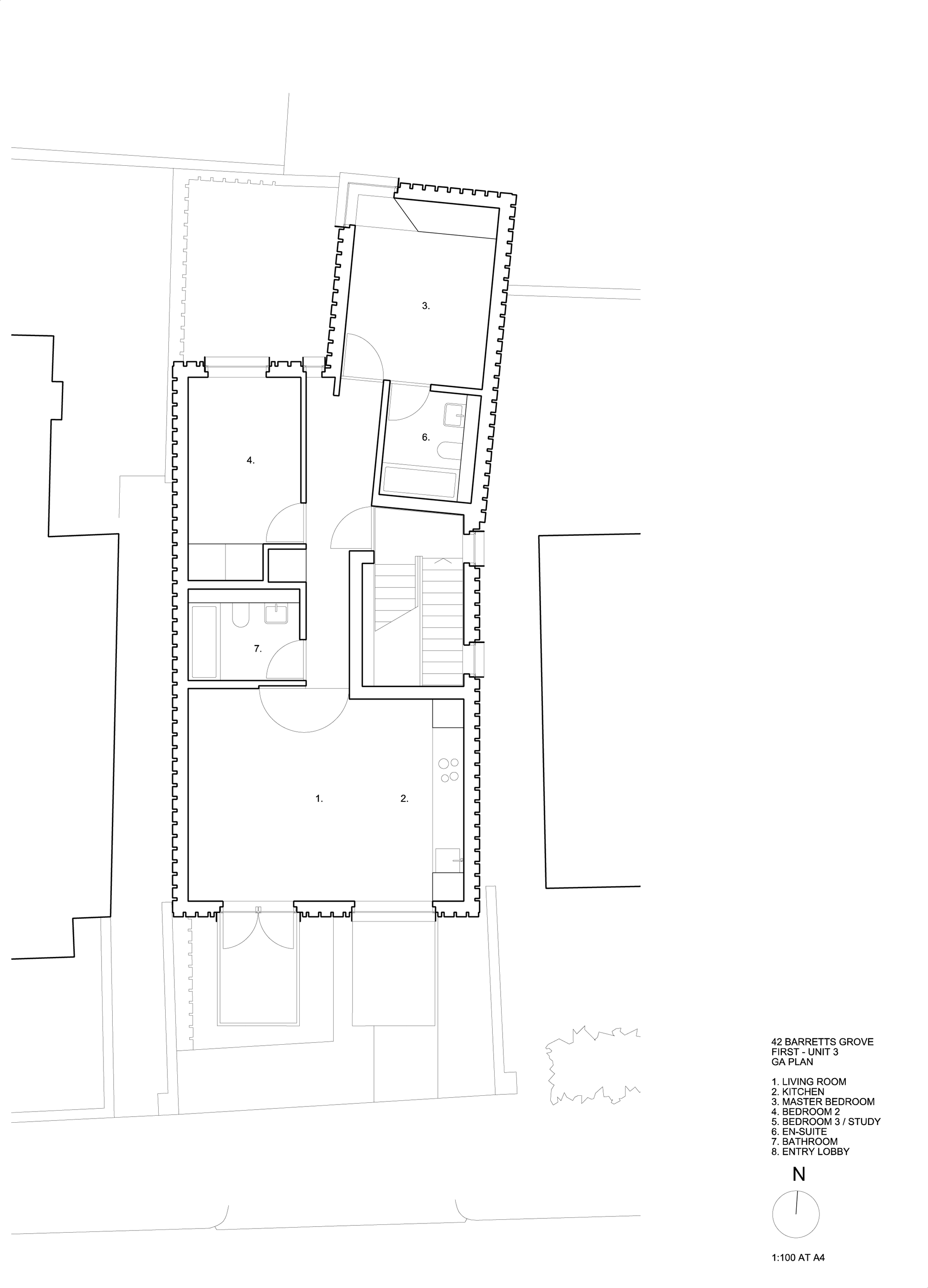
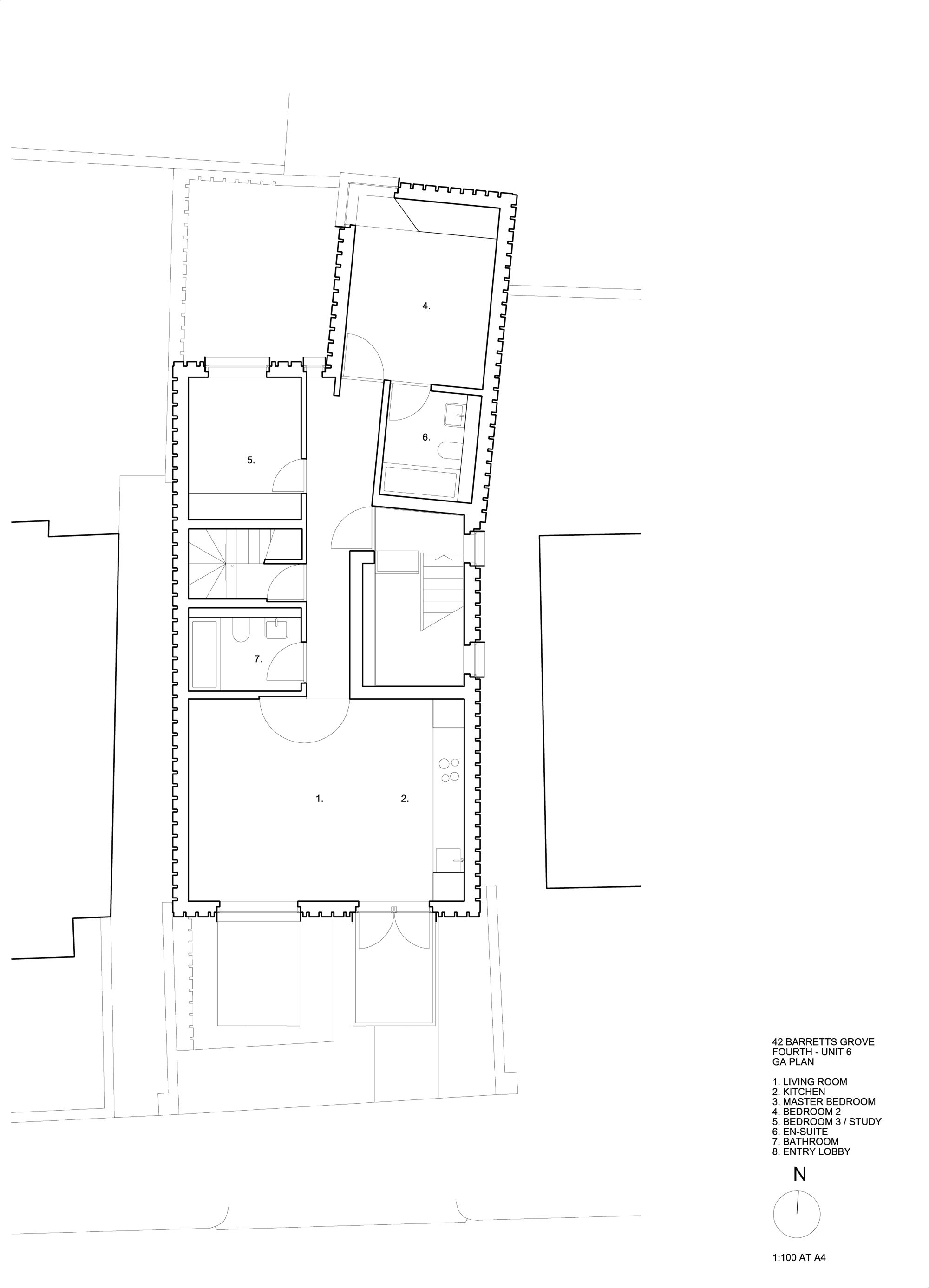
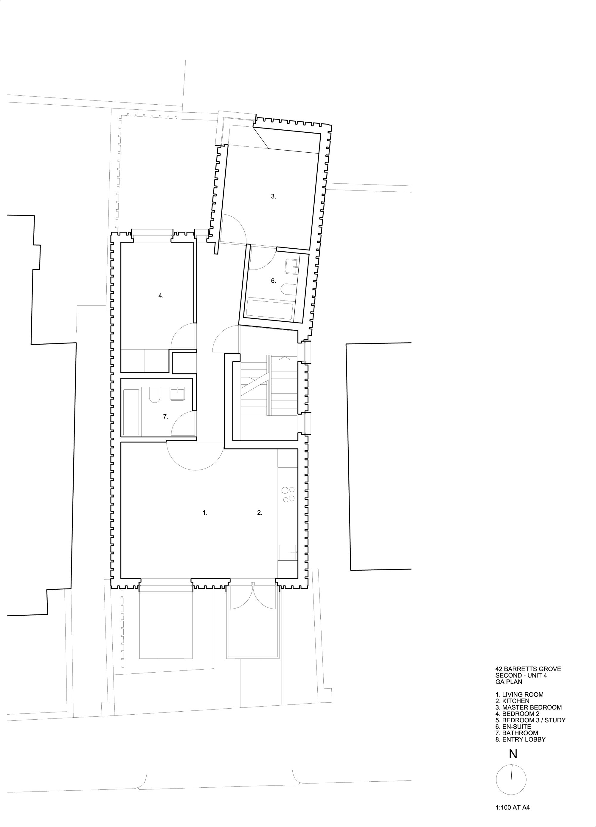
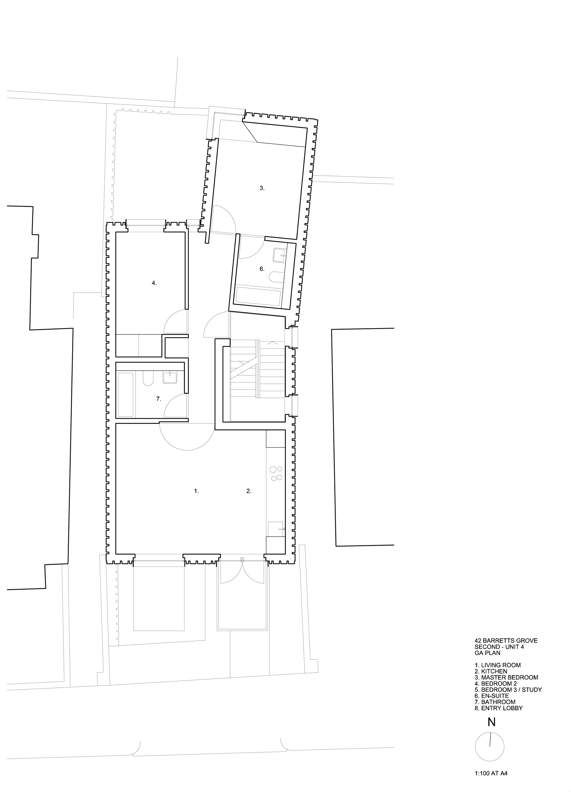
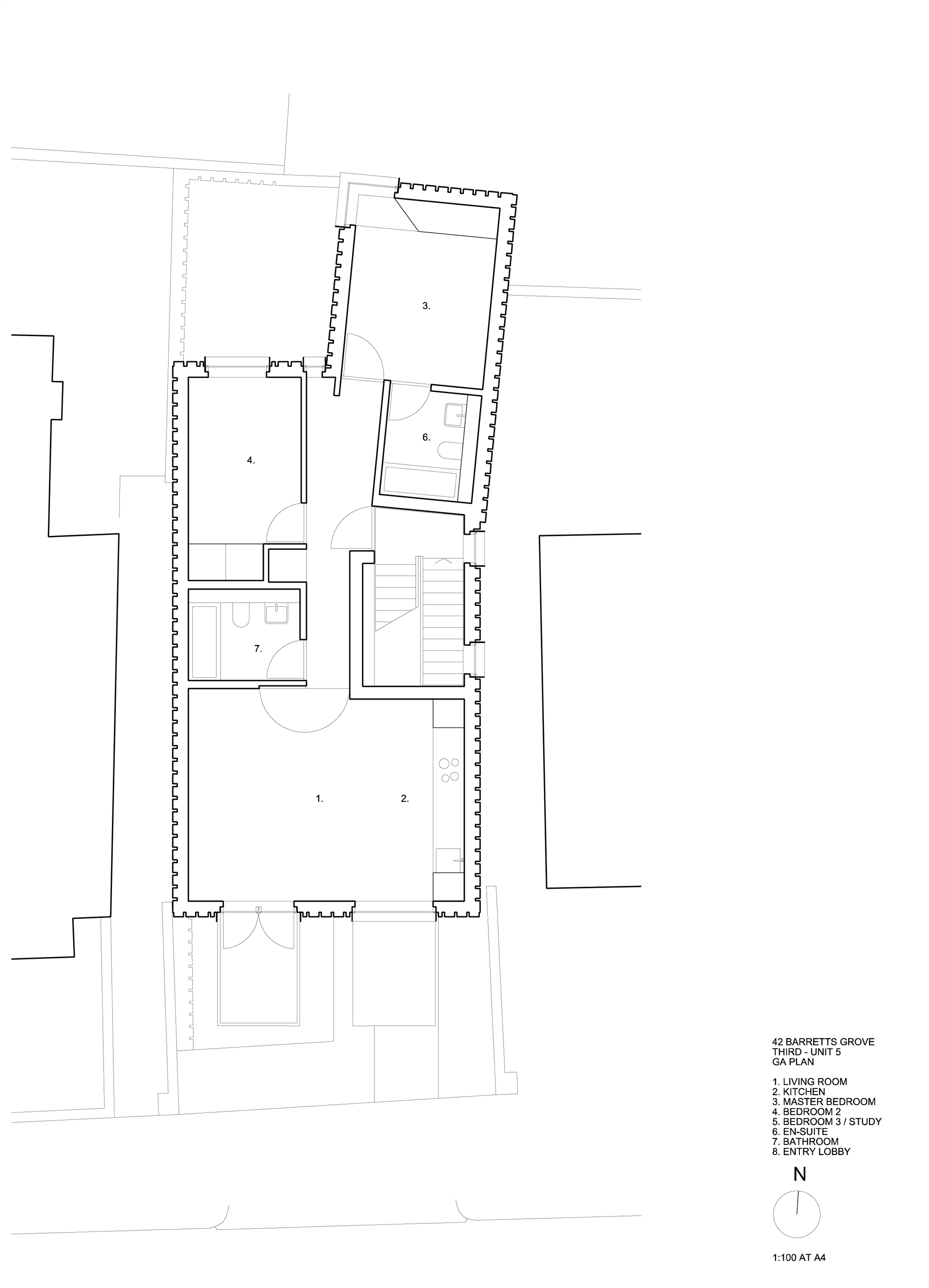
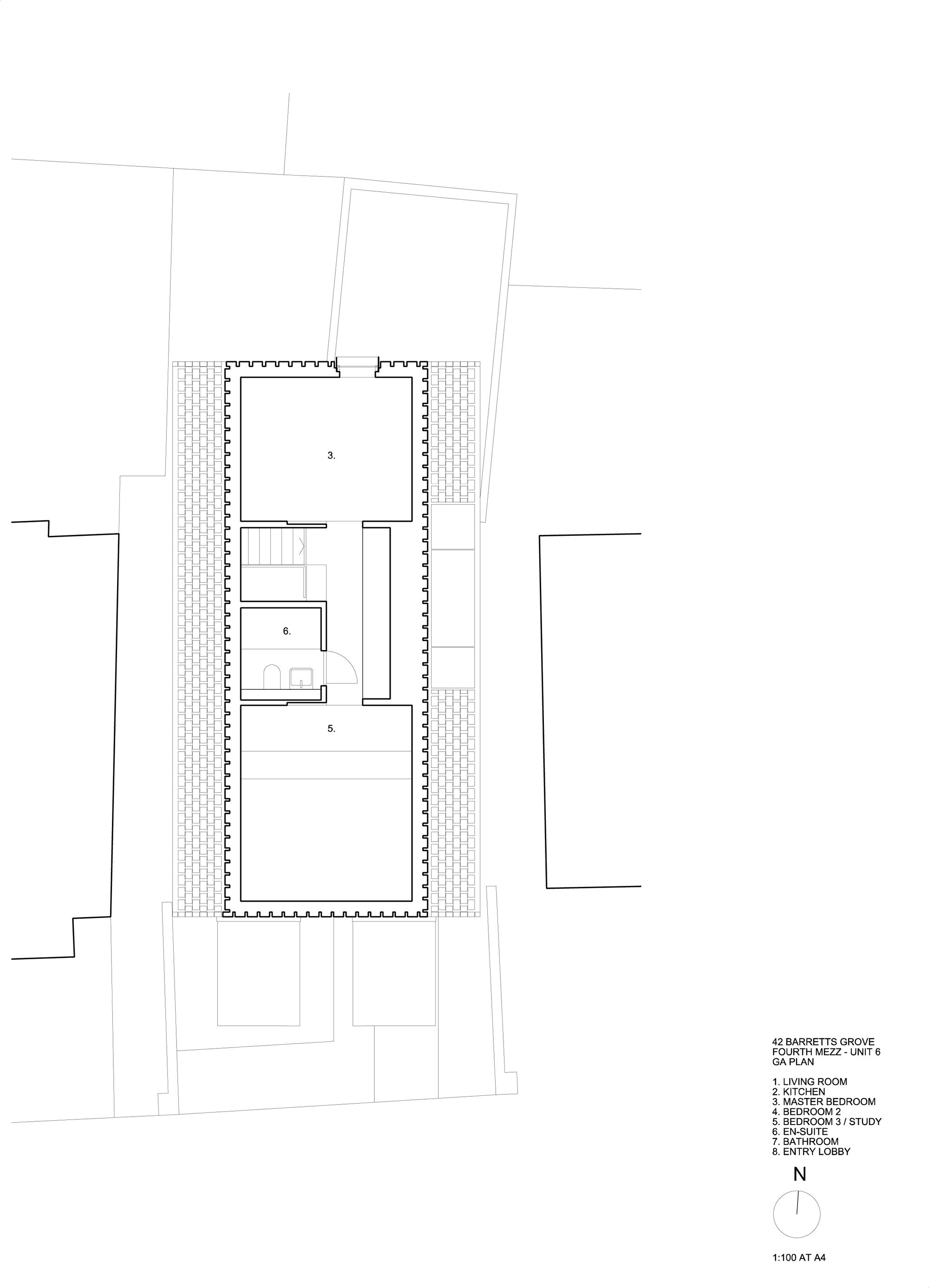
Barrets Grove was built as accommodation of different maisonettes and apartment for families and singles. The apartment house stands between a primary school and a single stand household in London. Its most outstanding character that you see at first site is the tall red brick gable façade with its large openings and overhang balconies. It is a strong and impressive structure with its double stacked brickwork that encases the whole building and height of construction that tower above the school.
It is also perfectly integrated because the brickwork itself is an open bond which indicates that it is not loadbearing and therefore it gains a lightness that is ideally suited for standing next to the flat and gently inclined townhouse. The Cross Laminated Timber (CLT) builds the superstructure of the building and is permanently apparent in every single room inside the building. It creates an interplay with the exposed details and construction that show a clever way of using few materials.
The rough materials of the rain-screen brick facades and the construction out of wood inherent several technical devices and also work together as an exterior thermal and protective overcoat. The handling of the construction keeps the costs reduced and created combined with the exposed ceilings, the wicker woven steel balconies and bronzed window reveals a singular atmosphere of home. Window seats, timber cabinetry and full height doors with leather handles or with bespoke and articulated metal locks complement the room setting.
The access gate reflects the bronzed window reveals and leads to an anteroom with a timber lining bench that welcomes visitors and acts as a meeting point with neighbours or gives the opportunity to rest yourself before entering the house. Not only the porte-cochere, but also the widely overhang balconies that replace the communal gardens acts as a promotion of a communal get-together. The clean and simple rooms with the Timber interior leave enough space for the inhabitants to design and decorate the rooms with their own ideas on a wooden background.
Through the application of minimal material thickness and the clever substitution of different elements arose a building that is perfectly suited for that site and broadcast a likely atmosphere outside and inside of the building. It shows that experimental development of a residence can make a home feel alive in an effective way and is a new interpretation of a brickhouse.
It is also perfectly integrated because the brickwork itself is an open bond which indicates that it is not loadbearing and therefore it gains a lightness that is ideally suited for standing next to the flat and gently inclined townhouse. The Cross Laminated Timber (CLT) builds the superstructure of the building and is permanently apparent in every single room inside the building. It creates an interplay with the exposed details and construction that show a clever way of using few materials.
The rough materials of the rain-screen brick facades and the construction out of wood inherent several technical devices and also work together as an exterior thermal and protective overcoat. The handling of the construction keeps the costs reduced and created combined with the exposed ceilings, the wicker woven steel balconies and bronzed window reveals a singular atmosphere of home. Window seats, timber cabinetry and full height doors with leather handles or with bespoke and articulated metal locks complement the room setting.
The access gate reflects the bronzed window reveals and leads to an anteroom with a timber lining bench that welcomes visitors and acts as a meeting point with neighbours or gives the opportunity to rest yourself before entering the house. Not only the porte-cochere, but also the widely overhang balconies that replace the communal gardens acts as a promotion of a communal get-together. The clean and simple rooms with the Timber interior leave enough space for the inhabitants to design and decorate the rooms with their own ideas on a wooden background.
Through the application of minimal material thickness and the clever substitution of different elements arose a building that is perfectly suited for that site and broadcast a likely atmosphere outside and inside of the building. It shows that experimental development of a residence can make a home feel alive in an effective way and is a new interpretation of a brickhouse.





















