// Check if the article Layout ?>
Business hive in Tourcoing: Office and parking garage building by TANK Architectes
Photo: Julien Lanoo
Tourcoing, a mid-sized city in northern France, is not far from Lille, a city that gained fame for a while in the late nineties. This was due to OMA's master plan for the Euralille project, an undertaking based on the belief that a united Europe would arise like a phoenix from the ashes now that the East-West conflict was over. Completion of the Chunnel between Paris and London and construction of a new TGV railway station in Lille were to create a shift in the urban balance, one that would thrust the large French city to the centre of the European triangle formed by London, Brussels and Paris. Moreover, the large-scale planning would have pulled the peripheral zone into its vortex. But two decades later it had become apparent that the significance of geographic nodal points does not necessarily equate their value in economic terms. And Brexit poses an acute threat to the idea of a united Europe in the meantime anyway.
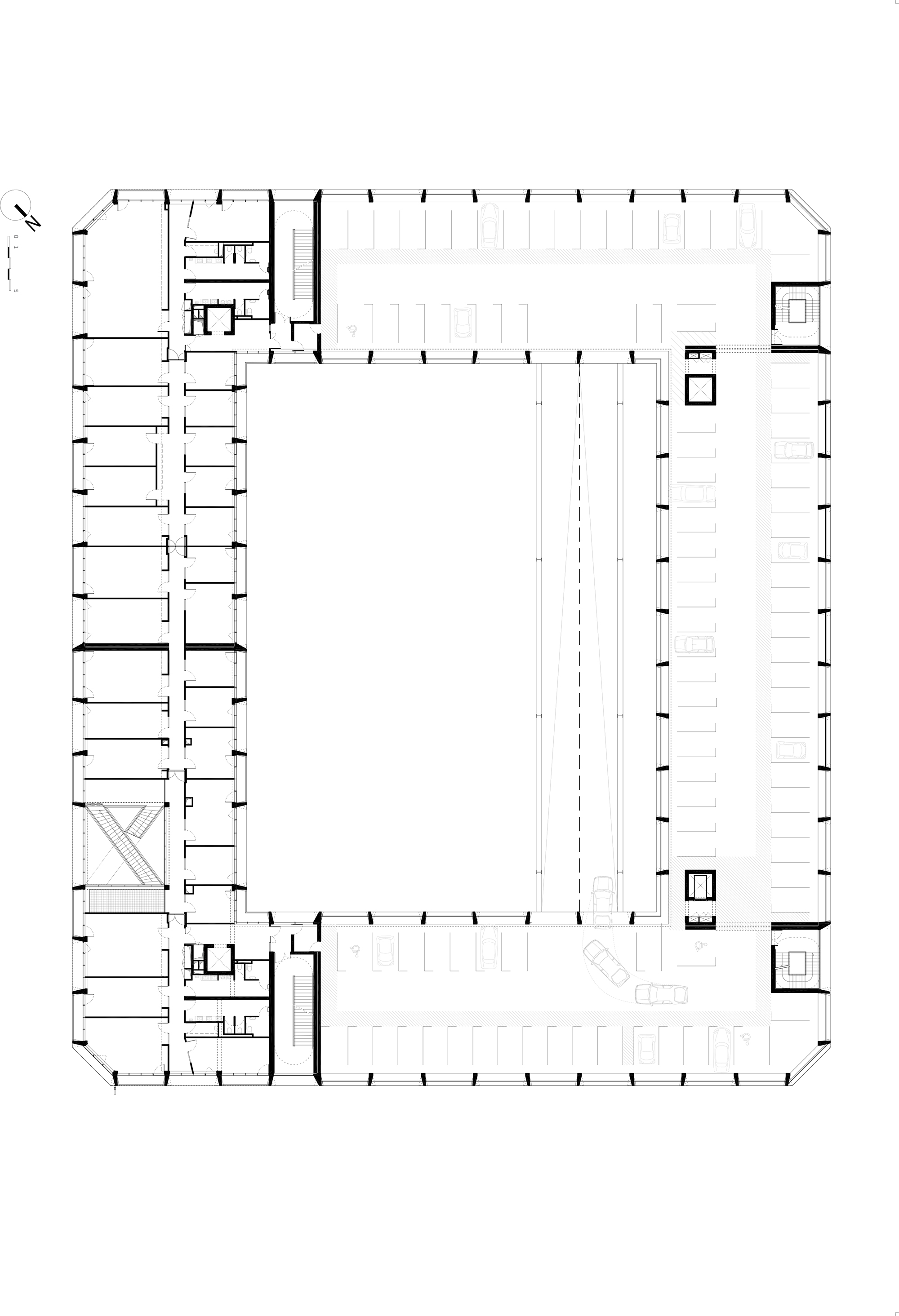
Thus when a building project well worth seeing was completed recently in Tourcoing, it is hardly surprising hardly anyone had ever heard of the French city. Combining two programmes of intended uses in one constructional unit, the building – named a "business hive" by the architects – contains a number of small offices and a 450-space parking garage. The serial repetition of the honeycomb-like facade elements not only creates visual harmony but will also make it possible to put the parking garage section to new uses in future – a scenario that definitely seems realistic.
Thus when a building project well worth seeing was completed recently in Tourcoing, it is hardly surprising hardly anyone had ever heard of the French city. Combining two programmes of intended uses in one constructional unit, the building – named a "business hive" by the architects – contains a number of small offices and a 450-space parking garage. The serial repetition of the honeycomb-like facade elements not only creates visual harmony but will also make it possible to put the parking garage section to new uses in future – a scenario that definitely seems realistic.








