// Check if the article Layout ?>
Carmen Würth Forum von Chipperfield eröffnet
Vor wenigen Tagen wurde der erste Bauabschnitt des neuen Carmen Würth Forums eingeweiht. Der Schraubenhändler und Milliardär Reinhold Würth lobte 2006 einen Wettbewerb aus, aus dem David Chipperfield Architects als Gewinner hervorgingen. Das 60 Millionen Euro teure Kultur- und Kongresszentrum liegt in der Nähe des Stammsitzes der Firma Würth im baden-württembergischen Künzelsau. Im malerisch gelegenen Städtchen eröffnete einst der Vater, Adolf Würth, einen Schraubenhandel mit dem Firmenlogo, dessen rote Farbe noch heute für ein inzwischen weltweit operierendes Unternehmen steht.
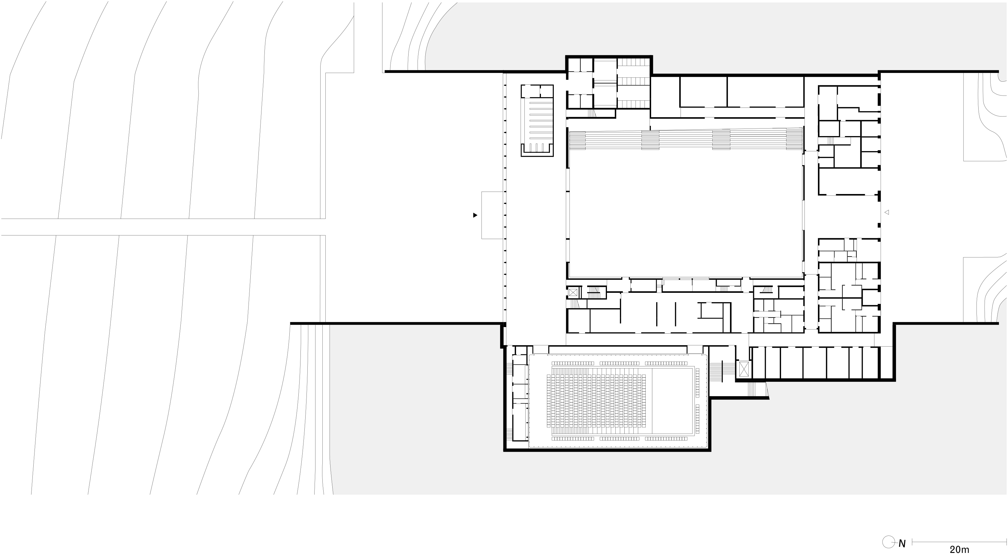
Der Neubau südlich von Künzelsau mit einer Bruttogeschossfläche von 11.000 m2 umfasst eine Veranstaltungshalle für 2.500 Besucher und einen Kammermusiksaal mit 600 Plätzen. Das flache Gebäude auf einer leichten Anhöhe ist in die offene Wiesenlandschaft eingebettet. Durch zwei Einschnitte in die Landschaft entstehen zwei gefasste Außenräume, die von Stützwänden aus Ortbeton flankiert sind: Einzelne Betonlagen der Wände verweisen auf die Sedimentschichten der natürlichen Landschaft. Ein bis zu 10.000 Zuschauer umfassendes Open-Air-Gelände vor dem Haupteingang wird ab sofort für diverse Freiluftveranstaltungen genutzt.
Der Zugang zur Veranstaltungshalle erfolgt durch ein geräumiges Foyer mit viel Tageslicht. Die große Halle, zur Hälfte unterirdisch platziert, ist als eine stützenfreie Stahlfachwerkkonstruktion realisiert. Auch der mit französischem Nussbaum ausgekleidete Kammermusiksaal ist vom Foyer aus zugänglich. Die Firmenfarbe Rot kam bei der Bestuhlung des Musiksaals und als Fußbodenfarbe im Foyerbereich zum Einsatz.
Das Carmen Würth Forum ist nicht das erste Bauwerk des Unternehmens, das kulturellen Zwecken dient. Die Würth-Gruppe ist als eine gemeinnützige Stiftung organisiert. Deswegen fördert die Schraubenfirma Kunst und Kultur im großen Maßstab – die Kunstsammlung des Milliardärs wird zum Beispiel im privaten Kunstmuseum im Hauptverwaltungsgebäude in Künzelsau gezeigt. Das ungewöhnliche Geschäftsmodell kommt auch in weiteren Verwaltungsbauten des Konzerns zur Anwendung: im kürzlich fertiggestellten Würth-Haus in Rorschach von Gigon Guyer Architekten oder in der von Jüngling Hagmann Architekten 2002 erbauten Würth International-Zentrale in Chur, wo neben Büroarbeitsplätzen in öffentlichen Gebäudeteilen Kunstausstellungen besichtigt werden können. Großformatige Skulpturen aus der Sammlung von Reinhold Würth schmücken jetzt auch den Außenraum des Carmen Würth Forums. Im zweiten Bauabschnitt werden ein Konferenzzentrum und ein weiteres Museum für die Kunstsammlung Würth verwirklicht.










