// Check if the article Layout ?>
Civil engineering showcase: Refurbished office building in London
Photo: James Brittain
The globally active Institution of Structural Engineers has relocated its headquarters to a sixties office building, remodelled by Hugh Broughton Architects into an open place for work and the dissemination of knowledge.
Architect: Hugh Broughton Architects, London
Structural engineering: Expedition Engineering, London
Location: 47–58 Bastwick Street, Islington, London EC1V 3PS, UK
Structural engineering: Expedition Engineering, London
Location: 47–58 Bastwick Street, Islington, London EC1V 3PS, UK
How times can change: The Institution of Structural Engineers was founded in London's Ritz Hotel in 1908 and from 1926 on was domiciled in the prestigious Belgravia district, where the streets are mainly lined by embassies and the residences of foreign oligarchs. In a move that makes the organisation more approachable and eases relations with other trades and professions, it is now located in a refurbished four-storey office building in Clerkenwell, a former working-class district north of the City of London with the greatest concentration of architectural offices in Great Britain.
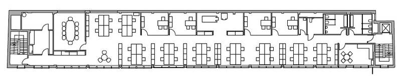
The refurbishment, which was carried out by Hugh Broughton Architects, was necessary to bring the building's energy efficiency levels up to modern standards and to remodel the very long and thin property to suit it for highly differing activities. The public ground floor with its auditorium and meeting rooms also features a large, double-height reception space from which a staircase leads up to the first floor, the location of a lounge, a library and further meeting rooms. The third and fourth floors are taken up along the front façade by open-plan office space, where most of the 55 employees work. Individual offices for the management level and rooms for video conferences are to be found to the rear.
The architects have added external insulation complete with anthracite-coloured rendering to the old façade but otherwise have retained the original rigid articulation and the ribbon windows with their concrete block reveals. The grid of the skeleton structure still determines the frontage, the only exception being the two-storey glazed front of the entrance and reception space at the middle of the façade.
The staircase to the first storey is the star attraction and was developed by the architects together with Expedition Engineering. The treads in concrete with inlaid circular glass panels are supported on one side by the fair-faced concrete wall, and on the other by minimalist steel stringer plates in claret red. The same colour has also been used for the connecting bridge that spans the reception area along the inside of the glass façade.
Since the building only has windows on one side, there would not have been enough natural ventilation to provide the office rooms a sufficient supply of fresh air, a central heat recovery ventilation system now handles this task. An outdoor source heat pump cools the rooms and a new gas-fired boiler has been installed for heating purposes. Daylight-controlled LED luminaires and a building services management system are to help reduce the institute's energy usage still further.












