// Check if the article Layout ?>
Cleverly Packaged: Wrapping Shop in Paris
Photo: Shizuka Kurokawa
Every fold in the wrapping paper is considered an expression of the heart. The ribbon is a connection between giver and givee. Originally, origata was a cultural rite deeply rooted in Japanese culture. It evolved from the wrapping used in offerings for the gods of Shinto. Even today, adherents of this religion can give their presents that certain something.
Architect Fumihiko Sano has taken up this tradition-rich background in his design for the 16-m² wrapping shop known as MIWA in a respectful interpretation of the Shinto culture so closely associated with the art of packaging. By employing many of the elements that are meaningful to Shinto, he has built a bridge leading directly from Japan to this shop in Paris.
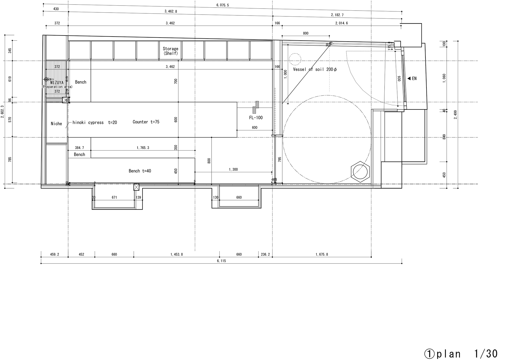
The street is lined with larger shops that attract the attention of passers-by. In contrast, MIWA is barely recognizable from the outside. There is just one unprepossessing wooden door, a small canopy and a hanging curtain gathered in the middle. Behind this entrance, the ritual space is hidden.
The rectangular plan adjoins a tiny antechamber and the room behind it, where the packaging is done. As soon as visitors step into the shop, they are met with the mystical, mysterious atmosphere of the anteroom. Walls and floor are covered in broken black slate from a devastated earthquake zone in Japan. It is meant as a memorial to the victims and should create a connection to Origata’s home country.
The rest of the interior features many attributes of Shinto. For example, the cypress tree plays a central role. This tree is associated with the culture in that it was traditionally the main material used for building shrines. A sliding door opens the space from the dark reception area into the main room. Here, walls and ceiling are clad in cypress wood. The floor is again covered in black slate.
Benches surround a central table; guests can sit and attend packaging ceremonies. The walls feature many niches which serve as sources of ambient light; they also have storage spaces for the required materials.
Architect Fumihiko Sano has taken up this tradition-rich background in his design for the 16-m² wrapping shop known as MIWA in a respectful interpretation of the Shinto culture so closely associated with the art of packaging. By employing many of the elements that are meaningful to Shinto, he has built a bridge leading directly from Japan to this shop in Paris.
The street is lined with larger shops that attract the attention of passers-by. In contrast, MIWA is barely recognizable from the outside. There is just one unprepossessing wooden door, a small canopy and a hanging curtain gathered in the middle. Behind this entrance, the ritual space is hidden.
The rectangular plan adjoins a tiny antechamber and the room behind it, where the packaging is done. As soon as visitors step into the shop, they are met with the mystical, mysterious atmosphere of the anteroom. Walls and floor are covered in broken black slate from a devastated earthquake zone in Japan. It is meant as a memorial to the victims and should create a connection to Origata’s home country.
The rest of the interior features many attributes of Shinto. For example, the cypress tree plays a central role. This tree is associated with the culture in that it was traditionally the main material used for building shrines. A sliding door opens the space from the dark reception area into the main room. Here, walls and ceiling are clad in cypress wood. The floor is again covered in black slate.
Benches surround a central table; guests can sit and attend packaging ceremonies. The walls feature many niches which serve as sources of ambient light; they also have storage spaces for the required materials.












