// Check if the article Layout ?>
Colourful Accents: Creative District in the North of London
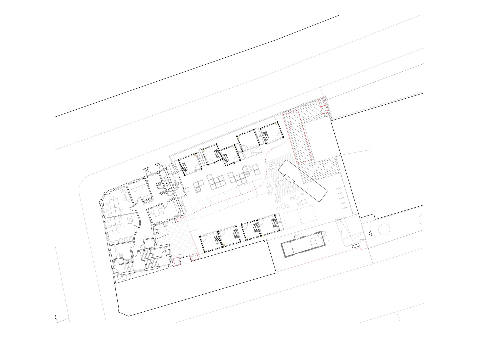
Not far from the Wood Green underground station in a northern area of London, Blue House Yard fills a void that used to gape in the middle of the district. This project by Jan Kattein Architects comprises a once-empty existing building and a former parking lot. Along with Meanwhile Space, which support and manage many local initiatives such as this one, they have developed a temporary project that aims to bring more life to the neighbourhood core over the next five years. The existing building has been preserved in its essential substance, but has been completely renovated and modernized inside. The striking blue – found both inside and out – makes it a real eye-catcher. Local artists and artisans can rent studios here; there are also communal areas and frequent courses on creative topics.
Eight small wooden houses have been erected in the yard. Each one is a different colour and was designed in order to enable the simplest possible construction. Every little house has two storeys for sales and storage; all offer inexpensive space where start-ups and smaller studios can display and sell their products and other wares.
The ensemble is rounded out by a typical London double-decker bus in which a café invites visitors to stay a while and a taxi stand which continues the style of the little wooden houses.
The yard has enough space for events and a regular market. The project was realized with the help of many volunteers and the active participation of the tenants of the workshops. This has made it affordable for the community; it also serves as an example of how participation brings people together and strengthens a community.
For more information, go here.
Eight small wooden houses have been erected in the yard. Each one is a different colour and was designed in order to enable the simplest possible construction. Every little house has two storeys for sales and storage; all offer inexpensive space where start-ups and smaller studios can display and sell their products and other wares.
The ensemble is rounded out by a typical London double-decker bus in which a café invites visitors to stay a while and a taxi stand which continues the style of the little wooden houses.
The yard has enough space for events and a regular market. The project was realized with the help of many volunteers and the active participation of the tenants of the workshops. This has made it affordable for the community; it also serves as an example of how participation brings people together and strengthens a community.
For more information, go here.
Additional Information:
Structural Engineer: StructureMode
Developer and Operator: High Street Works
Partner: London Borough of Haringey
Funding: Mayor of London und Velfac












