Colourful medley: 55 social apartments in Lyon
Foto: Jérôme Ricolleau
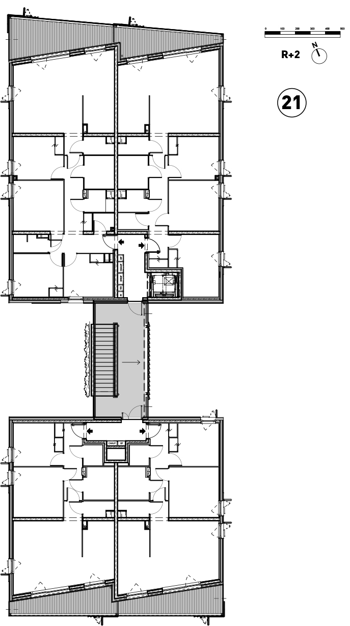
New housing development programmes are making the eastern approaches to Lyons of interest to a broad section of the population. The Mermoz Quartier project began with the awarding body calling for a high-density solution and specifying exacting details regarding dimensioning, building depth and openings.
The awarding body's counterpart was the Tectoniques architectural office, which in 2018 was honoured by the Académie d'Architecture and the Conseil National de l’Ordre des Architectes (CNOA) for its practical and theoretical work on housing development. The postulates of Tectoniques's work include corridors provided natural light and ventilation, clear, staggered transitions from public to private space, varied floor plans and pleasant outdoor spaces.
The cooperation has brought about two buildings set at an angle to each other on opposite sides of a street, with both consisting of two volumes linked in the middle by access stairs. This nexus is easily recognised from the outside thanks to the perforated and folded metal staircase façade that interrupts the buildings' otherwise horizontal and segmented articulation. To avoid the usual division into plinth, main volume and attic, the design presents double-height attics and a mix of various materials for the plinths. Since the neighbouring houses do not adhere to classical types of building modulation to any great extent, the solution gives the quarter a very differing look in the direction of Avenue Mermoz.
Another of the architects' principles is to choose suitable materials depending on the requirements of the building component concerned, even if this results in a colourful medley. In the case in hand, concrete has been used for the plinth course, the basement and the load-bearing walls, while wallstud framing forms the projecting balcony partitions and the façade substructure. The facade panels are made of mineral fibre board and mounted to a wood-metal structure; the balcony partitions and the shutters come in metal with a gold look.






















