Colourful Solitaire: M9 Museum by Sauerbruch Hutton
Foto: Alessandra Chemollo
Mestre is widely considered to be little more than a bleak place on the way to the laguna of Venice. However, this suburb has continued its cultural development over the past few years. Since December, the new Museo M9 has been contributing to this phenomenon. The name M9 - Museo Novecento - indirectly reveals the theme of the museum: novecento stands for the 20th century in Italy.
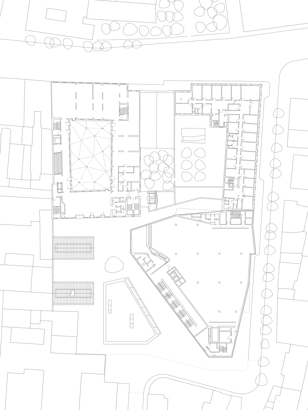
Before the refurbishment by Sauerbruch Hutton, the neighbourhood around the old Convento delle Grazie was a collection of unused, dilapidated military buildings. Now, many new perspectives and paths have pepped up the land surrounding the former convent dating from the 16th century. The ground floor has become a large public area. The upper floors are now home to co-working spaces in the old convent and exhibition areas in the new museum. This is where the Fondazione di Venezia shows the history of Italy in the 20th century.
The convent has been painstakingly renovated and expanded with an opaque membrane roof that shelters the courtyard. This roof has not been laid on top of the building, but rather covers the yard like an umbrella. The building itself was completely gutted; only the bracing walls were preserved. Added frames connect the spaces as spacious co-working areas. New ceiling joists of wood increase the load-bearing capacity and are a visual reminder of the ceilings typical to Venetian palazzi.
Even from a distance, the new Museo M9 building stands out with its vivid façade of coloured ceramic panels. Sauerbruch Hutton were intensely preoccupied with these colours and their interplay. The panels fit in with the surrounding structures and subtly enhance the overall chromatic spectrum.
The long cascading stairway, which is flanked by a continuous window, is at the heart of the museum. The first and second upper storeys are where the interactive permanent exhibition is shown. The third floor can accommodate temporary exhibitions. This support-free space is lit indirectly through a shed roof. Furthermore, large-format windows open onto a view of the Mestre roofscape.

















