// Check if the article Layout ?>
Communal housing and wide vistas: "Share Houses"
Photo: Bruce Engel
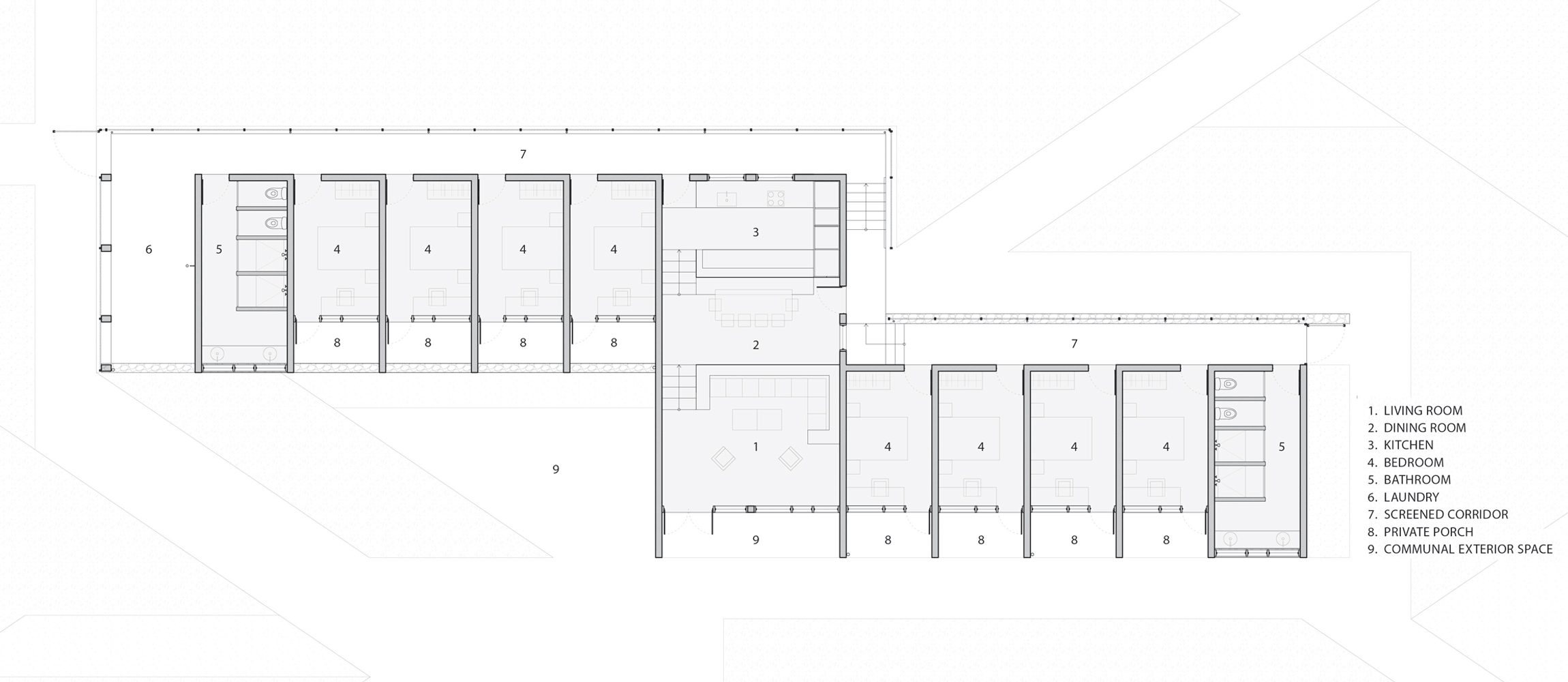
The two separate buildings located adjacent to the hospital on a sloping site provide temporary housing for 16 persons altogether, namely employees of the Partners In Health organisation and the Ministry of Health. This not only saves time and money but, it is hoped, will also enhance connections between personnel and the community and create a 'village within a village' effect – all aspects taken into consideration in choosing materials and also in the erection of the buildings. As a result almost all the materials have been sourced from neighbouring areas, plus local residents were involved in work on the building site, thus enabling the planners to meet the tight budget while fulfilling the intention of fostering the local economy.
The two individual structures have a z-shaped floor plan in which the four bedrooms and shared bathroom in each wing lead over to a central gathering and dining area. Bedrooms facing north-west have their own private exterior space, each provided a deep overhang and offering magnificent views of Kibaya valley. The central common space in each building can be used not only as a sitting area but also for cooking and dining. Staggered floor plans and stepped interiors with different levels given over to specific uses accommodate the sloping character of the site and the differences in elevation within the individual buildings. Large window openings in the façade and roof provide natural lighting and create a connection with the outdoors.
The individual private rooms in the Share Houses are accessed along a covered and screened outdoor corridor much like an exterior passageway. The screening, which is made of woven eucalyptus strips, recalls a traditional Rwandan construction style. The remaining facades as well as the interior walls are built of brick hand-made by a women's cooperative. Each of the buildings is protected from wind and weather by a tiled saddleback roof.
The Share Houses project was developed by Sharon Davis working in partnership with Rwanda Village Enterprise. It is the second important project to be executed by the New Yorker in Rwanda, the first being the Women's Opportunity Center in Kayonza.















