// Check if the article Layout ?>
Complex roofline: single-family house in Copenhagen by Sigurd Larsen
A striking roofline is the distinguishing feature of the single-storey family home designed by Sigurd Larsen for a site on Copenhagen's outskirts. The complex geometry of the roof allows sunlight to enter the house in diffused form, plus it creates strategically placed lighting accents in selected areas for a varied experience of the interior rooms.
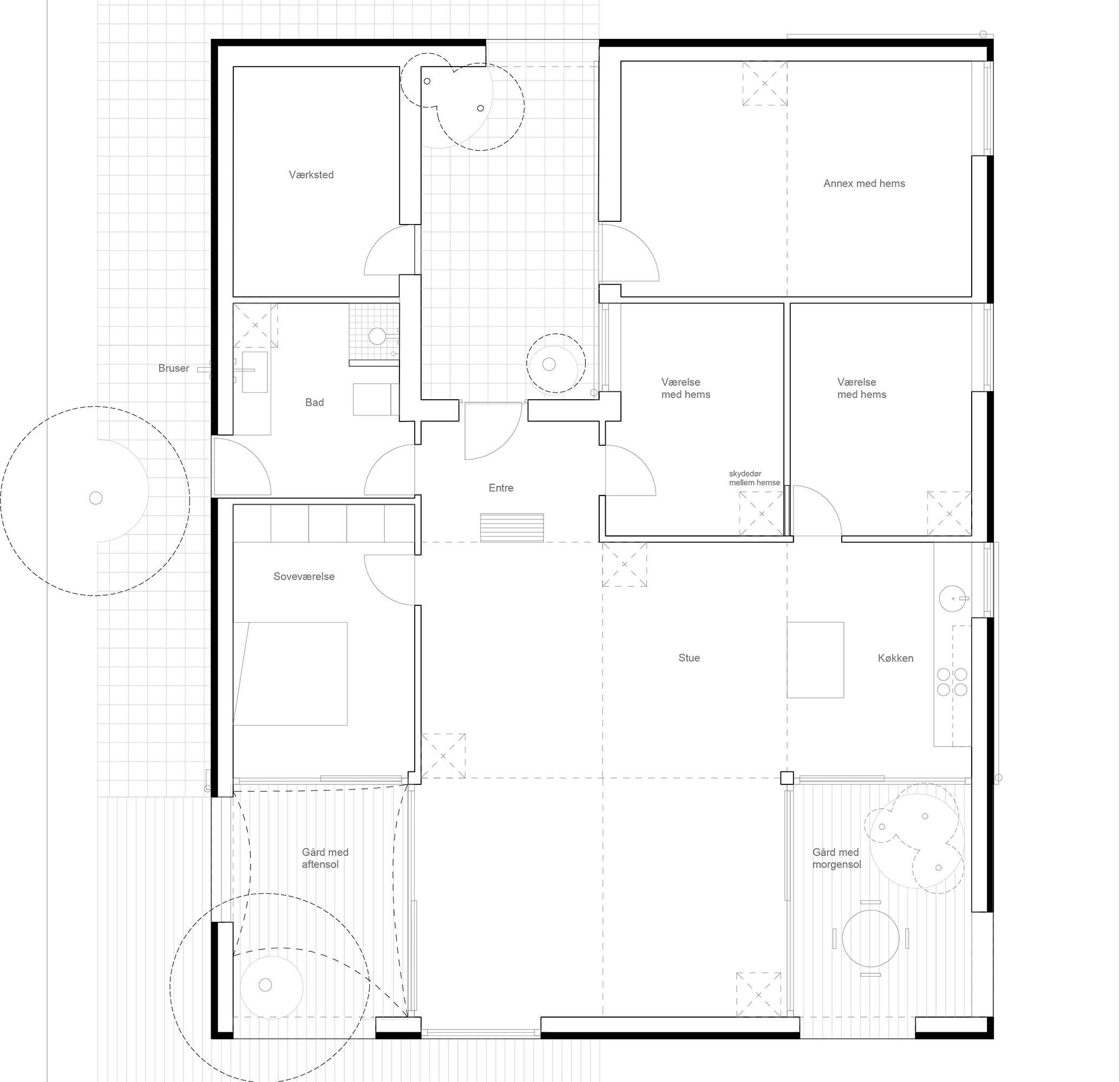
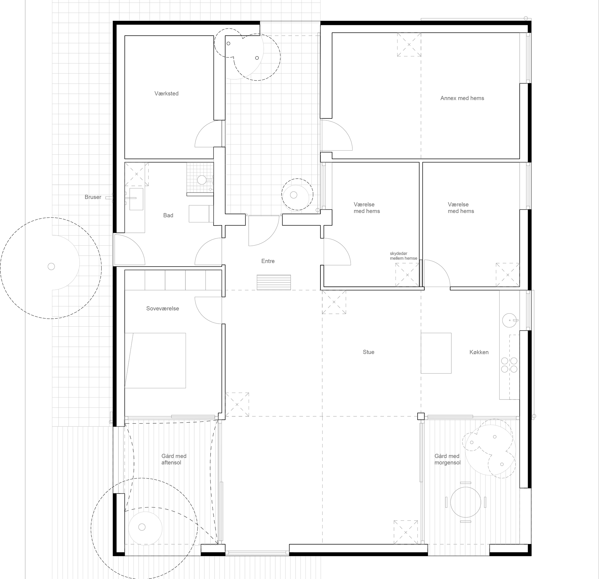
A mainly inward orientation and an open-plan layout characterise the simple cube-shaped volume of the house; at the same time three partially enclosed courts form an intermediate zone between indoors and outdoors. One of these courts acts as the entrance to the house and leads into the spacious living room, which has been provided the highest ceiling in the building. The master bedroom, aligned to the southwest, has access to a further courtyard living area, while the combined kitchen/living room area facing southeast benefits from the morning sun.
The clients wished the house – specifically designed for them and their two children – to enable adaptation for long-term use once the children leave home. The children's area is therefore organised into a separate section that can later be used as a self-contained unit with an entrance of its own.
A mainly inward orientation and an open-plan layout characterise the simple cube-shaped volume of the house; at the same time three partially enclosed courts form an intermediate zone between indoors and outdoors. One of these courts acts as the entrance to the house and leads into the spacious living room, which has been provided the highest ceiling in the building. The master bedroom, aligned to the southwest, has access to a further courtyard living area, while the combined kitchen/living room area facing southeast benefits from the morning sun.
The clients wished the house – specifically designed for them and their two children – to enable adaptation for long-term use once the children leave home. The children's area is therefore organised into a separate section that can later be used as a self-contained unit with an entrance of its own.












