// Check if the article Layout ?>
Composition with yellow: House for Stephanie & Kevin in Haaltert, Belgium
Photo: Atelier Vens Vanbelle
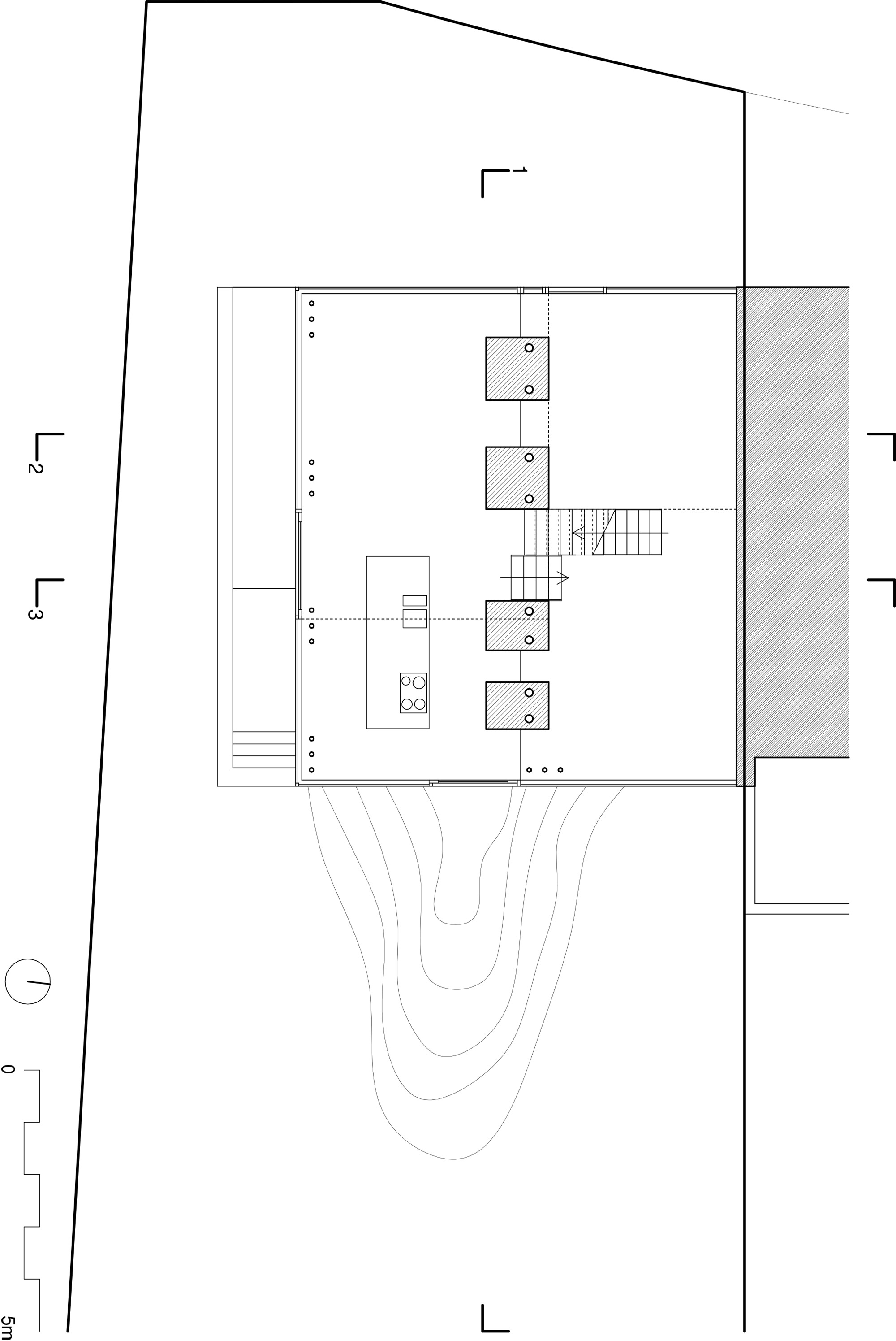
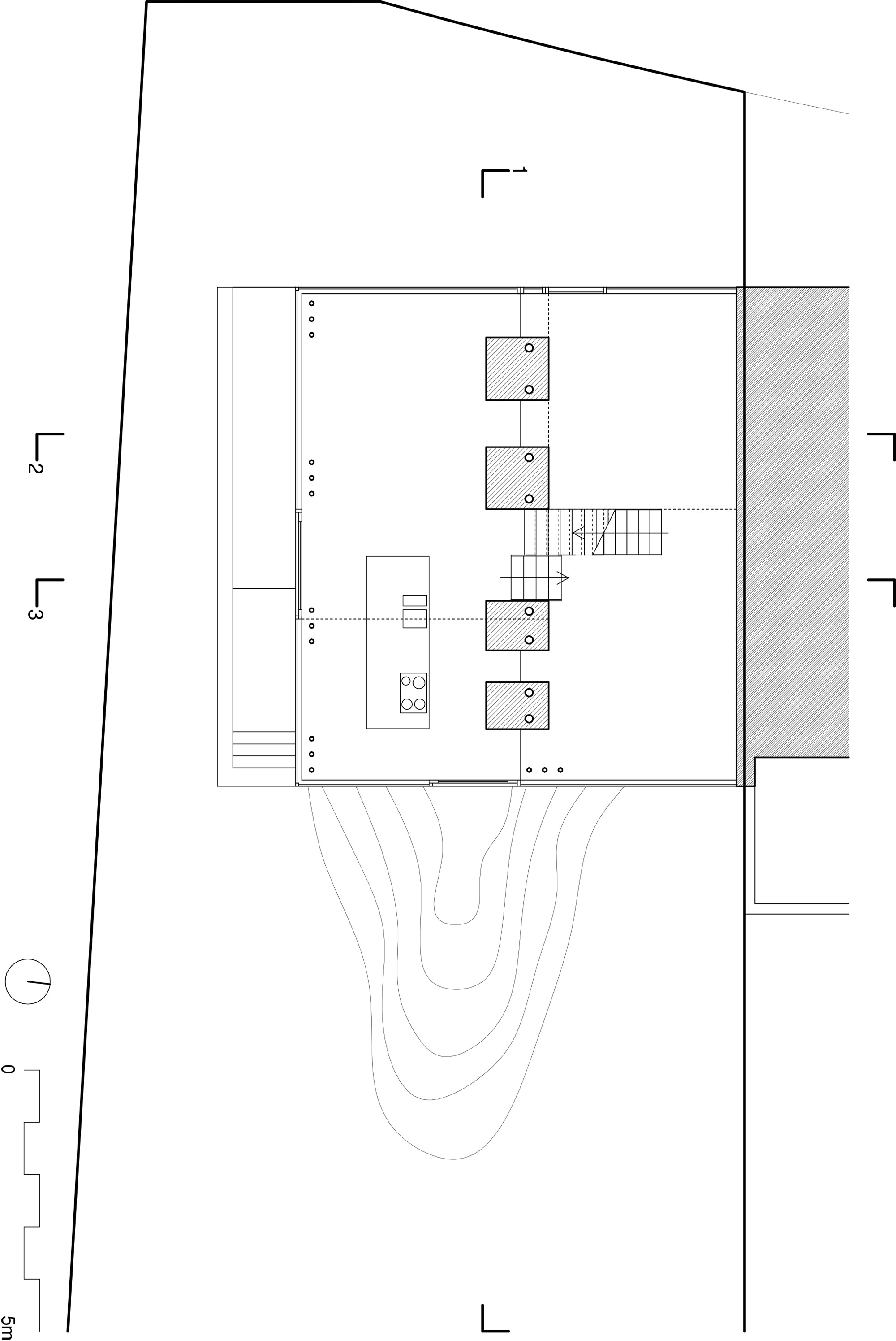
The private residence for the young family has been built with several split levels, enabling fascinating relationships between the various areas. The living room is on the first floor, above a volume built out of concrete blocks. Dries Vens and Maarten Vanbelle have placed a spacious work studio on the lowest level, while the entrance hall and laundry room are located half a level higher on the ground floor.
The living room is conceived as a "stage". Glazed on three sides, it is filled with sunlight all day long and creates a feeling of close contact with the surrounding landscape. To provide the space with the necessary intimacy, the floor, walls and ceiling are clad in parquet boards. Three bedrooms and a bathroom are located in the upper area of the house. The design of the façade is didactic in intention in that the differing surfaces on the exterior make the building's individual levels and functions legible from the outside.
The living room is conceived as a "stage". Glazed on three sides, it is filled with sunlight all day long and creates a feeling of close contact with the surrounding landscape. To provide the space with the necessary intimacy, the floor, walls and ceiling are clad in parquet boards. Three bedrooms and a bathroom are located in the upper area of the house. The design of the façade is didactic in intention in that the differing surfaces on the exterior make the building's individual levels and functions legible from the outside.















