Concrete Administration: Citizen Service Centre by Bez + Kock for the City of Ulm
Foto: Brigida Gonzalez
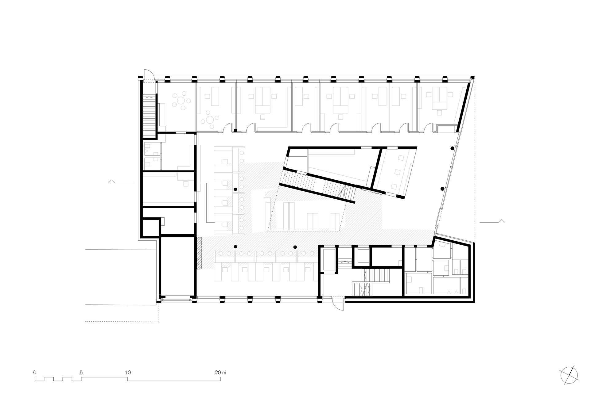
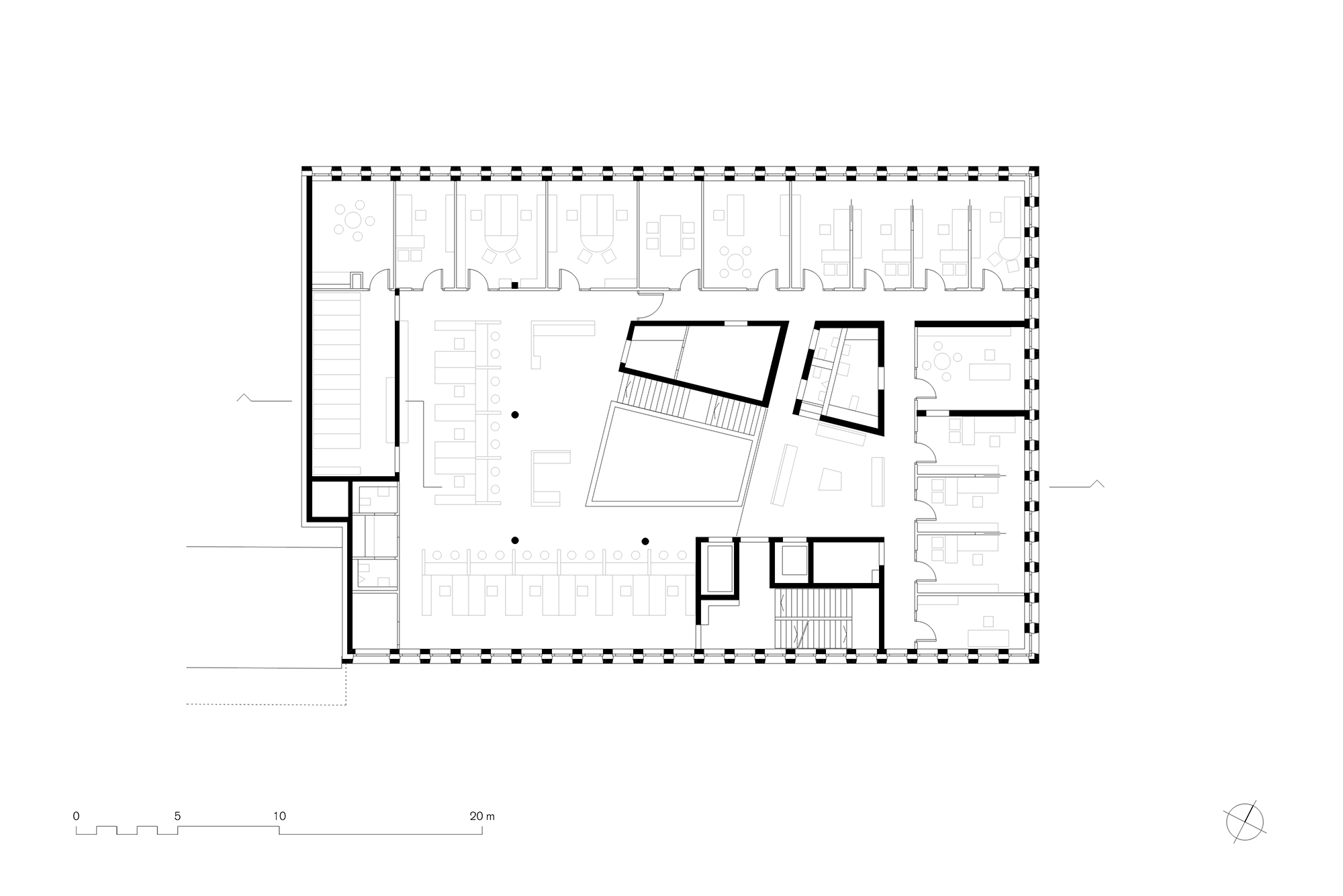
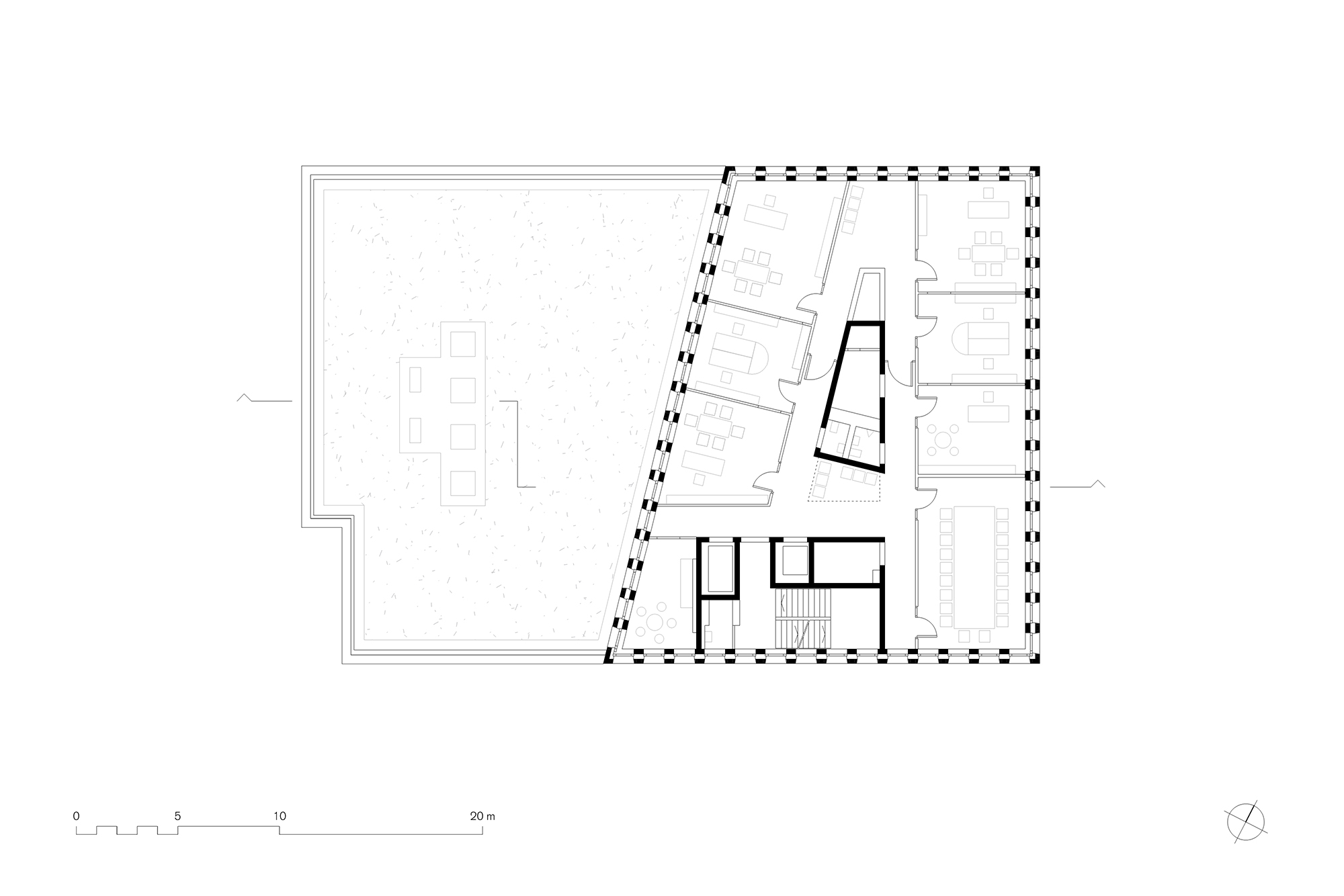
The new Citizen Service Centre, which has united all municipal services under one roof, stands between the main railway station and the Old Town of Ulm. The new structure fits into the built environment in a row of public buildings that trace the course of the old city wall along Olgastrasse.
The structure itself comprises two volumes: a two-storey base and a five-storey tower set atop the northeast half of the low plinth. A regular grid façade of exposed concrete and floor-to-ceiling glazing covers the Citizen Service Centre all the way around. The in-situ concrete surfaces have been bush-hammered and processed in such a way that the mixed-beige tone of the local Jura stone shines through.
The Chamber of Crafts neighbours the new Citizen Service building to the northeast, forming a small square which acts as main access to the service centre. While the two base levels, designed as an open hall, have taken on functions subject to heavy traffic, the storeys above are home to less-frequented spaces. Even here, the individual levels have been connected via small atria and galleries intermittently distributed in the building; these convey a sense of consistency and a feeling of openness. The top level has a terrace overlooking the city.
The design of the interior is characterized by light-coloured materials, terrazzo flooring as well as bespoke, white-lacquered fittings. Vivid red felt adds bright accents to the new building. The history of Ulm can be experienced in several spots in the Citizen Service Centre: dark areas in the floor at street level outline both the old city wall and a gunpowder tower that once stood there. These are complemented by two sections of wall exposed during construction work.


















