// Check if the article Layout ?>
Dancing with a View: Conservatory in Nantes
Photo: Audrey Cerdan
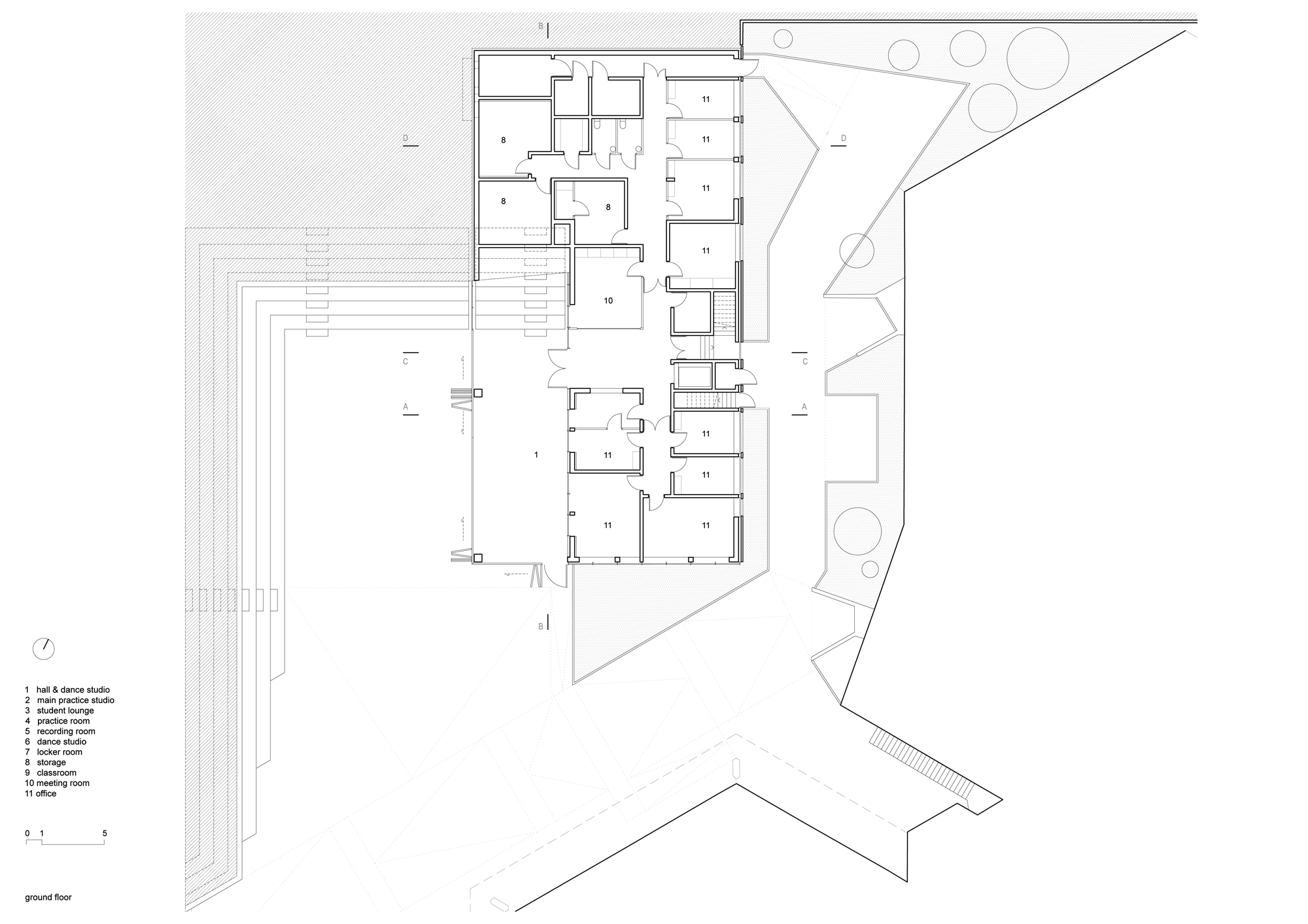
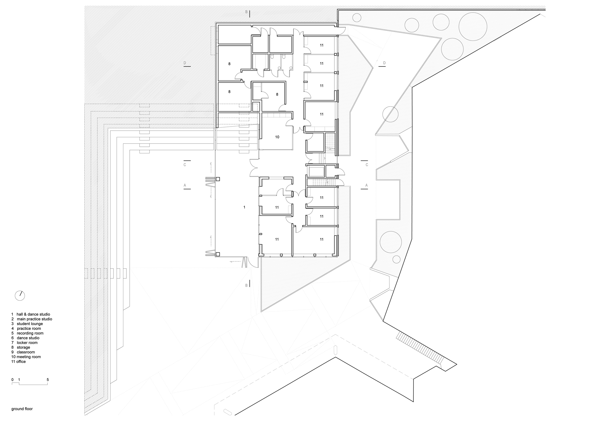
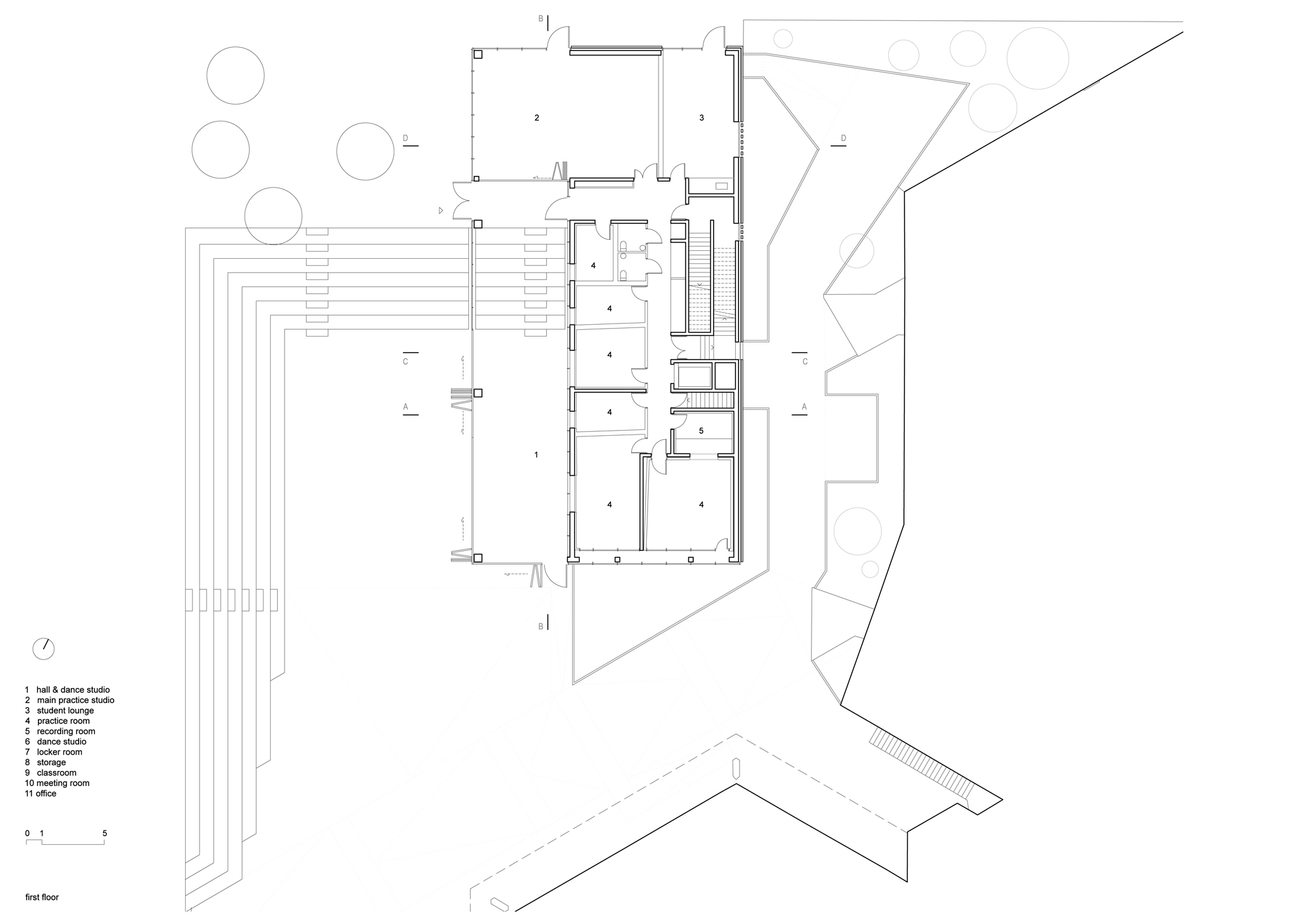
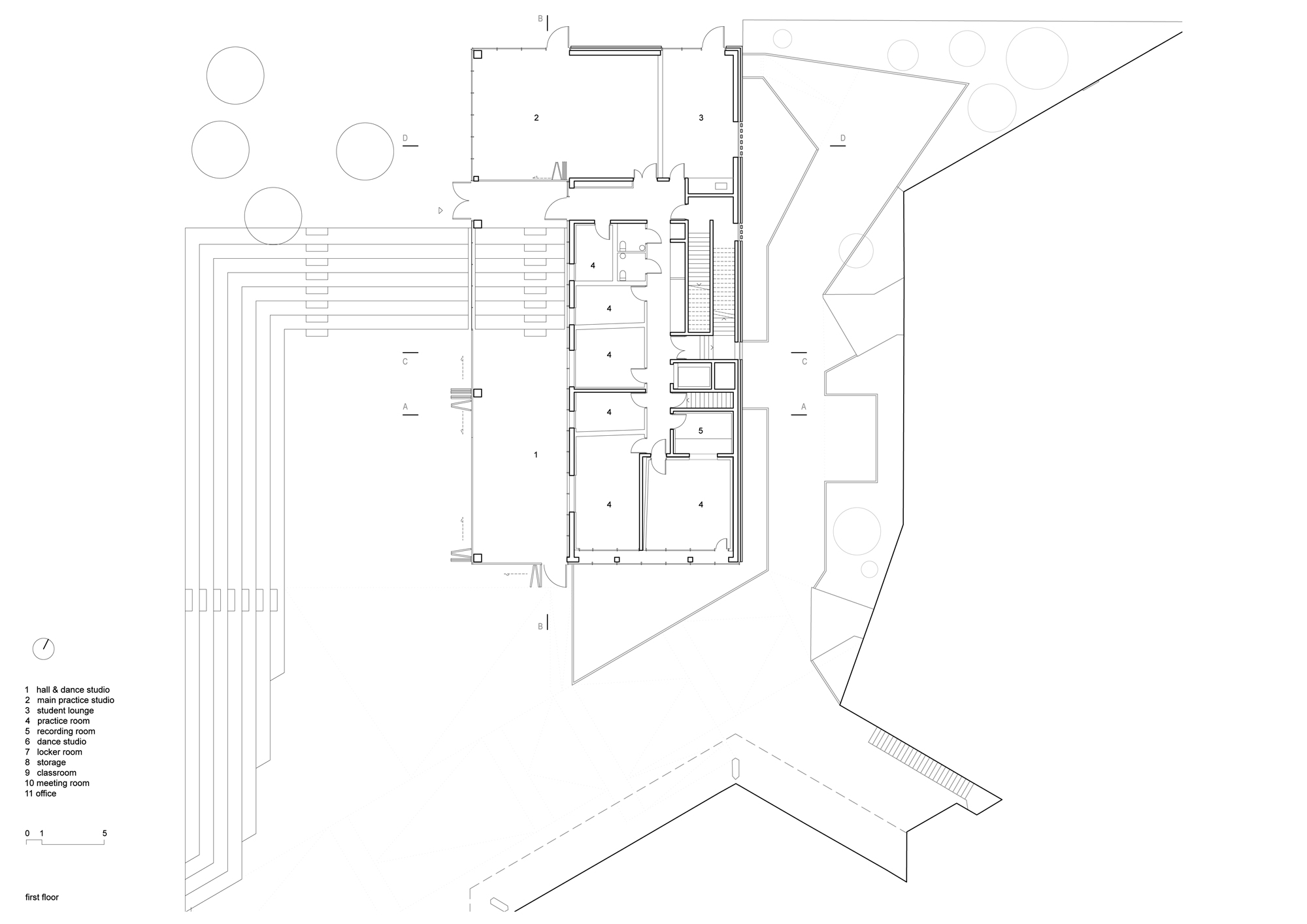
In their commission from the Bretagne-Pays de la Loire Conservatory and Academy of Performing Arts, the architects created a sharp-edged building whose spacious interior accommodates bright dance studios and practice rooms.
The two-storey concrete cube rises from its glass base. Large-format, building-high apertures interrupt the homogenous façade, giving a first impression of the life within. The middle section of the southwest façade is divided with a brick surface broken up with playfully arranged windows. An area in front of the structure offers steps for seating and serves as a communicative meeting place. This area can be connected to the ground floor by means of bi-fold shutters.
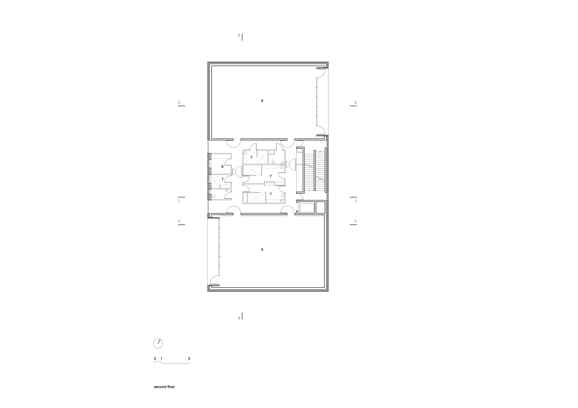
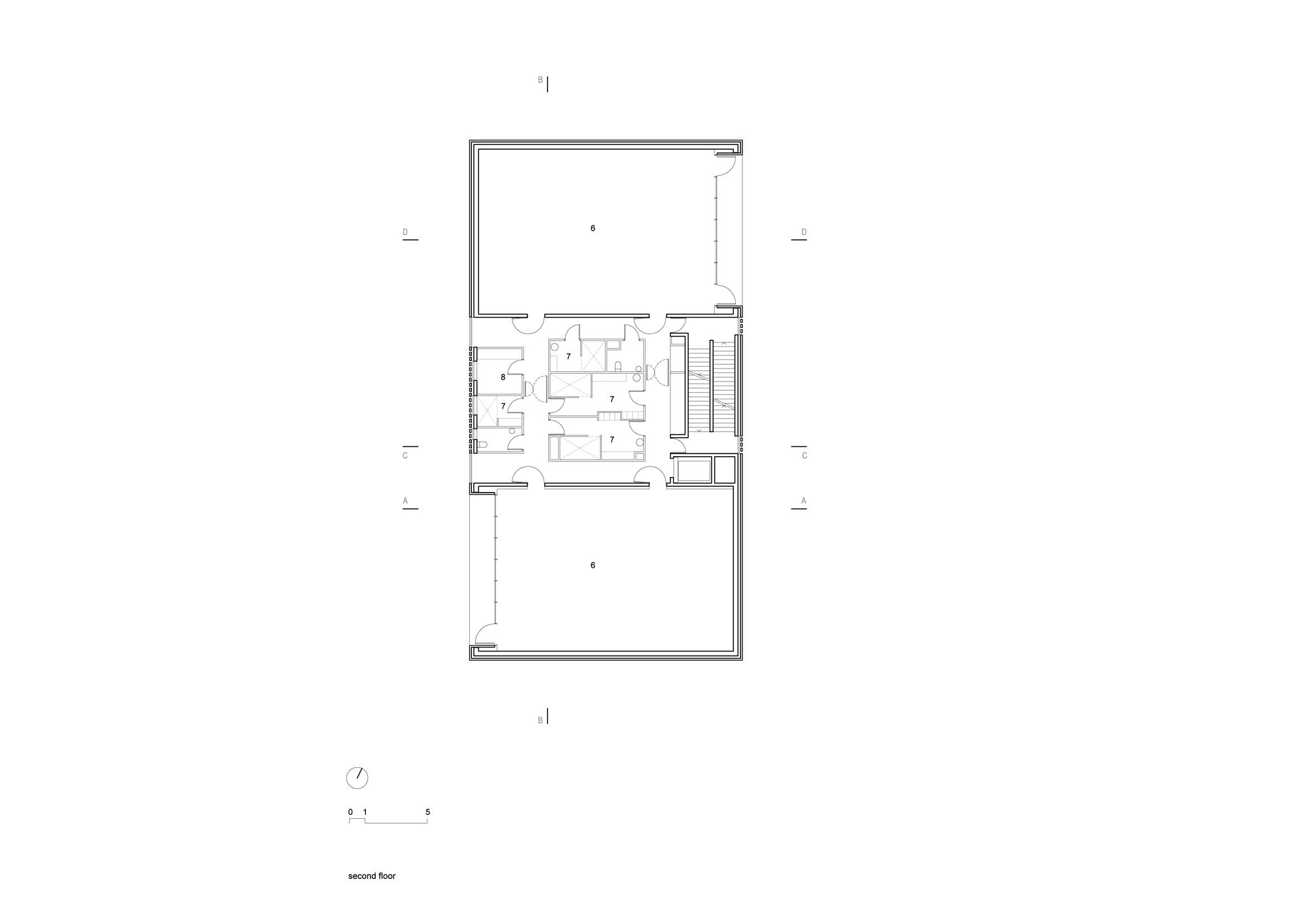
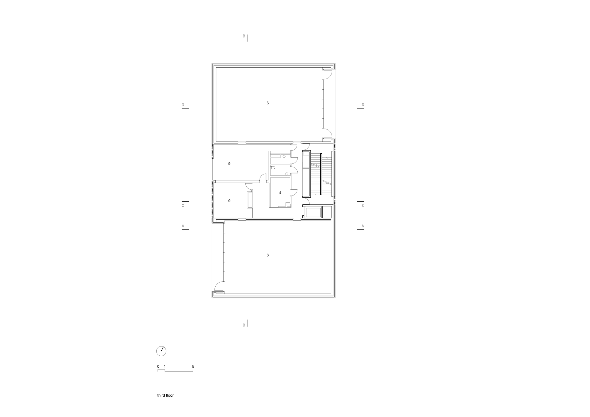
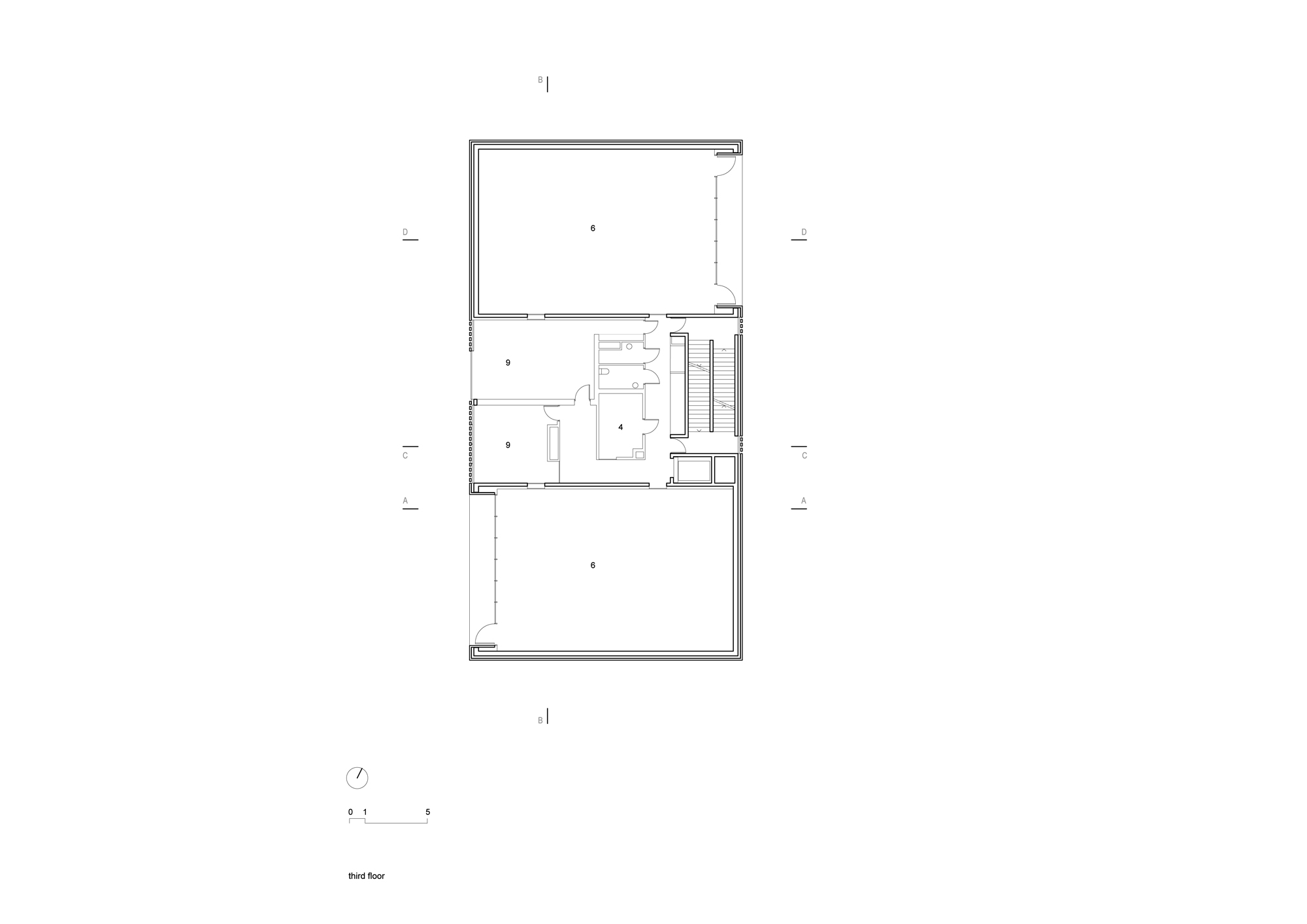
The various window formats reflect the heterogeneous spatial program in the conservatory. The inner life of the building is revealed in the arrangement of small offices, practice rooms, other spaces and generous, two-storey dance studios. Each studio has large windows on one side. These serve not only for natural ventilation; they also offer panoramic views of the city of Nantes. Recesses that appear to be deep soffits are actually narrow balconies.
This design by Raum Architects translates the genres of dance, music and the performing arts into a modern, contemporary spatial concept. The clear structure presents a self-confident figure that fits precisely into its urban surroundings. Above all, the interior offers students generous, bright spaces where they can practice, make music and dance to their hearts’ content.





















