Digital artisans in a rear yard outbuilding: Remise for startups in Prenzlauer Berg
Foto: Simon Menges
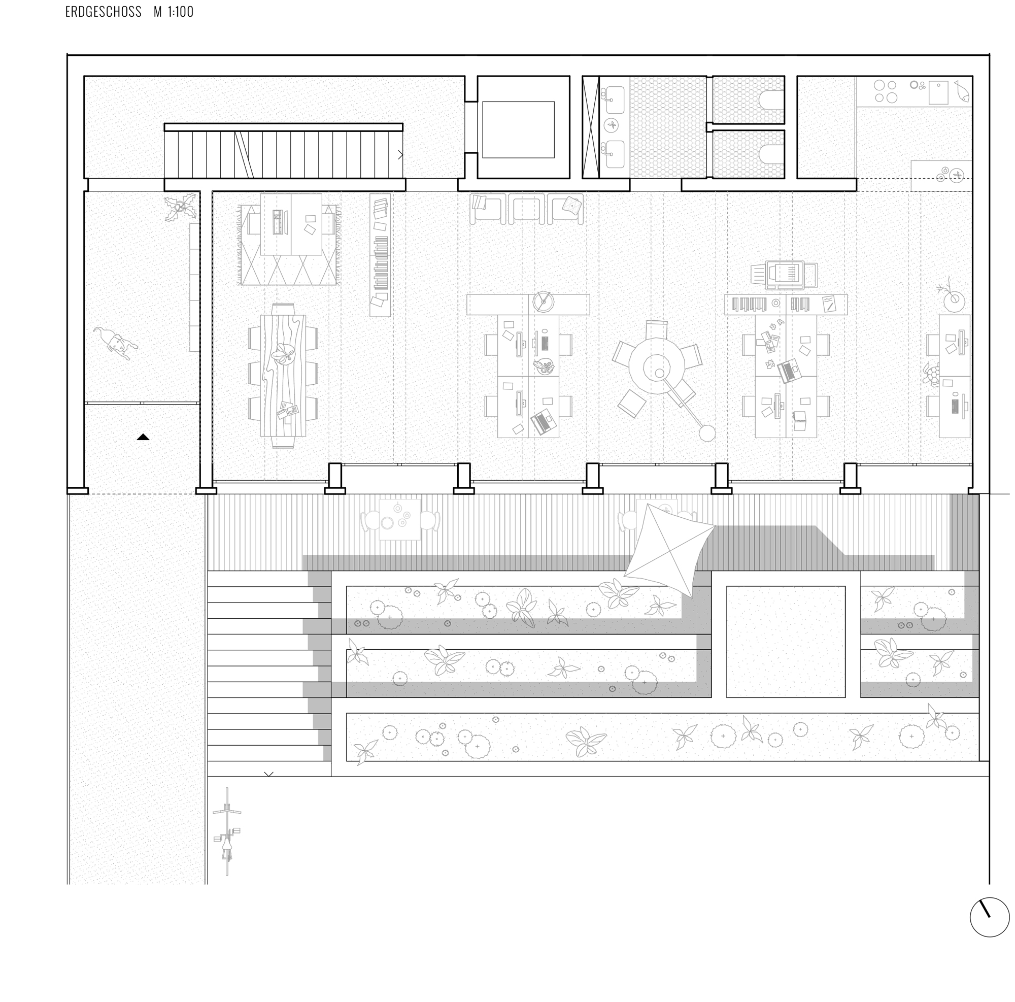
Im Berliner Stadtteil Prenzlauer Berg sind 80% der Bebauung aus der Zeit der vorletzten Jahrhundertwende mit ihrer klassischen Struktur von Vorderhaus, Hinterhaus und Remise noch erhalten. Am nördlichen Ende des Hinterhofs eines Mietshauses aus der Gründerzeit in der Immanuelkirchstraße hat Jan Wiese Architekten zusammen mit Ralf Wilkening jetzt Gewerbeflächen für Startups geschaffen. Mit einer Wohnnutzung im Hinter- und Vorderhaus – dessen Dachausbau ebenfalls aus der Feder der Architekten stammt – und Gewerbeflächen im Remisen-Neubau tragen sie zur Idee einer vielfältig genutzten Stadt bei.
Die Hybridkonstruktion hat vor Ort gefertigte, tragende Wände aus Sichtbeton und Holz-Beton-Verbunddecken. Die Oberflächen der hölzernen Deckenkonstruktion bleiben im Innenraum sichtbar und bilden einen Kontrast zur mineralischen Oberfläche der Wände. An der West-, Nord- und Ostseite ist die Fassade komplett geschlossen. Die Südfassade dagegen ist großflächig über die ganze Höhe verglast und sorgt für viel Tageslicht im Inneren. Festverglaste Flächen wechseln sich mit Schiebeelementen, die sich zu französischen Balkonen öffnen, ab und beleben die ansonsten ruhige Fassade. Das freigelegte Untergeschoss ermöglicht es, dass die Glasfassade über alle vier Ebenen läuft.
Insgesamt drei Gewerbeeinheiten auf 502 m2 Nutzfläche erstrecken sich über je eine Ebene vom Erdgeschoss bis zum zweiten Obergeschoss. Mit Leichtbauwänden können die Büros individuell unterteilt werden. Im Untergeschoss sind eine Küche und optional nutzbare Räume untergebracht. Zusammen mit der Dachterrasse stehen sie allen Mitgliedern der Coworking-Gemeinschaft zur Verfügung.
Weitere Informationen:
Tragwerksplanung: Fd- ingnieure
TGA-Planung: Ingenieurbüro Dr.Specht
Holzbau: Kai Vater
Bauunternehmen: Hochbau KW Wohn- und Industriebau



















