// Check if the article Layout ?>
Dissociative effect: Philharmonic hall in Szczecin
Photo: Simon Menges
Dozens of white peaks crown the new structure representing one of 13 buildings in the final round of the renowned Mies van der Rohe Award. Throughout Poland, this building is already considered an iconic work of contemporary architecture.
Architect: Estudio Barozzi Veiga, Barcelona
Location: ul. Malopolska 48, 70-515 Szczecin, Poland
Architect: Estudio Barozzi Veiga, Barcelona
Location: ul. Malopolska 48, 70-515 Szczecin, Poland
In the centre of Szczecin, the new building has been erected on the exact location where another concert hall was inaugurated 130 years ago. The old hall, irreparably damaged in the Second World War, was torn down in the 1960s. After that time, the city’s philharmonic orchestra had to use the municipal administration building for its purposes. In 2004, a citizens’ action program took up the cause of building a new philharmonic hall. Their efforts led to an international architecture competition announced in 2007. As winner of the 44 submissions, Spanish-Italian studio Barozzi Veiga have created an expressive white-and-glass construction that has made waves on the architecture scene.
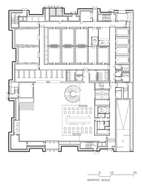
This philharmonic hall, which is named after the Polish composer Mieczys?aw Kar?owicz, comprises two smaller concert halls; the Sun Hall offers seating for 951 guests, while the chamber music hall accommodates 192. The designers see the larger hall as the heart of the building. The excellent acoustics, planned by Prof. Higini Arau, have been compared with those of Vienna’s Musikverein hall in that they achieve the highest standards. The ceiling and walls are ornamented with triangular panelling covered in gold leaf. These panels create favourable sound mixtures with a clear radiation of all frequencies.
The chamber music hall, clad primarily in black, was conceptualized as a suspended box and juts dramatically into the foyer. Other multifunctional spaces are available for exhibitions and other cultural events.
The façade and roofing material consist of translucent glass sheets which, by day, are white and nearly opaque. The building’s appearance changes according to the season. At dusk and after nightfall, the hall glows from within; it can also be lit up in many colours thanks to an integrated LED lighting system.
The volume of this new construction, which cost a mere 30 million euros, emerges from the verticality of the adjacent houses and the imposing character of the nearby neo-Gothic church. Despite its generous dimensions of about 60 X 55 metres of floor area, this hall – unobstructed on three sides - fits alongside the more slender neighbouring row houses with the same ridge height.










