// Check if the article Layout ?>
Dream house: Single-family residence – with electric car – near Stuttgart
Photo: Brigida Gonzalez
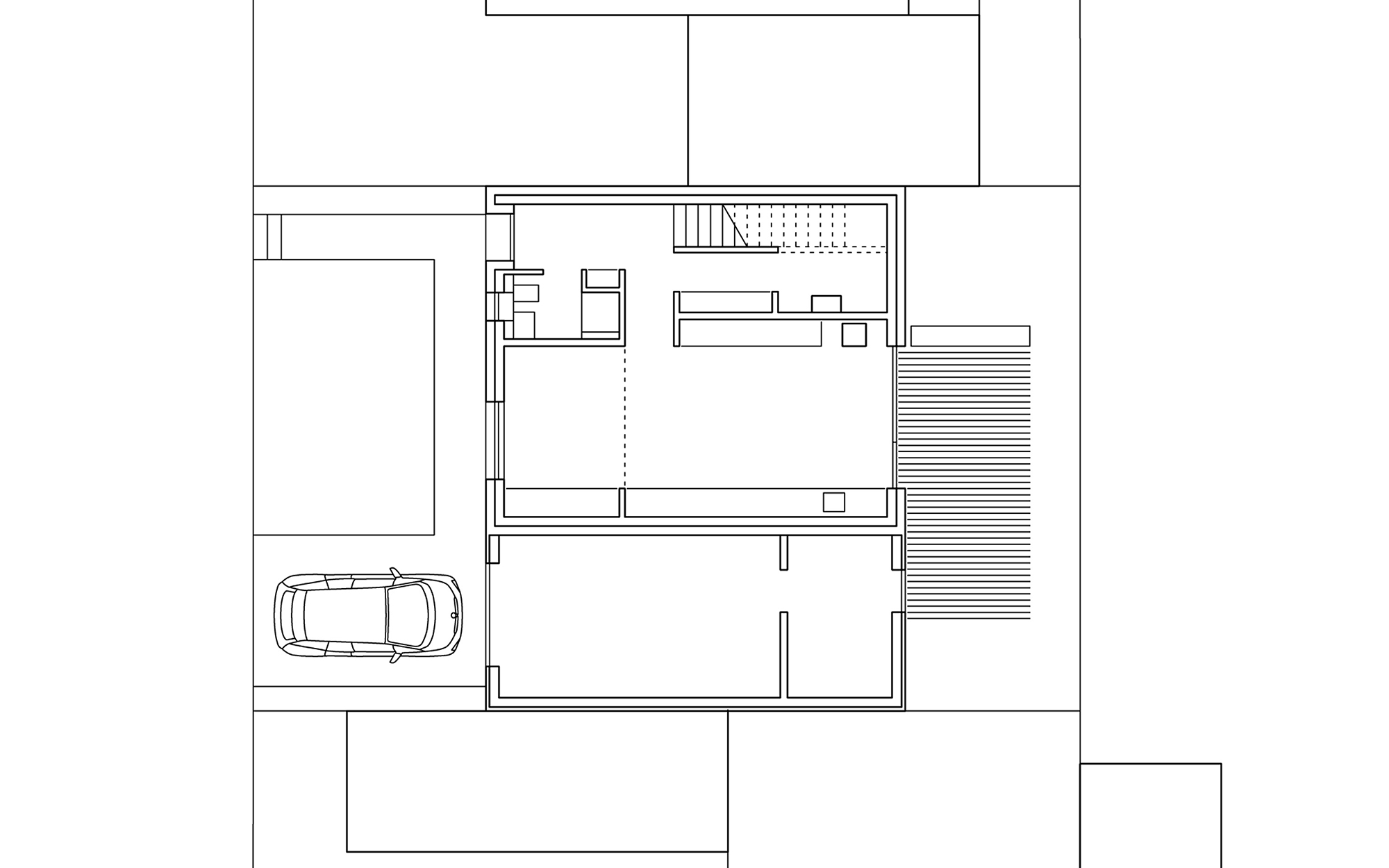
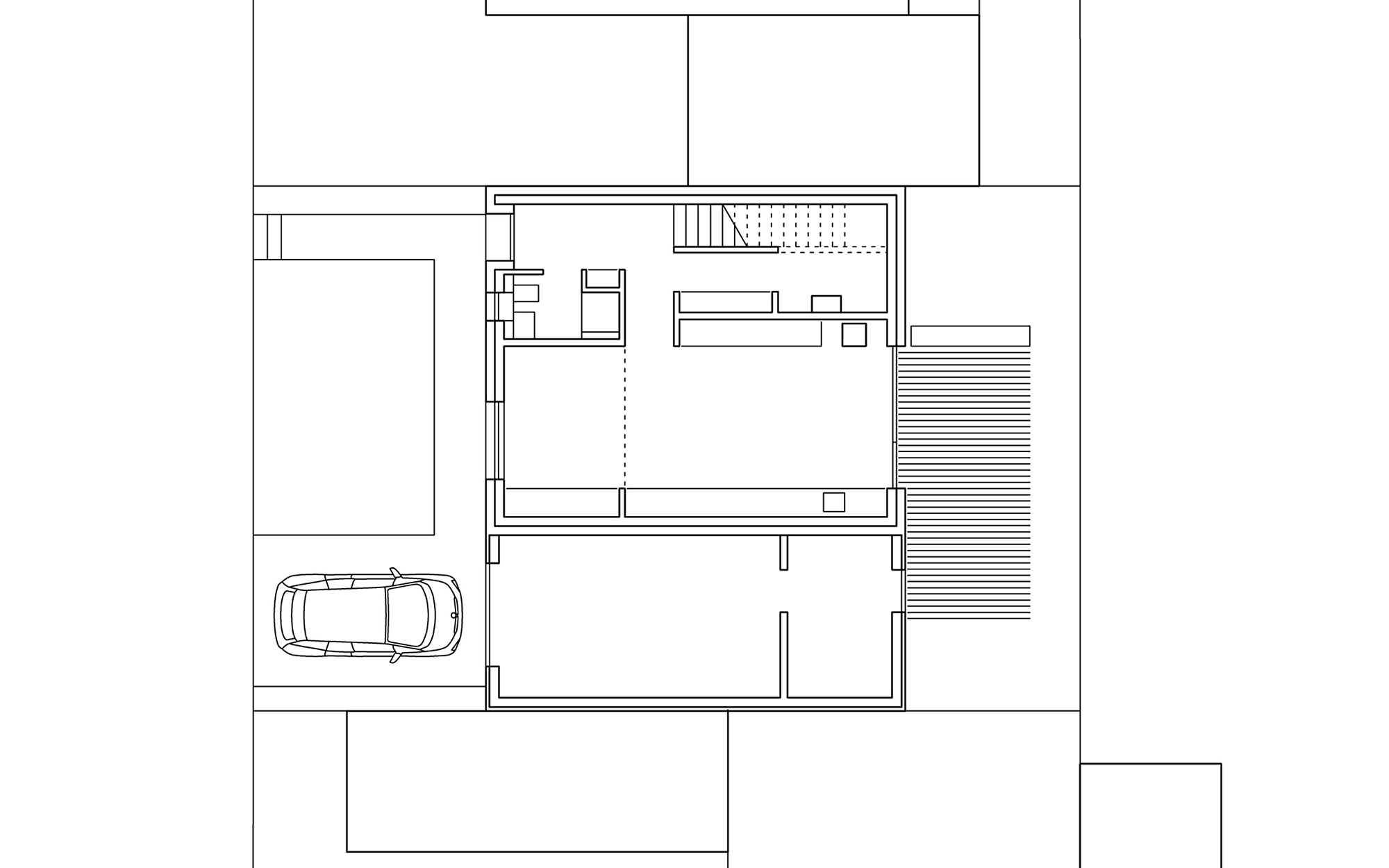
The plot, a modest parcel of land converted for residential use and measuring 11 x 18 metres in size, was subject to various physical constraints. Seen from the street to the west, the building is structured into two volumes offering a uniform frontage. The left-hand volume consists of the house, which rises three storeys and which the local planning authority permitted to directly abut with a neighbouring plot in the north. The right-hand volume, merely a single storey high, contains the garage. The front facades keep to the alignment of the neighbouring buildings, except for the second floor, which steps back by two metres and is topped by a flat roof.
Dark grey corrugated metal clads all the exterior elevations, giving the building a uniform look that recalls the site's industrial past while differentiating the house from its neighbours. The windows, all square in shape, frequently differ both in size and in the heights at which they are set, thus enlivening the exterior. Their narrow frames, slightly set back, round off the simple overall look of the building in accomplished manner.
The staircase and building service rooms are all located on the northern side, while all living areas face south. The ground floor is occupied by the living room, a kitchen and dining area and a work space divided off by a curtain and permitting access to a small terrace. The staircase leads up to the second floor, where the bedrooms are located. The top storey is open in character and provides room for a small balcony as well as room to work or relax.
The design of the interior spaces stands in contrast to the dark outer skin. White surfaces and pale wood characterise the rooms and fitted elements, ensuring a friendly, homely character. The staircases offers an absolute eye-catcher in the form of a tumble guard in bright-yellow cord. Despite its simplicity, the solution makes a lively and dynamic effect thanks to its colour and the differing directions in which the cords are strung.
The small house also makes its mark in energy-efficiency terms, being equipped with a ventilation and heat recovery system and featuring roof-mounted photovoltaic modules for powering the electric car.
Dark grey corrugated metal clads all the exterior elevations, giving the building a uniform look that recalls the site's industrial past while differentiating the house from its neighbours. The windows, all square in shape, frequently differ both in size and in the heights at which they are set, thus enlivening the exterior. Their narrow frames, slightly set back, round off the simple overall look of the building in accomplished manner.
The staircase and building service rooms are all located on the northern side, while all living areas face south. The ground floor is occupied by the living room, a kitchen and dining area and a work space divided off by a curtain and permitting access to a small terrace. The staircase leads up to the second floor, where the bedrooms are located. The top storey is open in character and provides room for a small balcony as well as room to work or relax.
The design of the interior spaces stands in contrast to the dark outer skin. White surfaces and pale wood characterise the rooms and fitted elements, ensuring a friendly, homely character. The staircases offers an absolute eye-catcher in the form of a tumble guard in bright-yellow cord. Despite its simplicity, the solution makes a lively and dynamic effect thanks to its colour and the differing directions in which the cords are strung.
The small house also makes its mark in energy-efficiency terms, being equipped with a ventilation and heat recovery system and featuring roof-mounted photovoltaic modules for powering the electric car.


















