// Check if the article Layout ?>
Education to the fore: Two school enlargements in London
Photo: Anthony Coleman
The Central Foundation Girls' School is attended by about 1,400 schoolgirls between 11 and 18 years of age. Although it takes up almost a complete block, it was still not large enough to provide suitable learning conditions for its sixth form classes, and they were thus taught in extremely dilapidated premises remote from the school. Patel Taylor's extension now integrates the sixth formers into doings at the school building on Bow Road.
In creating the extension, the architects took an existing listed building dating back to the thirties, remodelled and refurbished it for art and computer lessons and placed besides it two new buildings for science classrooms, a dining hall, an assembly hall and roof terrace. Protruding from the corner of the site, the brick cube of one of these two new buildings will doubtlessly serve as a landmark for the school in future, and contains the school's two largest spatial volumes in the form of the dining hall and assembly hall. The facade of the brick cube is articulated with strips of plaster that match it in materials and colours to the limestone and brickwork of the existing building. A break between the two is created by a glass curtain wall, backed by a new staircase that ties the buildings together.
The corner building's cubic shape also creates a link to the second extension, a low building with a white plaster finish erected for science classes in Coborn Street. The roof is the location of the sixth formers' own common room as well as a terrace for ball games.
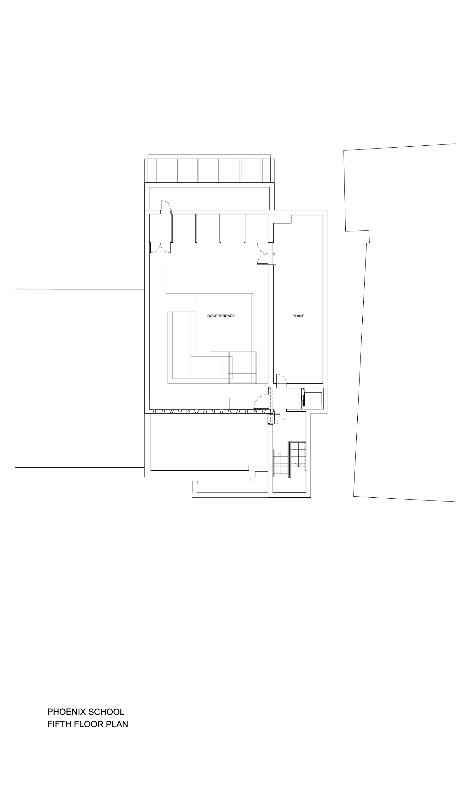
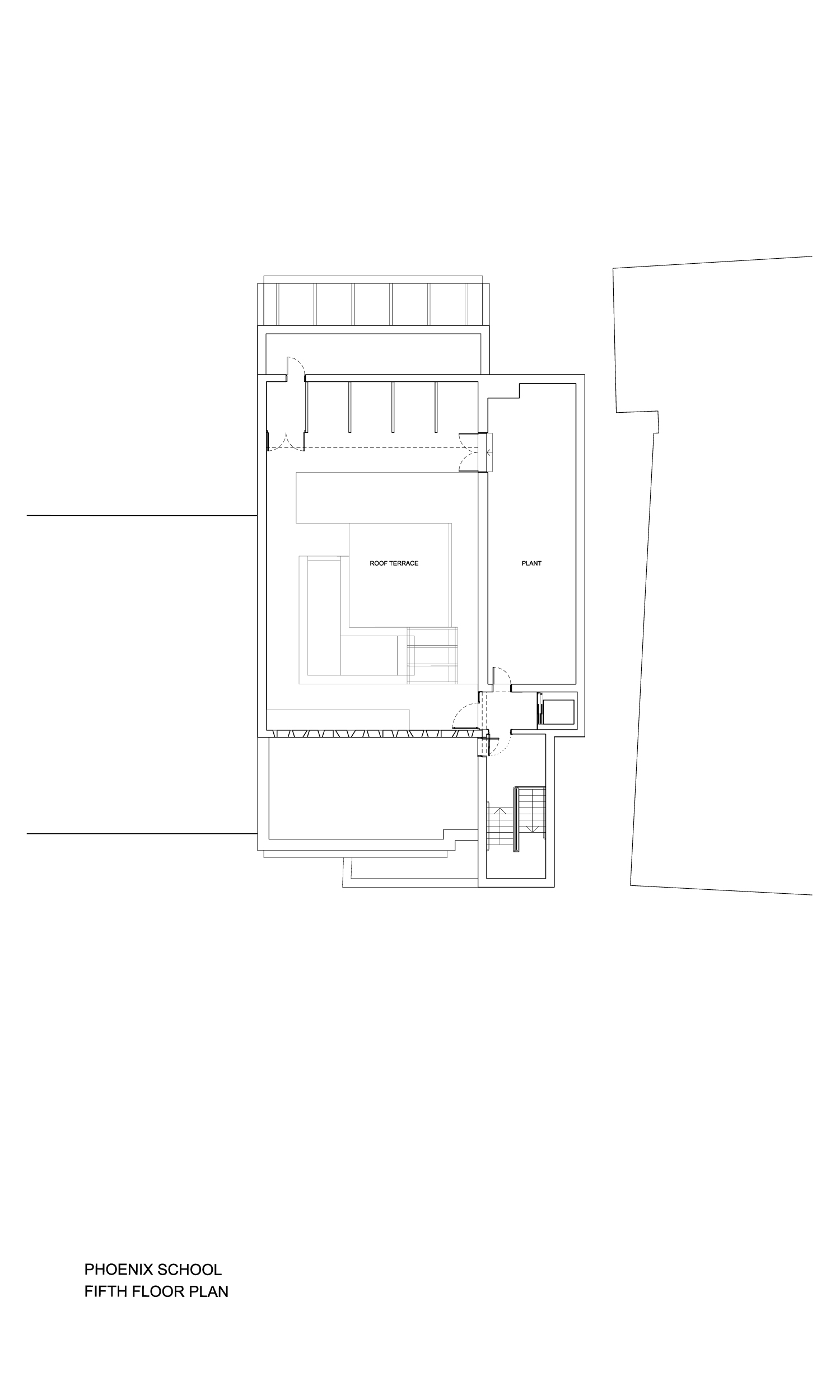
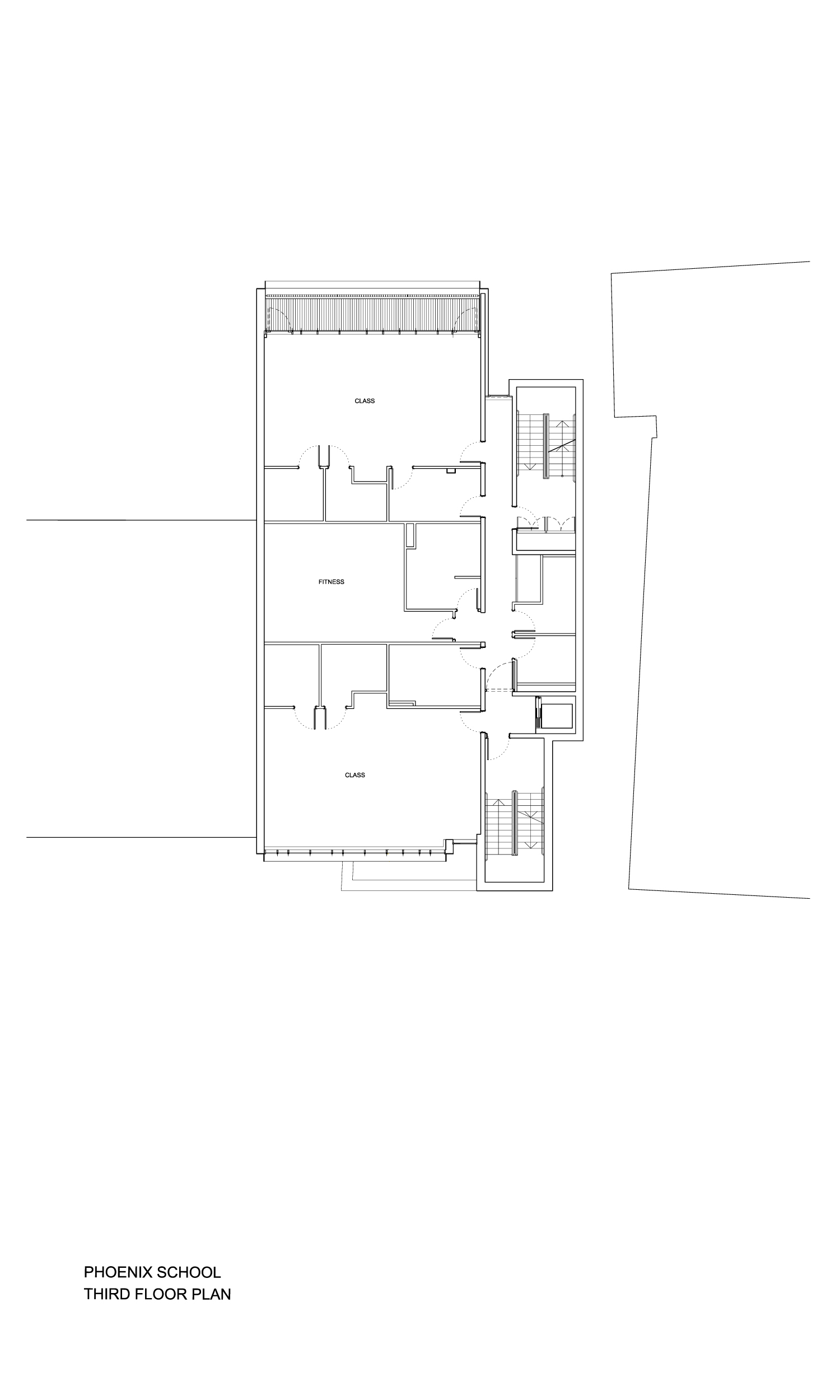
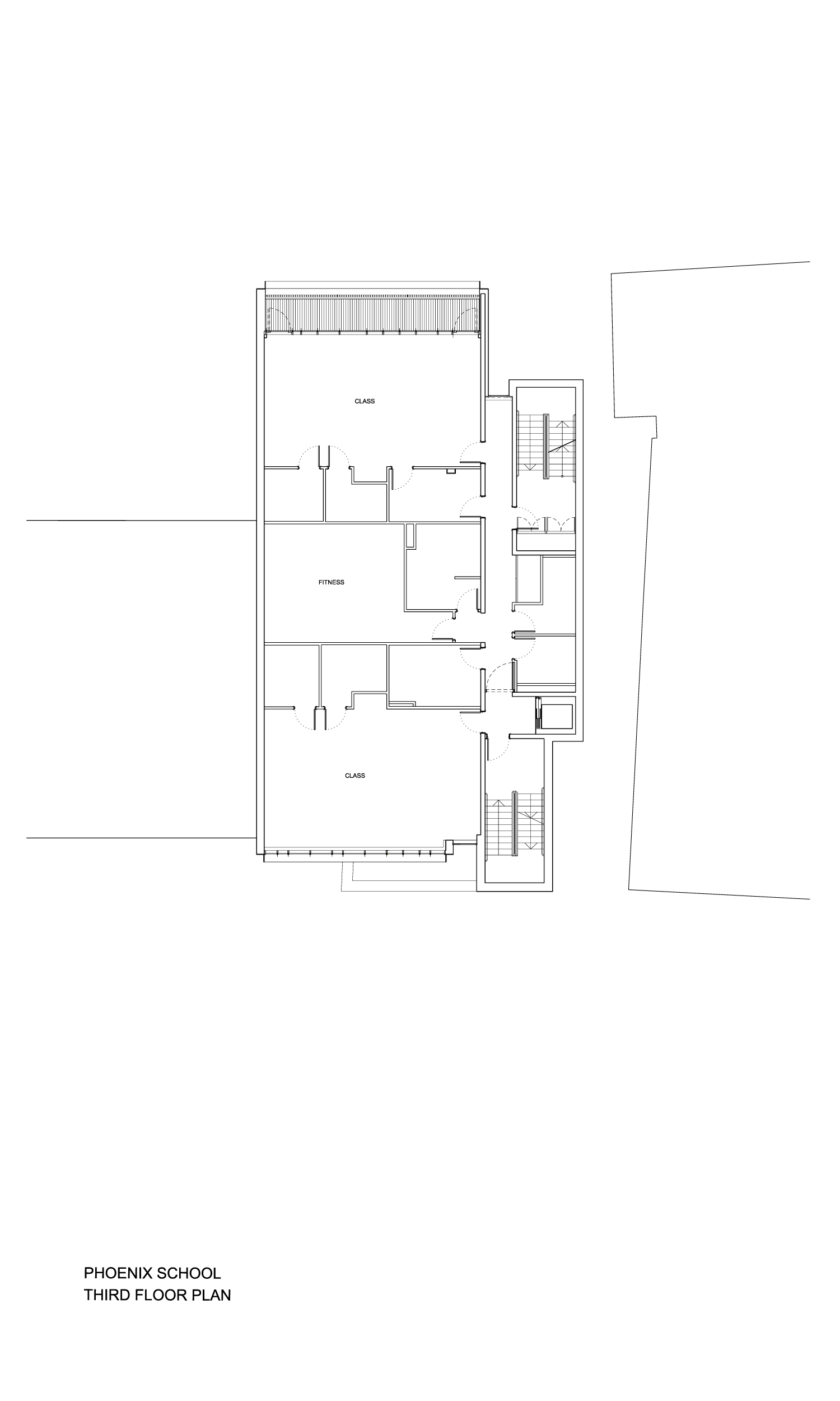
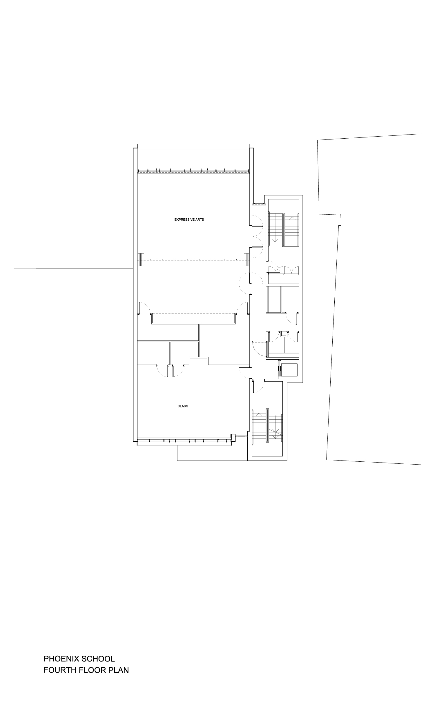
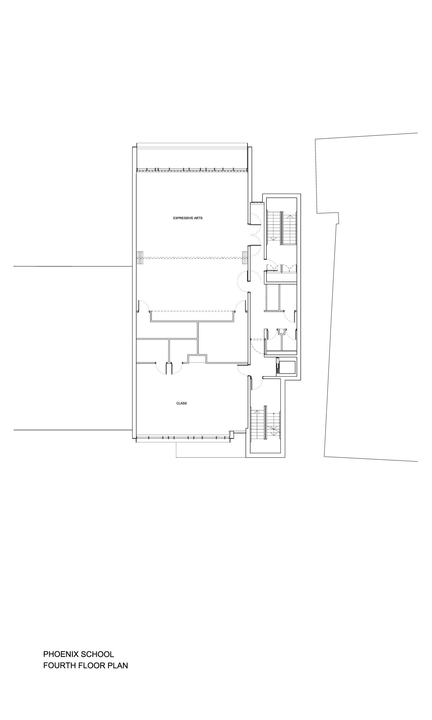
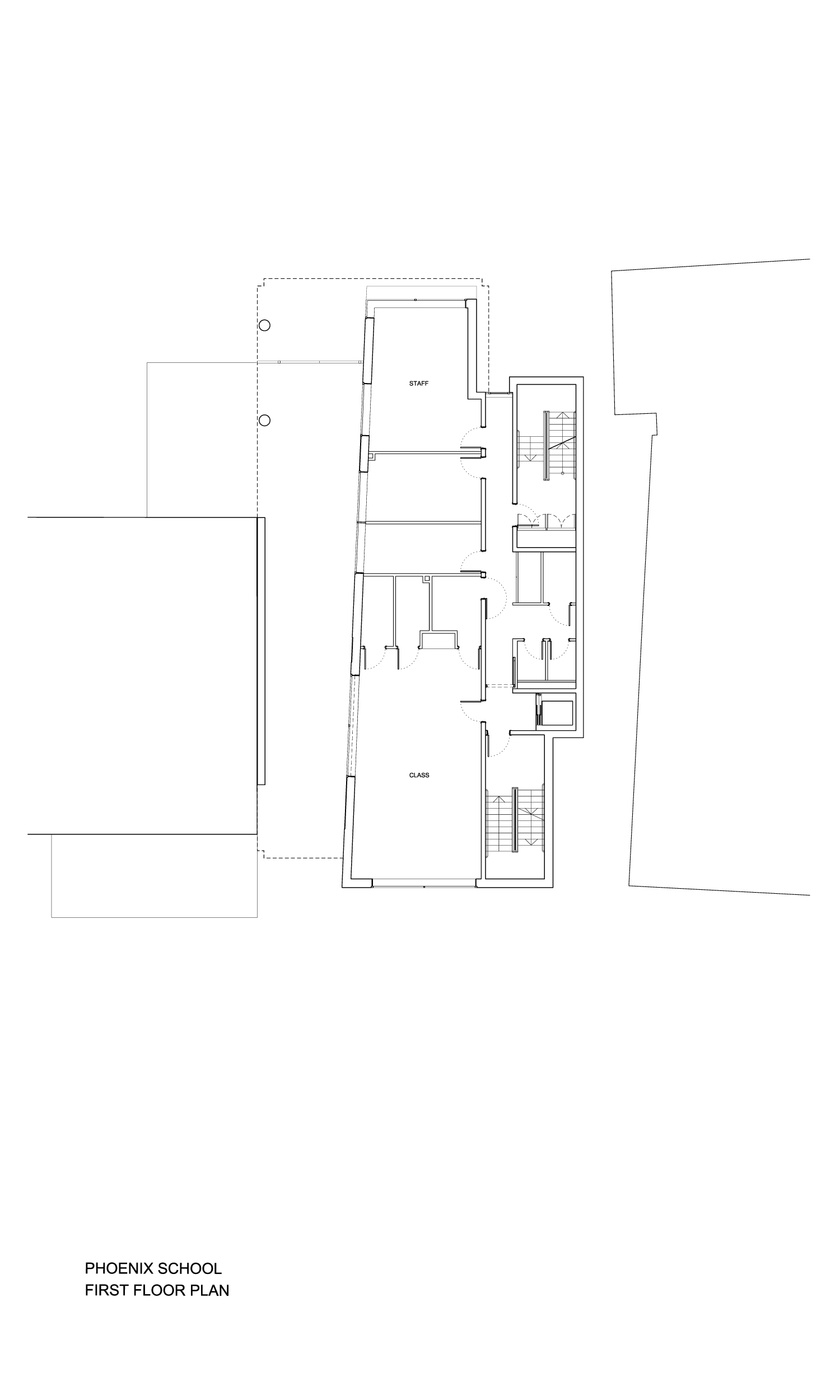
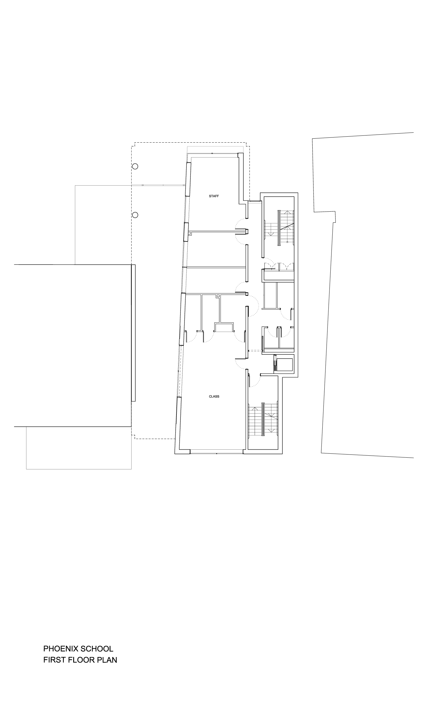
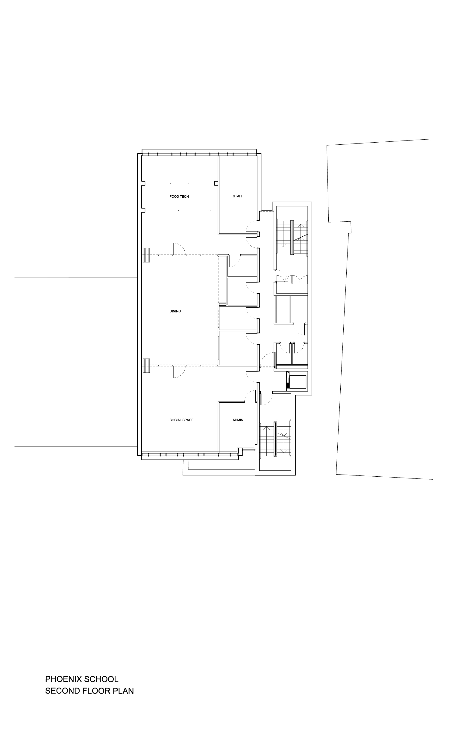
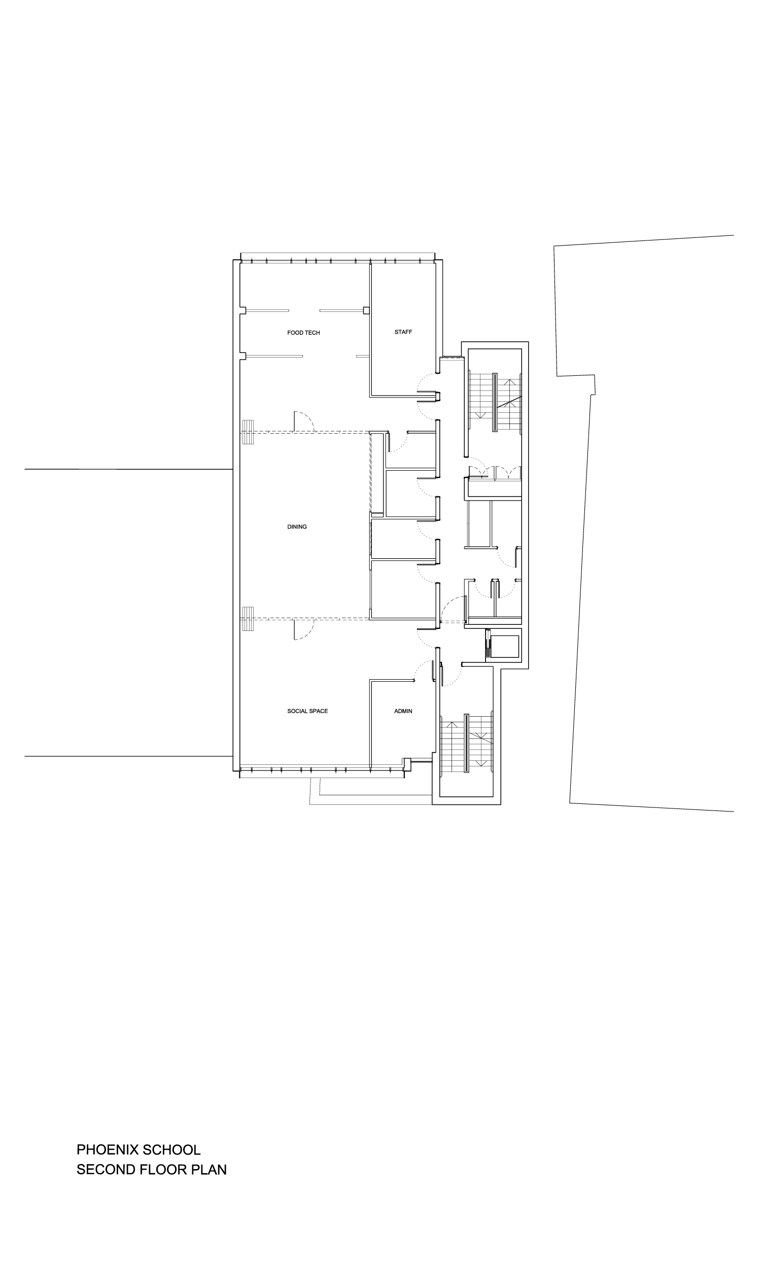
Extension to the Phoenix School: Prestige value and places of seclusion
With only 150 pupils, Phoenix School, a Bow Road institution that caters to pupils with special education needs, is a lot smaller than the Central Foundation Girls' School, but like it its main building, dated to 1952, is listed. Here the architects' task was to design it a new entrance and teaching building that provides step-free access to every storey. Devised by Patel Taylor as a vertically articulated head-end building, the extension acts as a link between the existing, four-storey building and the higher buildings on its other side. Framed by pale brick masonry and articulated with coloured pilaster strips, the curtain walled façade of its upper storeys marks the extension off from the neighbouring buildings to the north-east.
The extension contains the principal's and secretary's offices, staff rooms, several class rooms and a space for performing arts. Like the girls' school, it has been provided a roof terrace, in this case laid out less like a sports area and more like a green oasis with spots for withdrawal and seclusion.
















