A house full of stories
Detached House in London by 31/44 Architects
The “Six Columns” residential building gets its name from the six brick pilasters on the upper floor. © Nick Dearden
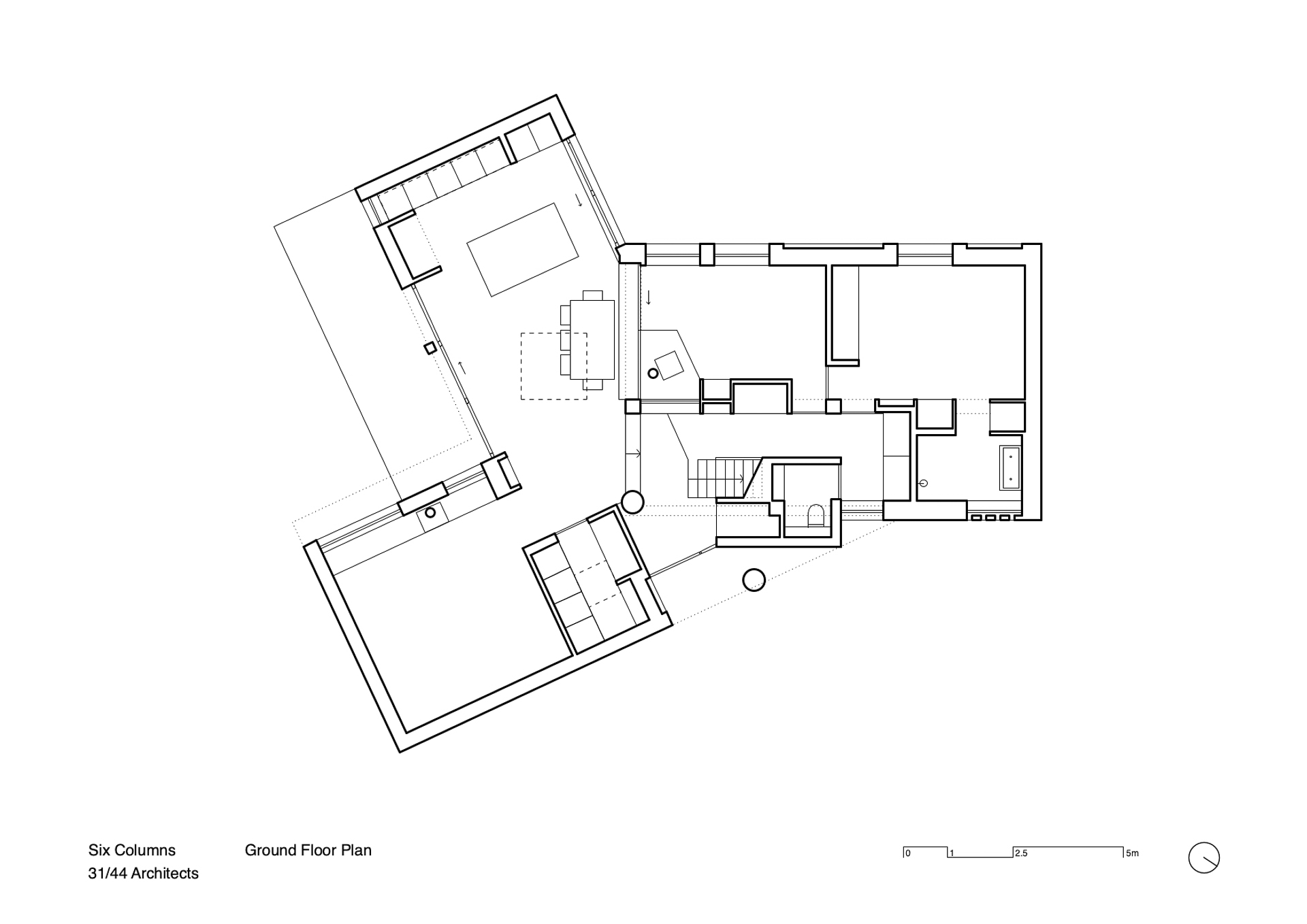
In London's Crystal Palace, Will Burges of 31/44 Architects has built a house for himself and his family of four. The compact structure blends into the street line, but as you approach, its unique architectural language becomes apparent. The multi-layered concept incorporates elements from neighbouring terraced and semi-detached houses, as well as architectural references, travel impressions, and personal memories. Responding to the trapezoidal, sloping plot, the building features slight twists and staggered heights, creating a sequence of small, interconnected rooms with diverse visual connections across three floors. On the ground floor, the rectangular structure is extended by pavilion-like extensions to the south-west and south-east, increasing the total living space to 150 m².


Pavilion-like extensions extend the house towards the garden. © Nick Dearden
Diagonal lines of sight
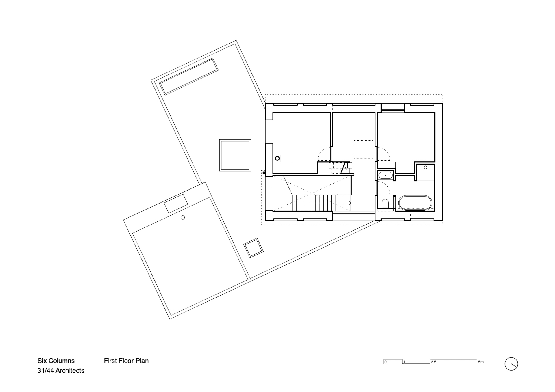
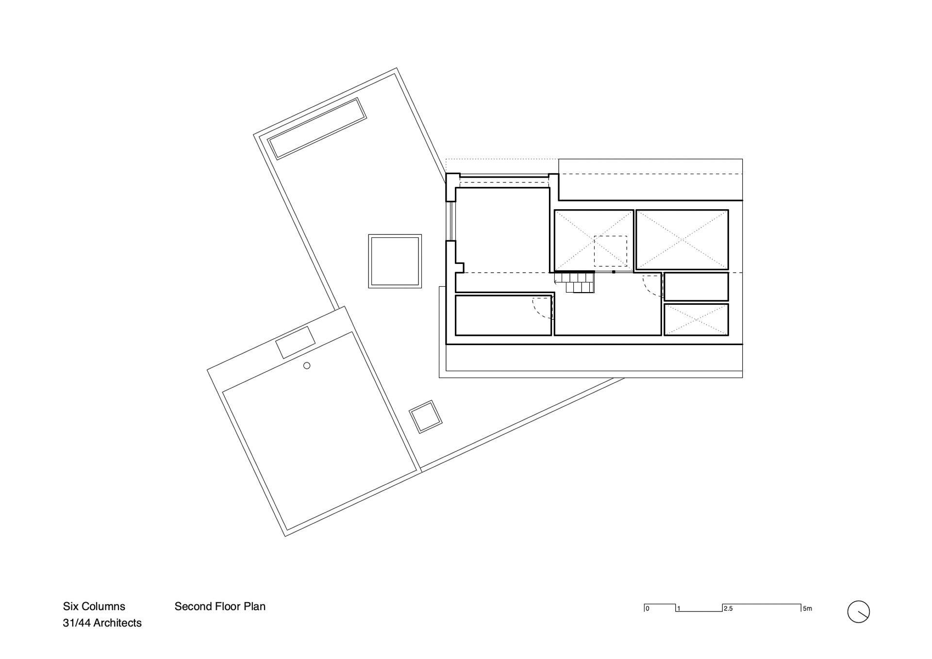
From the entrance, the view extends to the open-plan living and dining area. This space connects the two rear garden areas and forms the bright centre of the house. Diagonal lines of sight open up from the entrance hall into the greenery, while a room and a small lounge are shielded to the side. The staggered layout continues upstairs, where two compact bedrooms and a bathroom are complemented by an open, loft-like space in the attic, accessible via a bright green staircase. This creates an alternation between sheltered retreats and open zones with views across several levels.


Diagonal lines of sight open up from the entrance hall, offering views of the greenery. © Nick Dearden


The central living and dining area is the bright heart of the home. © Nick Dearden
References to architectural history
The "Six Columns" residential building draws on various architectural references that overlap in a playful and unobtrusive manner, never pushing themselves into the foreground. The motif of the simple, functional house is reminiscent of British post-war architecture of the 1950s, and the visible bricks, concrete frames and uncoated wood reflect the direct use of materials characteristic of this style. At the same time, the open living areas and the seamless integration of the house and garden recall the Californian Case Study Houses, where lightness and simplicity were paramount. The street facade incorporates elements of European architectural tradition: the dark green marble wall section references Mies van der Rohe's Barcelona Pavilion, and the six brick pilasters on the upper floor that give the building its name evoke memories of Scandinavia.


A dark green marble wall section is reminiscent of Mies van der Rohe's Barcelona Pavilion. © Nick Dearden


The flowing transitions between the house and garden are reminiscent of the Californian Case Study Houses. © Nick Dearden
Adaptable structures
The project focuses on robust, adaptable materials inside. The open-plan layout is formed by untreated, oiled wood, exposed brick and a concrete frame structure. The house has been deliberately designed to be adaptable in the long term. “We never saw Six Columns as a finished project,” says Will Burges. “A house should adapt to its residents as their needs change over time.”


A bright green staircase leads up to the attic. © Nick Dearden


The open-plan layout is formed by untreated, oiled wood, exposed brick and a concrete frame structure. © Nick Dearden
Economical construction
In terms of construction, the building dispenses with concrete-intensive pile foundations, instead using screw foundations to protect the tree population. The upper floors are characterised by a timber frame construction; the use of building materials was planned in such a way that steel beams could largely be dispensed with. An air heat pump covers all heating and hot water requirements, supported by triple glazing and underfloor heating, most of which is installed in the tiled floors. Ventilation follows traditional principles: a skylight in the double-height room on the first floor allows passive air circulation and keeps the house cool in summer. The CO₂ balance is already lower than that of comparable residential buildings and will serve as a reference for future office projects.
Architecture: 31/44 Architects
Client: Will Burges
Location: 29A Dulwich Wood Avenue, London SE19 1HG (GB)
Structural engineering: Price & Myers
Contractor: Altlant Construction
Landscape architecture: Aarde
Construction costs: £ 490 000






























