Ein Haus voller Geschichten
Einfamilienhaus in London von 31/44 Architects
Sechs Backsteinlisenen im Obergeschoss waren namensgebend für das Wohnhaus „Six Columns“. © Nick Dearden
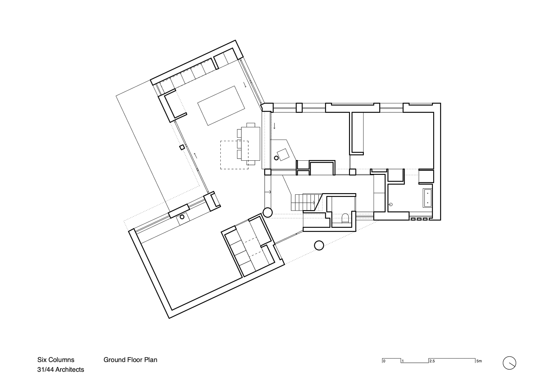
Im Londoner Chrystal Palace hat Will Burges von 31/44 Architects ein Wohnhaus für sich und seine vierköpfige Familie realisiert. Der kompakte Baukörper fügt sich in die Straßenzeile ein, entwickelt beim Näherkommen jedoch eine deutlich eigenständige Architektursprache. In das vielschichtige Konzept fließen Elemente der benachbarten Reihen- und Doppelhäuser ebenso ein wie baugeschichtliche Referenzen, Reiseeindrücke und persönliche Erinnerungen. Das Gebäude reagiert mit leichten Verdrehungen und Höhenstaffelungen auf das trapezförmige, geneigte Grundstück und schafft auf drei Etagen eine Abfolge kleiner, miteinander verbundener Räume mit vielfältigen Blickbeziehungen. Im Erdgeschoss wird der rechteckige Baukörper durch pavillonartige Anbauten nach Südwesten und -osten auf eine Wohnfläche von insgesamt 150 m² erweitert.


Pavillonartige Anbauten erweitern das Wohnhaus in Richtung Garten. © Nick Dearden
Diagonale Blickbeziehungen
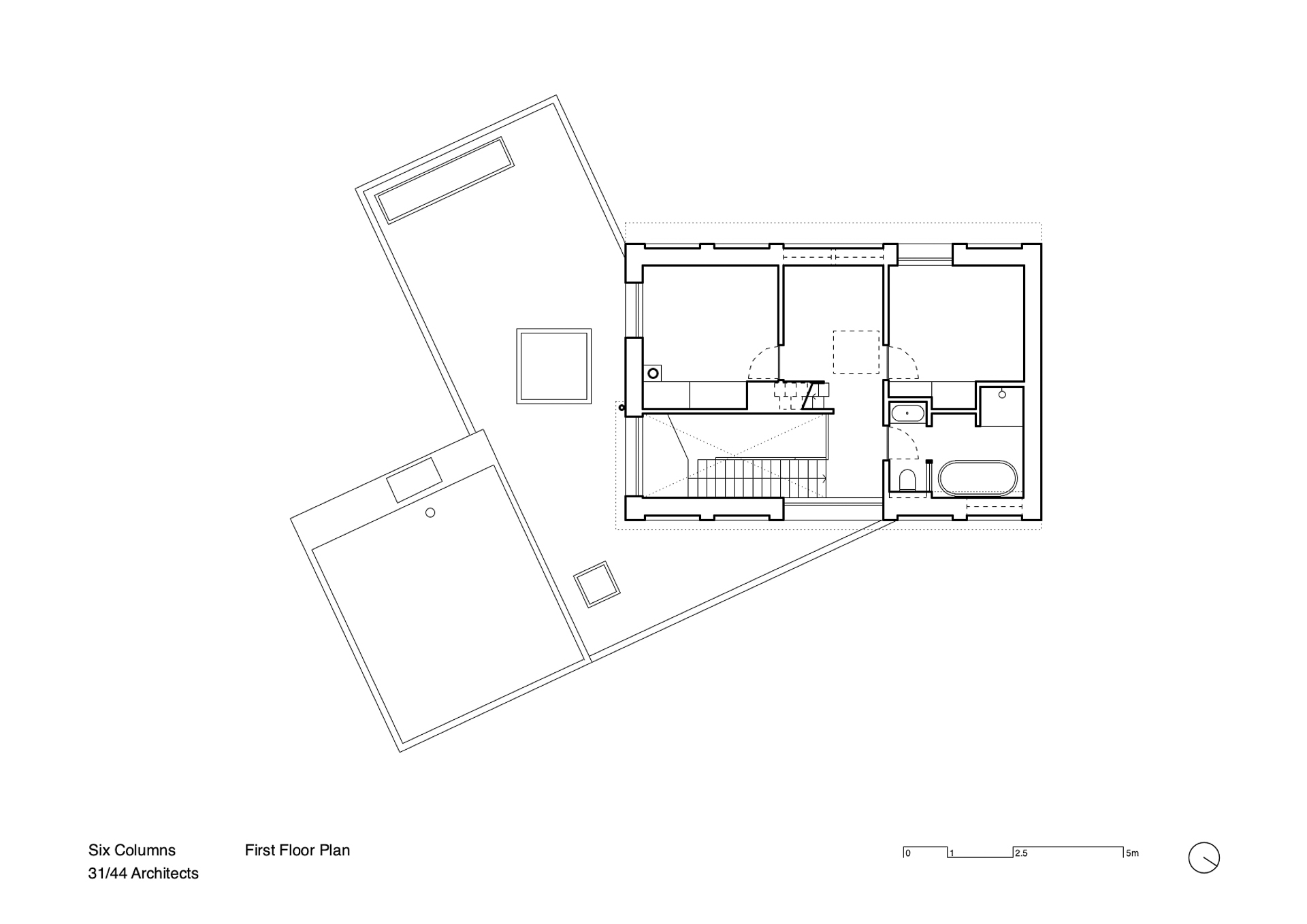
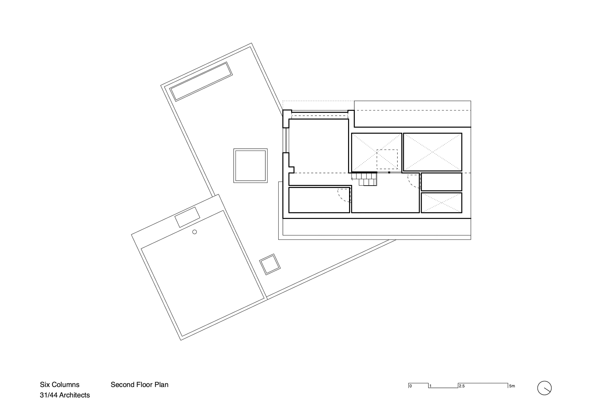
Vom Eingang aus fällt der Blick in den offenen Wohn- und Essbereich. Dieser verbindet die beiden rückwärtigen Gartenbereiche und bildet die helle Mitte des Hauses. Von der Eingangshalle öffnen sich diagonale Blickbeziehungen bis ins Grün, während ein Zimmer und ein kleiner Aufenthaltsraum seitlich abgeschirmt liegen. Oben setzt sich die räumliche Staffelung fort: Zwei kompakte Schlafzimmer und ein Bad im ersten Obergeschoss werden von einer offenen, loftartigen Ebene im Dachgeschoss ergänzt, die über ein leuchtend grünes Treppenmöbel erreichbar ist. So entsteht ein Wechsel zwischen geschützten Rückzugsorten und offenen Zonen mit Ausblicken über mehrere Ebenen.


Von der Eingangshalle öffnen sich diagonale Blickbeziehungen bis ins Grün. © Nick Dearden


Der zentrale Wohn- und Essbereich bildet die helle Mitte des Hauses. © Nick Dearden
Baugeschichtliche Referenzen
Architektonisch greift das Wohnhaus „Six Columns“ unterschiedliche Referenzen auf, die sich spielerisch und unaufgeregt überlagern, ohne sich in den Vordergrund zu drängen. Das Motiv des schlichten, funktionalen Hauses verweist auf die britische Nachkriegsarchitektur der 1950er-Jahre, deren direkte Materialverarbeitung durch sichtbare Ziegel, Betonrahmen und unbeschichtetes Holz aufgegriffen wird. Zugleich erinnern die offenen Wohnzonen und die fließenden Übergänge zwischen Haus und Garten an die kalifornischen Case Study Houses, in denen Leichtigkeit und Reduktion auf das Wesentliche im Vordergrund standen. Die Straßenfassade nimmt formale Elemente der europäischen Architekturtradition auf: Ein dunkelgrünes Wandstück aus Marmor zitiert Mies van der Rohes Barcelona-Pavillon; mit den sechs namensgebenden Backsteinlisenen im Obergeschoss verbindet der Architekt Erinnerungen an einen Aufenthalt in Skandinavien.


Ein dunkelgrünes Wandstück aus Marmor zitiert Mies van der Rohes Barcelona-Pavillon. © Nick Dearden


Fließende Übergänge zwischen Haus und Garten erinnern an die kalifornischen Case Study Houses. © Nick Dearden
Anpassbare Strukturen
Im Innenraum setzt das Projekt auf robuste, veränderbare Materialien. Unbehandeltes, geöltes Holz, sichtbare Ziegel und eine Betonrahmenstruktur bilden die Grundlage für die offene Raumorganisation. Das Haus ist bewusst als langfristig anpassbare Struktur angelegt. „Wir haben Six Columns nie als abgeschlossenes Projekt verstanden“, sagt Will Burges. „Ein Haus sollte sich den Bewohnern anpassen können, je nachdem, wie sich ihre Bedürfnisse im Laufe der Zeit verändern.“


Ein leuchtend grünes Treppenmöbel führt ins Dachgeschoss. © Nick Dearden


Unbehandeltes, geöltes Holz, sichtbare Ziegel und eine Betonrahmenstruktur bilden die Grundlage für die offene Raumorganisation. © Nick Dearden
Sparsame Konstruktion
Konstruktiv verzichtet der Bau auf betonintensive Pfahlgründungen und nutzt stattdessen Schraubfundamente, die den Baumbestand schützen. Eine Holzrahmenkonstruktion prägt die oberen Geschosse; der Einsatz von Baustoffen wurde so geplant, dass auf Stahlträger weitgehend verzichtet werden konnte. Eine Luftwärmepumpe deckt den gesamten Heiz- und Warmwasserbedarf, unterstützt durch Dreifachverglasung und Fußbodenheizung, die größtenteils in den Fliesenböden verlegt ist. Die Belüftung folgt traditionellen Prinzipien – ein Dachfenster im doppelt so hohen Raum im ersten Stock ermöglicht eine passive Luftzirkulation und hält das Haus im Sommer kühler. Die CO₂-Bilanz liegt bereits heute unter vergleichbaren Wohnbauten und dient dem Büro als Referenz für zukünftige Projekte.
Architektur: 31/44 Architects
Bauherr: Will Burges
Standort: 29A Dulwich Wood Avenue, London SE19 1HG (GB)
Tragwerksplanung: Price & Myers
Bauunternehmer: Altlant Construction
Landschaftsarchitektur: Aarde
Baukosten: £ 490 000






























