// Check if the article Layout ?>
Face to the Sun: Faculty of Architecture in Clermont-Ferrand
Photo: Axel Dahl
This is how sanatoria used to be: isolated in the countryside, always south-facing, with little depth. Often, they stood high above any surrounding buildings. In 1932, Alvar Aalto created a modern archetype of this building function. He was not alone: nearly simultaneously, Albéric Aubert’s design for a pulmonary hospital was erected in Clermont-Ferrand, a city in central France.
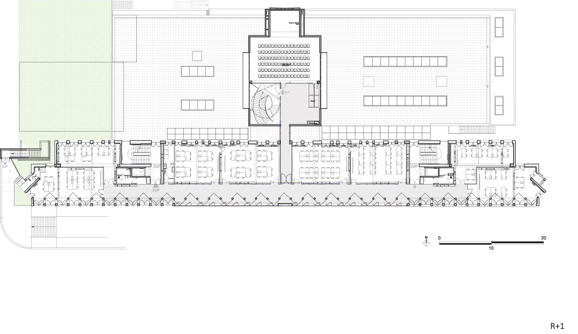
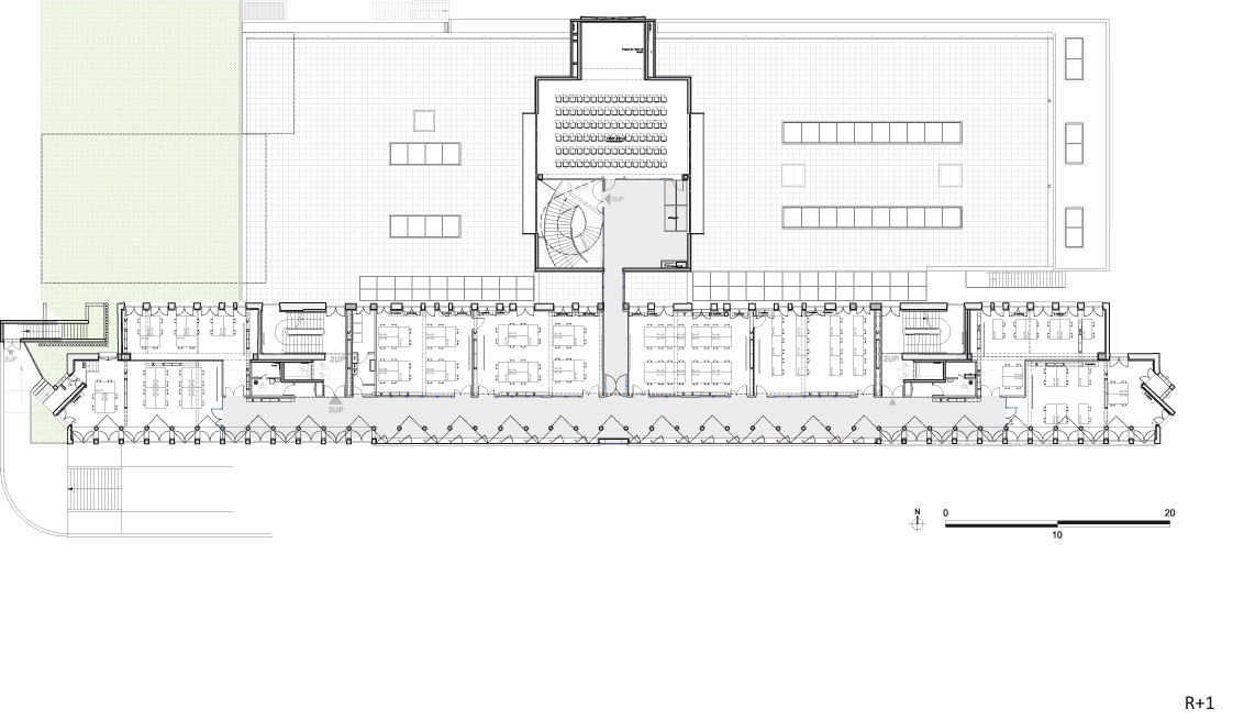
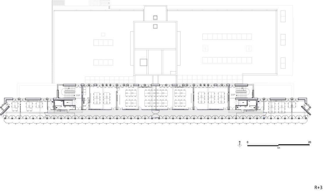
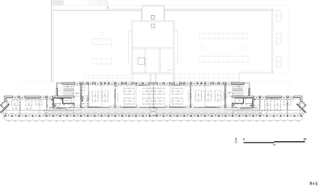
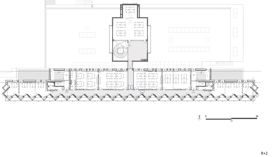
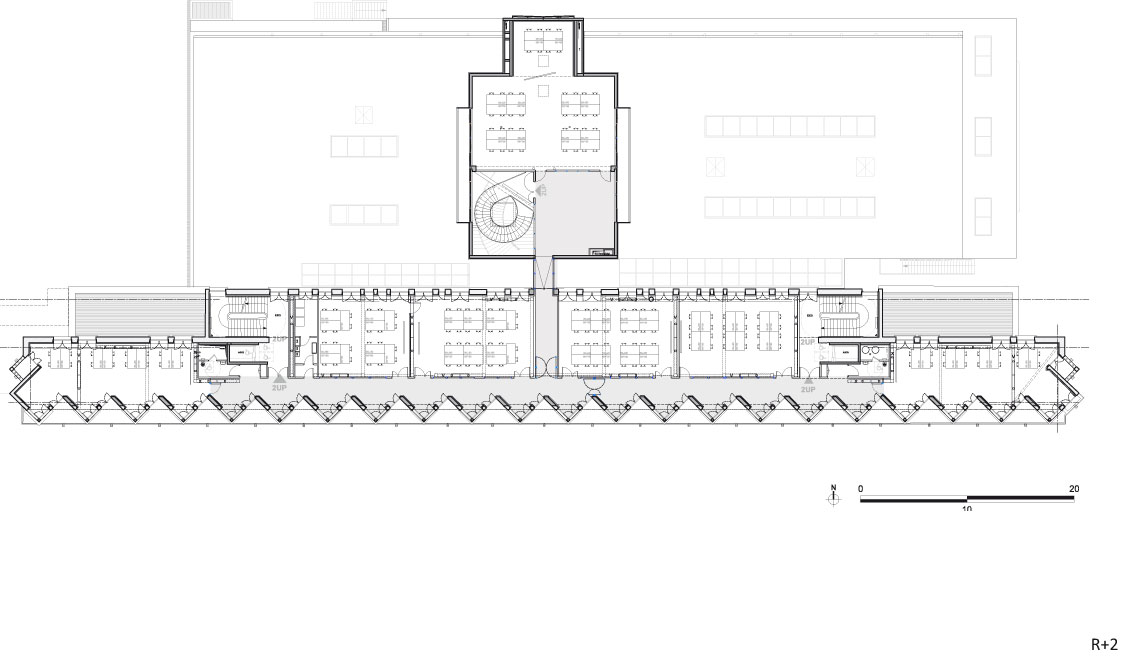
The main wing of this structure, which accommodated the patients’ rooms, juts from four to six storeys above the eastern slope of the Puy de Chanturgue. The façade is oriented almost directly to the south and offers a fine view over the city. The building still stands alone at the edge of a residential district; to the west and south, it is surrounded by forest.
Until 1996, the structure was devoted to medicine; then it stood empty for many years, becoming noticeably dilapidated. In 2006, its transformation into the local faculty of architecture began. Du Besset-Lyon architectes undertook the biggest changes on the street side, which faces north. Here, two curved flights of stairs- one for men, one for women- led up to the first upper storey: the entrance level of the hospital. The architects tore these stairs down, thus moving the entryway to ground level. The heating plant, which once stood at an angle in front of the building, was removed as well.
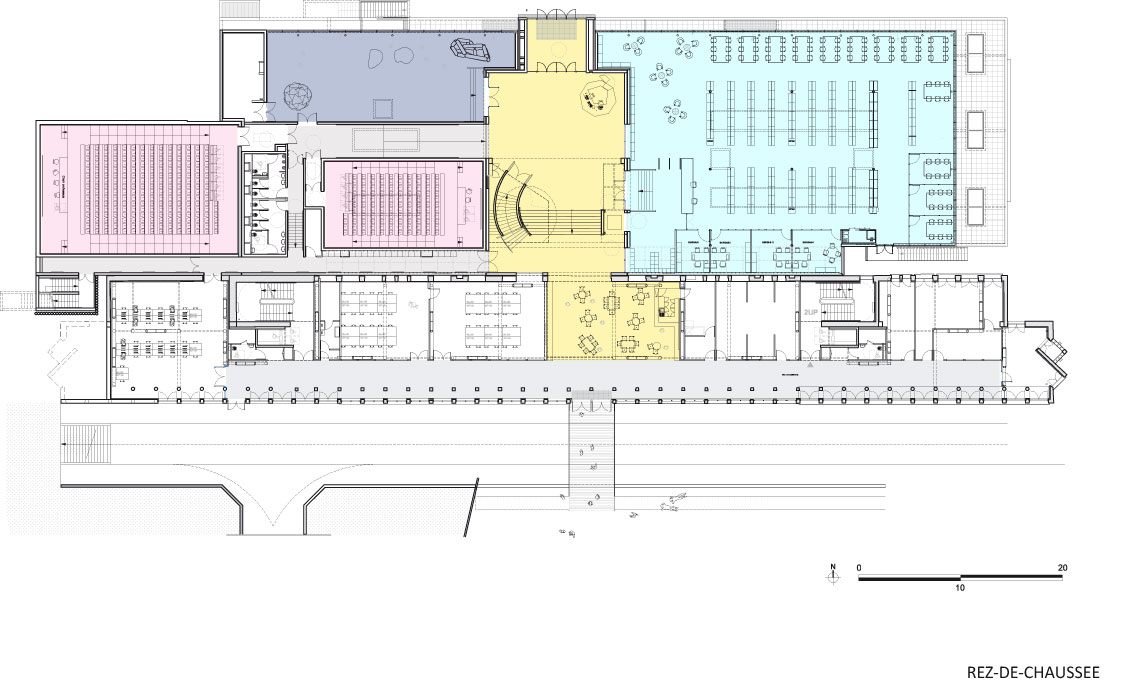
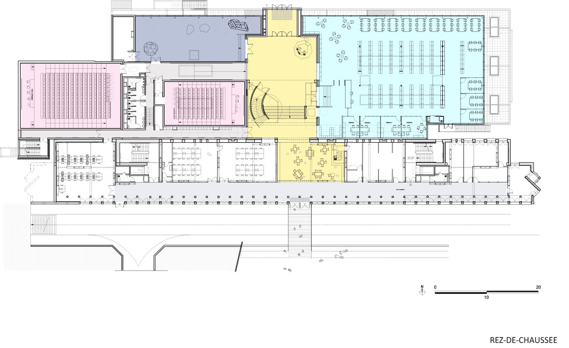
What they kept was the three-storey middle structure, once home to the treatment rooms. It now accommodates the foyer, a lecture theatre and seminar rooms. On the front side, above the main entrance, the architects have installed large mirror surfaces which reflect the sky above Clermont-Ferrand onto the area in front of the entrance and add a lighter touch to the massive structure.
The central projection is flanked on both sides by a low, glazed addition which interrupts the largest volume – primarily two lecture theatres and the library.
The sunny south wing houses offices, work space and seminar rooms. The architects set themselves the challenge of preserving the sun-worshipping character of the building, yet not allowing the sunlight to penetrate the work spaces unfiltered. Therefore, most of the work rooms are north-facing. The former lounges and balconies on the south side, where the patients took the sun and fresh air, now serve as corridors, meeting places and informal work areas.
In the 1930s, the sanatorium was erected as a reinforced concrete skeleton structure with masonry walls. This supporting structure did not conform to modern load-bearing capacity or earthquake safety standards. The architects used the necessary retrofit work to establish a charming interplay of the old and new constructions. Now, steel girders and V-shaped hinged supports can be seen everywhere; they reinforce the supporting structure and stabilize the building.
More information:
Floor area: 11,500 m²
Cost: € 21.5 million net
TGA planning: Espace Temps
Cost planning: JC Drauart
Acoustics: JP Lamoureux
Infrastructure planning: ATPI Infra
Fire safety: Casso & Associés


























