// Check if the article Layout ?>
Filigree sheathe: Office building in Singapore
Photograph: Pencil Office
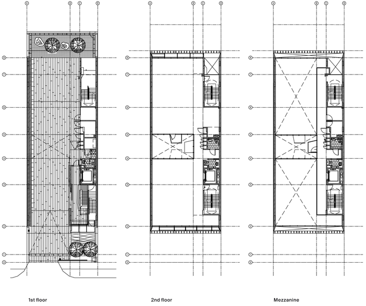
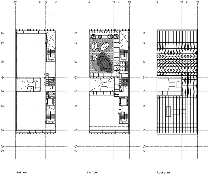
High temperatures, extreme humidity, monsoon-like rainfall – life in Singapore is determined by a moist tropical climate in which seasons have no place, meaning that concepts for workplaces in closed rooms have particular demands to fulfil. The Simple Factory Building newly built at the heart of an industrial estate in the city offers a solution with very little relationship to the status quo of customary office buildings.
Design: Pencil Office, Singapore
Architect: Ayra Architects, Singapore
Architect: Ayra Architects, Singapore
An airy and porous structure that wraps the building in a vertical alignment and fulfils various tasks at the same time holds centre stage in the design of the building. The advantages of the openwork façade are to be seen not only in the eye-catching visual effect of its complex, CNC-generated parabolic pattern, but more particularly in climate-related aspects such as solar shading and ventilation. To enable air to circulate as freely as possible, the first floor is raised except for a core area in which auxiliary rooms are located, plus a chimney-like atrium leads up through the centre of the building. Double room heights make sure that warm air is unable to accumulate in working areas. Attention has also been paid to the reusability of materials. After all, short-term leaseholds and urban redevelopment are the order of the day in Singapore.
Project data
Structural engineering: HS Engineering Consultants
Building services: K L Au & Associates
General contractor: Eng Lam Contractors Co Pte Ltd
Structural engineering: HS Engineering Consultants
Building services: K L Au & Associates
General contractor: Eng Lam Contractors Co Pte Ltd












