// Check if the article Layout ?>
Fortress in black steel: Treow Brycg by Omar Gandhi Architects
Foto: Ema Peter
The dark silhouette of a fortress-like structure surrounded by tall grasses and flanked by the rough sea looms forth in thick fog at a remote spot in one of the Canada's three maritime provinces. Here, at Kingsburg Beach on the southern shore of Nova Scotia, Omar Gandhi Architects has erected the 'Treow Brycg' residence.
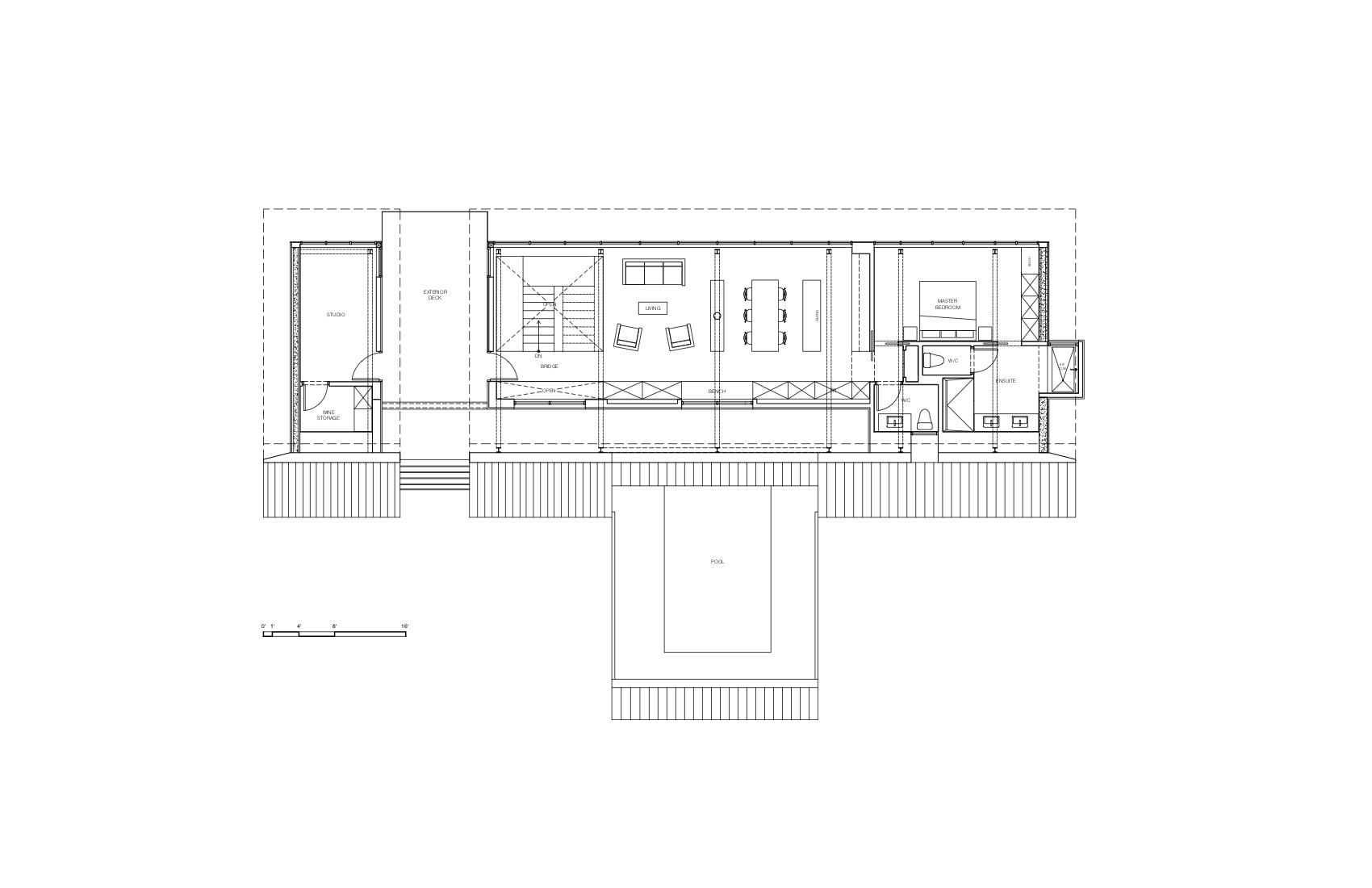
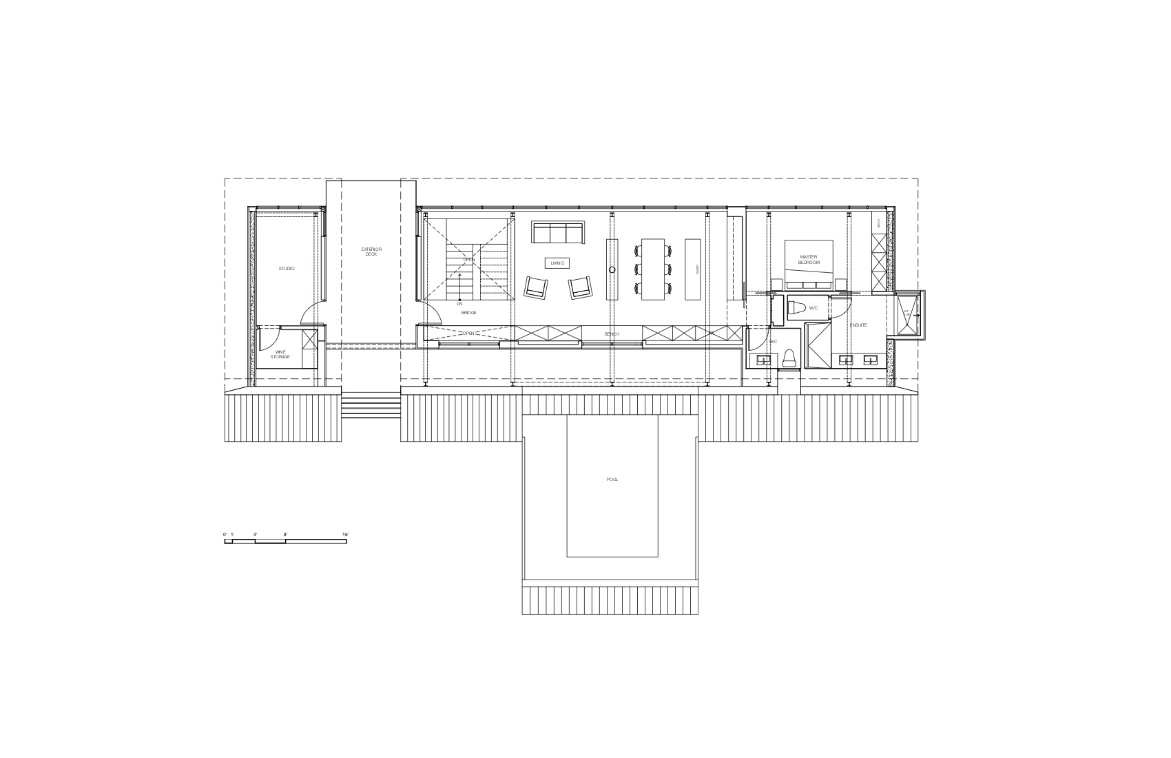
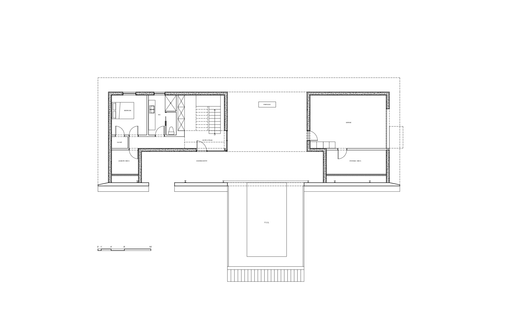
The outer structure of the building is clad in a standing seam system of aluminium and bronze. The canted black steel façade – its shape chosen to refer to local mansard roofs – shelters the entrance area and the ground-floor terrace with its plunge pool and fireplace. Indoors a staircase in walnut wood and black steel leads to the upper floor, where the bedrooms and living room are situated.
The slanting wall, together with the deep-set windows and the brise-soleils mounted to the front facade, regulate the thermal energy balance inside the building. Long strip windows provide panoramic views of the coastal landscape. At the same time the monolithic structure protects the black fortress from unwanted glances, thus ensuring a high level of privacy.
The outer structure of the building is clad in a standing seam system of aluminium and bronze. The canted black steel façade – its shape chosen to refer to local mansard roofs – shelters the entrance area and the ground-floor terrace with its plunge pool and fireplace. Indoors a staircase in walnut wood and black steel leads to the upper floor, where the bedrooms and living room are situated.
The slanting wall, together with the deep-set windows and the brise-soleils mounted to the front facade, regulate the thermal energy balance inside the building. Long strip windows provide panoramic views of the coastal landscape. At the same time the monolithic structure protects the black fortress from unwanted glances, thus ensuring a high level of privacy.
Further information:
Design: Omar Gandhi, Jeff Shaw, Karl Gruenewal
Contractor: MRB Contracting
Structural: Andrea Doncaster Engineering
Physical Model: Chad Jamieson
Rendering: Ryan Nelson
Contractor: MRB Contracting
Structural: Andrea Doncaster Engineering
Physical Model: Chad Jamieson
Rendering: Ryan Nelson


























