// Check if the article Layout ?>
Futuristic meets homely: "INET" by AZC + Michel Spitz
Foto: AZC
The building is made up of two elements consisting of a three-storey plinth and a tower volume that rises a further four storeys; a recessed intermediate level separates the two. The streetside elevation to the south makes a compact impression, whereas to the north the two volumes become freer in expression, reaching in various directions as if the "INET" were stretching out its feelers to differing sides. The geometry makes an extroverted effect, as if seeking to express individuality.
The facades have been given a uniform design, with silvery grey circumferential bands distinguishing the individual storeys. Solid panels in the same silvery-grey alternate with floor-to-ceiling glass elements, thus providing the interior with privacy as needed. The AZC + Michel Spitz architects have also rounded off corners instead of using hard edges and end elements, lending the exterior of the new building a slightly futuristic touch.
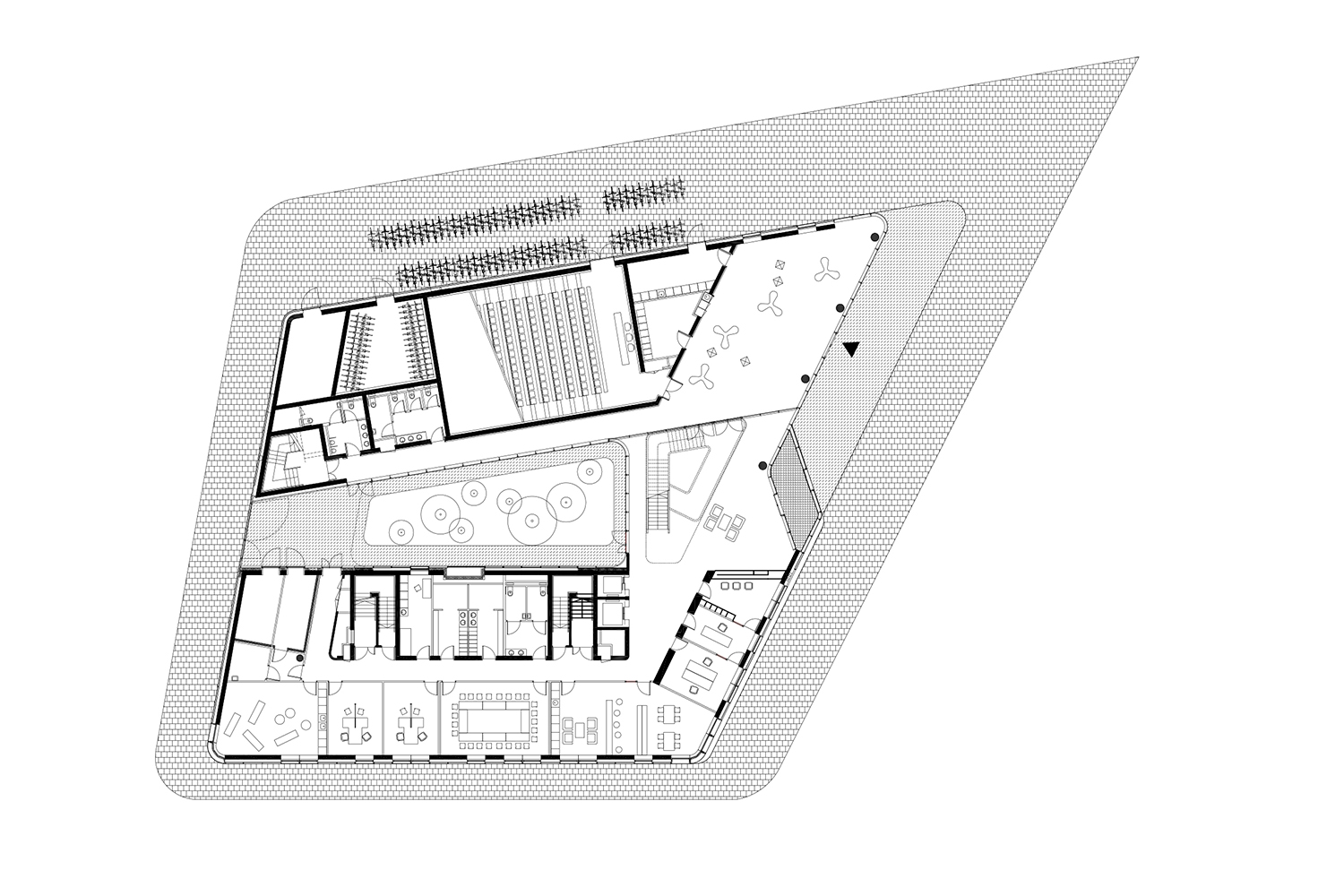
Programmatically the two volumes are oriented to the building's dual concept: the lower section is dedicated to the dissemination of knowledge while the upper section is given over to offices. On the ground floor the plinth opens up to the east with a glass front through which visitors pass on entering into the open foyer. This is immediately followed by a patio around which the architects have organised classrooms and an auditorium with room for over 200 people. Everything is perfectly attuned to smooth processes and time optimisation. The upper section is characterised by a flexible and open organisation of space, with offices placed around the staircases and elevators of the central circulation core.
The surfaces and materials in the building are modern in character, as evidenced by expanses of fair-faced concrete as well as simple white walls and acoustic ceiling panels. The colour yellow is to be found throughout the "INET" building, and is encountered again and again in the form of various details. A particularly eye-catching element consists of the imposing open staircase structure starting from a central position in the foyer and elaborated further in form as it reaches upwards to the higher floors. Produced out of wood, its design is oriented to the exterior elevations yet also makes a homely impression.
The facades have been given a uniform design, with silvery grey circumferential bands distinguishing the individual storeys. Solid panels in the same silvery-grey alternate with floor-to-ceiling glass elements, thus providing the interior with privacy as needed. The AZC + Michel Spitz architects have also rounded off corners instead of using hard edges and end elements, lending the exterior of the new building a slightly futuristic touch.
Programmatically the two volumes are oriented to the building's dual concept: the lower section is dedicated to the dissemination of knowledge while the upper section is given over to offices. On the ground floor the plinth opens up to the east with a glass front through which visitors pass on entering into the open foyer. This is immediately followed by a patio around which the architects have organised classrooms and an auditorium with room for over 200 people. Everything is perfectly attuned to smooth processes and time optimisation. The upper section is characterised by a flexible and open organisation of space, with offices placed around the staircases and elevators of the central circulation core.
The surfaces and materials in the building are modern in character, as evidenced by expanses of fair-faced concrete as well as simple white walls and acoustic ceiling panels. The colour yellow is to be found throughout the "INET" building, and is encountered again and again in the form of various details. A particularly eye-catching element consists of the imposing open staircase structure starting from a central position in the foyer and elaborated further in form as it reaches upwards to the higher floors. Produced out of wood, its design is oriented to the exterior elevations yet also makes a homely impression.

















