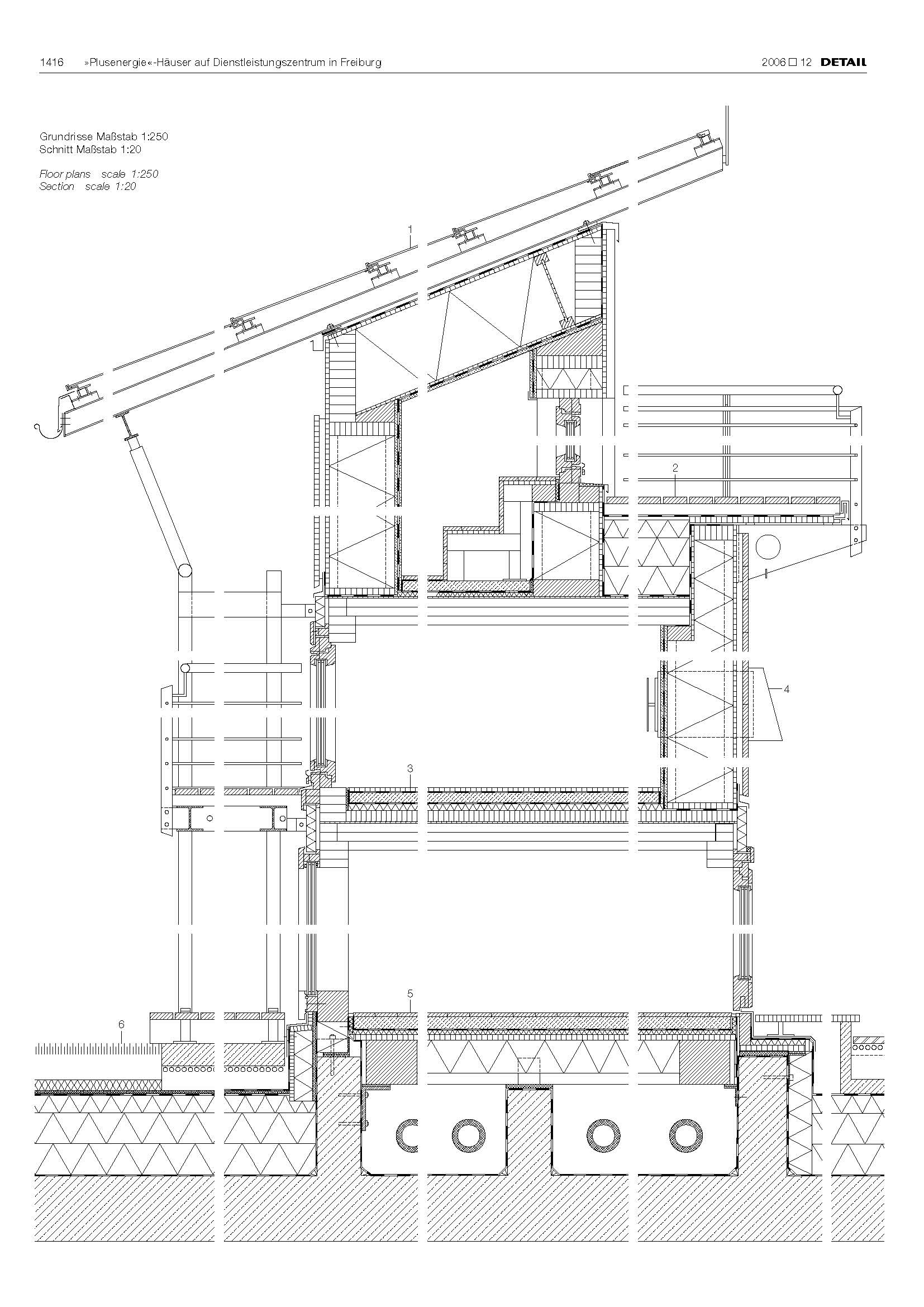
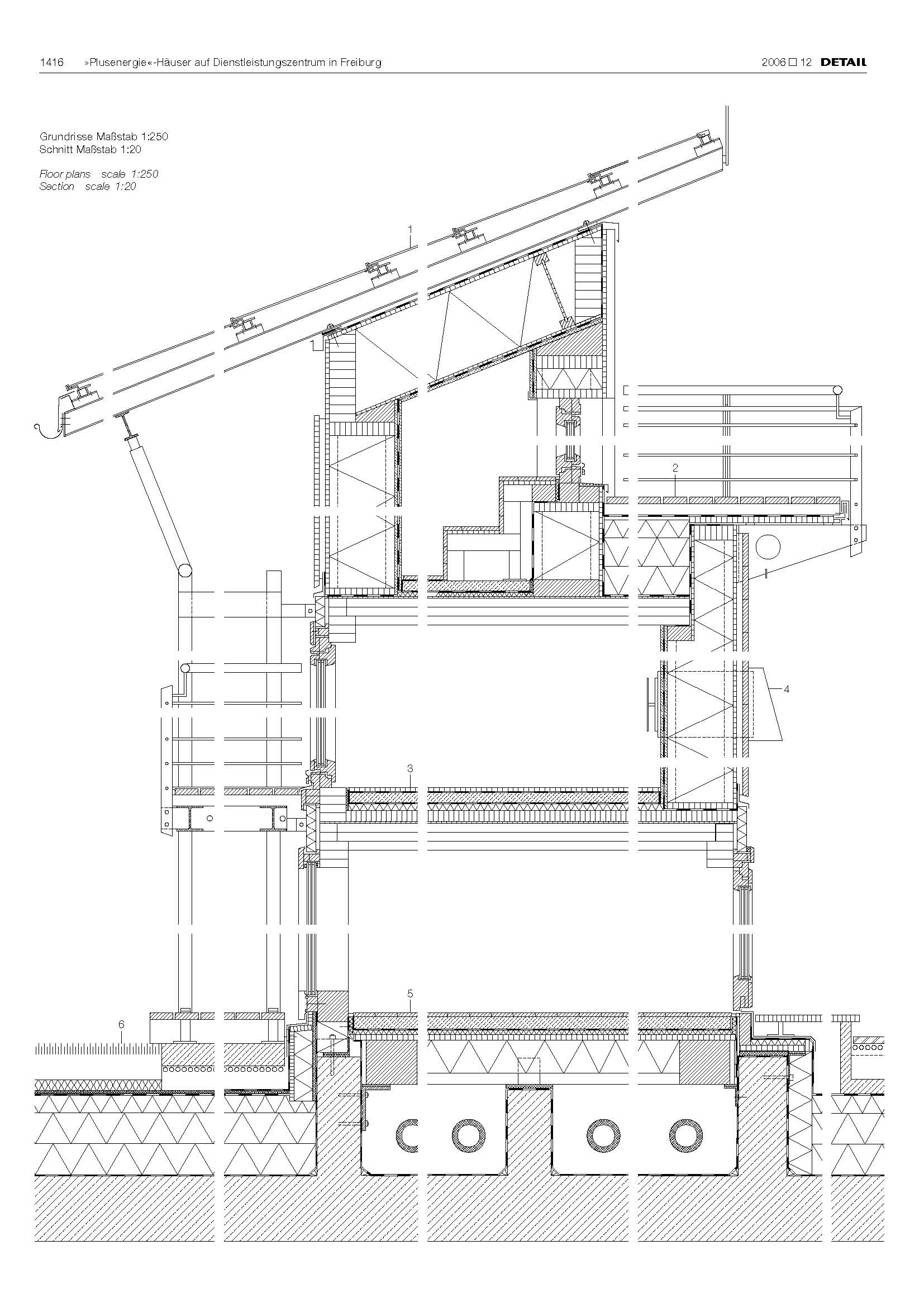
Tor zur Welt – und zum Wasser: Estação do Oriente in Lissabon
“The Oceans, a Heritage for the Future” was the theme of the Expo hosted by Lisbon in 1998 to mark the 500th anniversary of Vasco da Gama’s discovery of the sea route to India. The Expo venue, a stretch of riverbank at the east of the Portuguese capital, had previously been covered by mainly abandoned industrial facilities and port installations and was separated from the district of Olivais to the west by a high railway line.
In his design for the Estação do Oriente, Santiago Calatrava not only provided the Expo ‘98 its architectural landmark but also overcame this separation. In doing so, the architect ignored the competition brief by relocating the station, placing the railway lines onto a 14 metre-high bridge structure made up of flattened arches in reinforced concrete, and undercrossing them with two avenues on an east-west axis.
Ramps, escalators, walkways
In the west a bus station is positioned next to the station complex that in the east opens up to the forecourt of the Expo and its entrance building, which serves as a shopping mall today. Shops, ticket offices, the respective back office areas and toilets reached by countless ramps, escalators and walkways – many more than necessary for a station frequented by at least 75 million travellers a year – are located beneath the bridge arches, in the station’s cryptoporticus, so to speak. This shady level is an inviting spot for strolling around. especially in the hot season.
Tree-like columns in steel and glass
By banning retail and minor functions to below the tracks, Calatrava was able to completely keep the approx. 238 x 72-metre station concourse free of fixtures not directly concerned with rail operations. Sixty tree-like columns in glass and white lacquered steel, each measuring 17 x 17 metres at their base and rising to 23 metres to their apex, form an airy, open-sided colonnade. The concourse is maybe the most “Gothic” of all spaces designed by Calatrava, who is frequently said to have drawn much of his inspiration from mediaeval cathedral architecture. Unlike many Expo buildings, the Estação do Oriente has lost none of its significance for the city to this day, being the main transport hub for northeast Lisbon and thus the place where people travelling to the capital from Spain, northern Portugal or the Algarve and not wanting to continue on to central Lisbon either disembark or change trains.









