Sustainable living space
An Earthy Structure from Spain
© Gregori Civera
Quick work
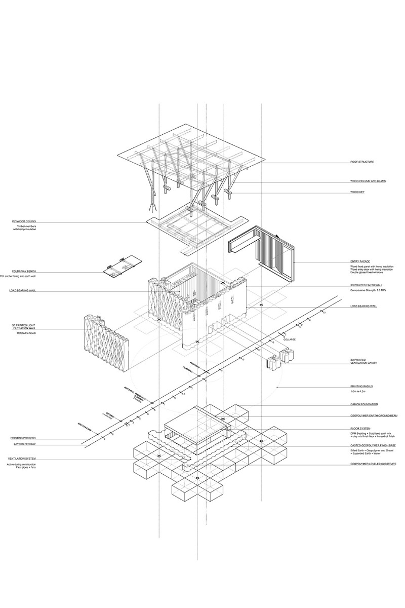
The Valldaura Labs on the outskirts of Barcelona created Tova, Spain’s first 3D-printed loam construction, in just seven weeks. For some time the Institute for Advanced Architecture of Catalonia (IAAC) has been researching ways to respond to future social and ecological challenges. To this end, it has now joined traditional loam-construction techniques with new production method based on 3D printing technology named Crane WASP, the architectural 3D printer.


© IAAC
Local material
All the materials come from the immediate surroundings. To be precise, they were sourced from a radius of just 50 m. In order to ensure the necessary material elasticity for 3D printing, the earth was fortified with enzymes and other additives. In the next step, a waterproof coating made of aloe and egg white made the material weather-resistant. The foundation of the house consists of geopolymer; the roof is a simple wooden construction.


© Gregori Civera


© Gregori Civera
Adaptive construction
The design is extremely adaptable. Its walls comprise a network of insulating, air-filled hollow spaces that shelter the house from overheating in the summer months and work to reduce heat loss in the wintertime. For the rest of the year, the house opens up onto its surroundings. Possible applications for this type of building include public spaces as well as private flats. In the future, buildings will be significantly healthier and more sustainable. They will also be erected more quickly than ever before.
KONTAKTFORMULAR / DATEN - NUR ADVERTORIAL - Wird noch hinzugefügt @ Daniel
Architecture: IAAC Team (Edouard Cabay, Alexandre Dubor, Lili Tayefi, Vincent Huyghe, Ashkan Foroughi, Eduardo Chamorro Martin, Elisabetta Carnevale, Guillem Baraut, Gloria Font basté, Nikol Kirova, Francesco Polvi, Bruno Ganem Coutinho, Marielena Papandreou and David Skaroupka)
Project partners: Colette, WASP, UN-Habitat, BAC Engineering, LaSalle, Smart Citizen, Squares and Living Prototypes Research Innovation
Researchers: Adel Alatassi, Aslinur Taskin, Charles Musyoki, Deena El-Mahdy, Eugene Marais, Hendrik Benz, Juliana Rodriguez Torres, Leonardo Bin, Mariam Arwa, Al-Hachami, Marwa Abdelrahim, Mehdi Harrak, Michelle Bezik, Michelle Antonietta Isoldi Campinho, Mouad Laalou, Nareh, Khaloian Sarnaghi, Nawaal Saksouk, Orestis Pavlidis and Seni Boni Dara


















