Mongolian yurts interpreted in a modern way
Community Centre in Inner Mongolia by Atelier Ger
In terms of colour, the modern Gers are based on the traditional model. However, their shell is made of wood. © Dou Yujun
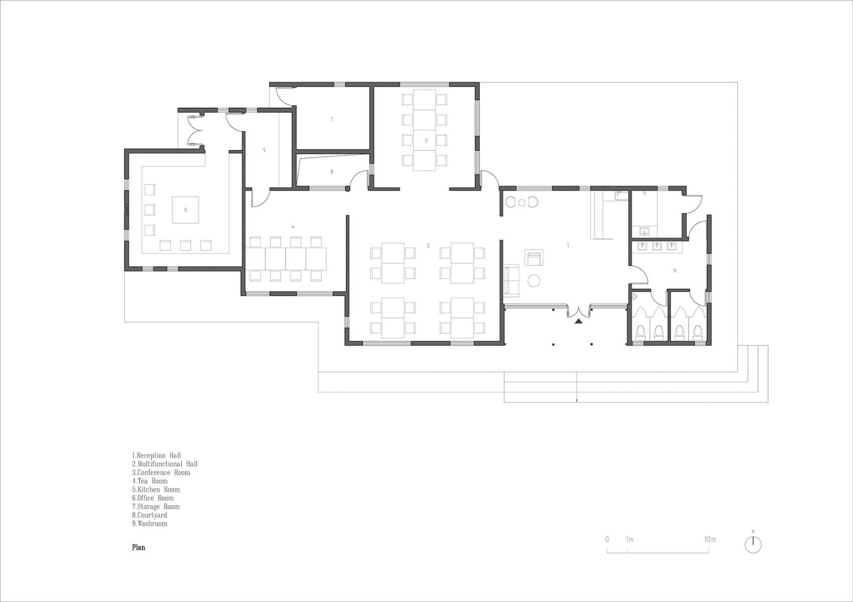
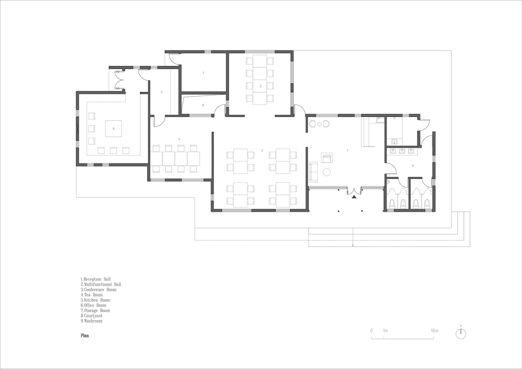
Nomen est omen: Chinese architecture firm Ger Atelier specialises in contemporary interpretations of the Mongolian ger, or yurt. The latest example is the Zhengxiangbaiqi Grassland Community Centre, a residential and community complex about an hour's drive from the city of Xilin Gol in Inner Mongolia. The archetype of the yurt has been transformed here in several ways: First, the traditional round shape has been transformed into a square module that can be assembled in different sizes to form larger clusters. And secondly, an octagonal living unit with four small extensions that can house the bathroom, a wardrobe or the entrance to the various living units.


The modules, which vary in size, are made from a standardised construction system of thin, three-layer wooden slats. © Dou Yujun
Centre of a dispersed community
By far the largest building on the site serves as a community centre with rooms for events. There are also three residential units, one of which is a semi-detached house. Despite their different sizes, the modules are based on a uniform construction system: relatively thin wooden slats are screwed together in three layers. Windows and doors are fitted precisely into the grid they form. The advantage of this system is that it can be assembled quickly and without heavy equipment.


Most of the complex is used for receptions and events. © Dou Yujun
Equipped with all modern comforts
The differences from the traditional model are particularly noticeable when it comes to living comfort: the modern gers are fitted with standard insulation and meet modern air-tightness requirements. On the outside, the walls are clad in white wood, which allows the buildings to blend in with the snow-covered landscape in winter. The buildings are heated by electric underfloor heating, which is wirelessly controlled. The intelligent energy management system is also able to track energy consumption and regulate the temperature differently for each room.
Find out how architecture accompanies and rethinks social processes in our article A Different Lens on Building Culture. Available to read in our Detail Inspiration database.
Architecture: Ger Atelier, Inner Mongolian Grand Architecture Design Co.
Location: Zhengxiangbai, Xilin Gol, Innere Mongolei (CN)































