// Check if the article Layout ?>
Gentle Interaction: Renovation of a Sicilian Farm
Photo: Sebastiano Amore
Let’s enjoy a stroll through this historical property located just north of the province of Catania. The architects have reduced the classic Sicilian garden landscaping to its essentials. All the planted areas, pathways and green terraces have been rearranged. From the road, an inviting path of light-coloured stone leads to the impressive lot. Edged with a slender trim of Corten steel, this path takes us between bicentenarian cypresses, up the slight slope to the redesigned verandah. Before we approach the shade-giving addition, we must ascend the steps of the last garden terrace and pass a ground-level pool. The generous, white, monolithic terrace and the azure water stand apart from all the greenery that has come before.
The expansive addition, made of brown Corten steel and glass, interacts gently with the small, old, stone buildings. Old and new are linked directly by means of a glazed corridor. Thanks to its clever design, the verandah can be closed completely in the colder seasons and used as a solarium. In summertime it provides shelter from the fervent sun. If we slide open the glass panel, turn the swinging steel walls and open up a bit of the roof, exterior space will meld with interior. This changeable structure can be adjusted according to any weather or season.
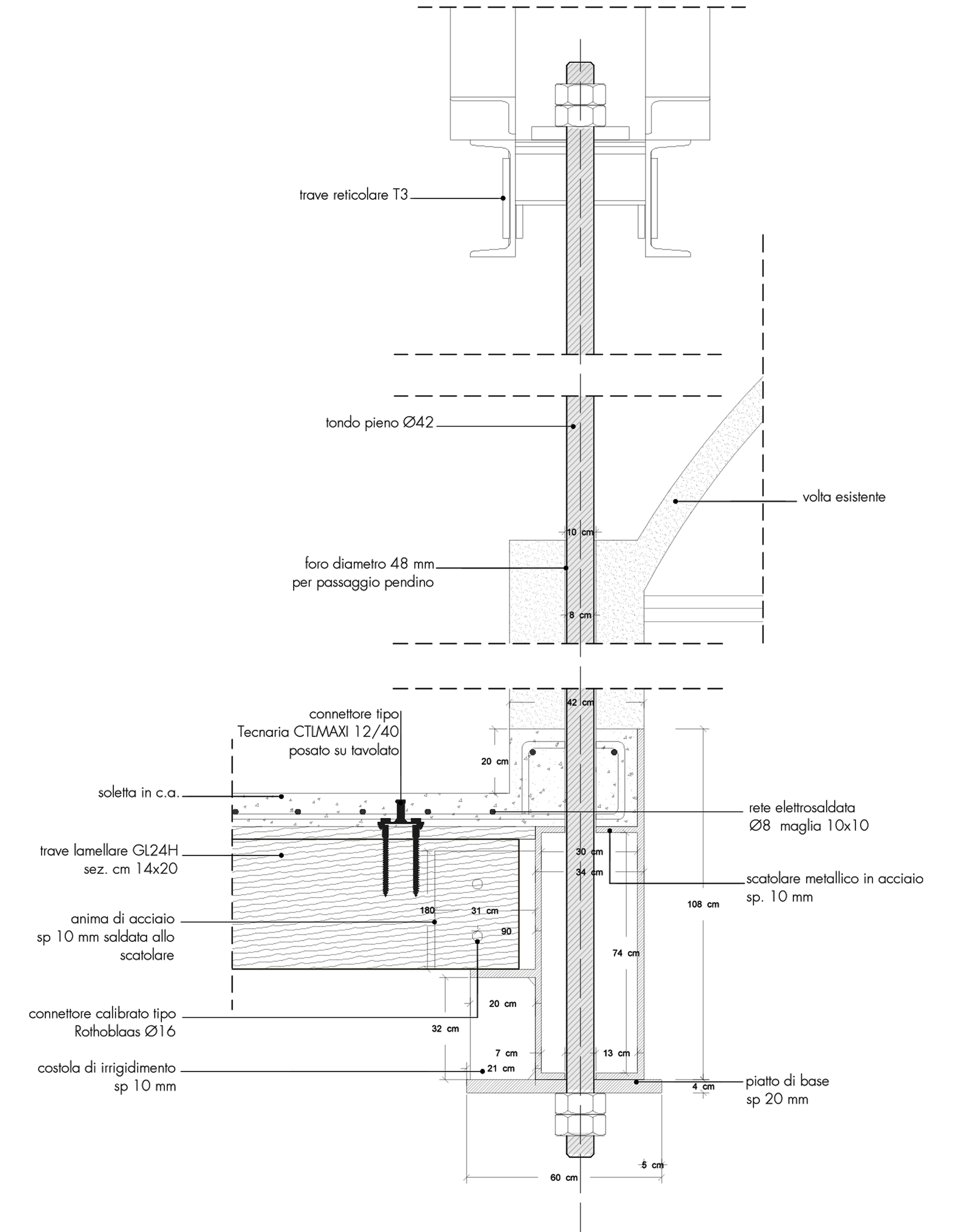
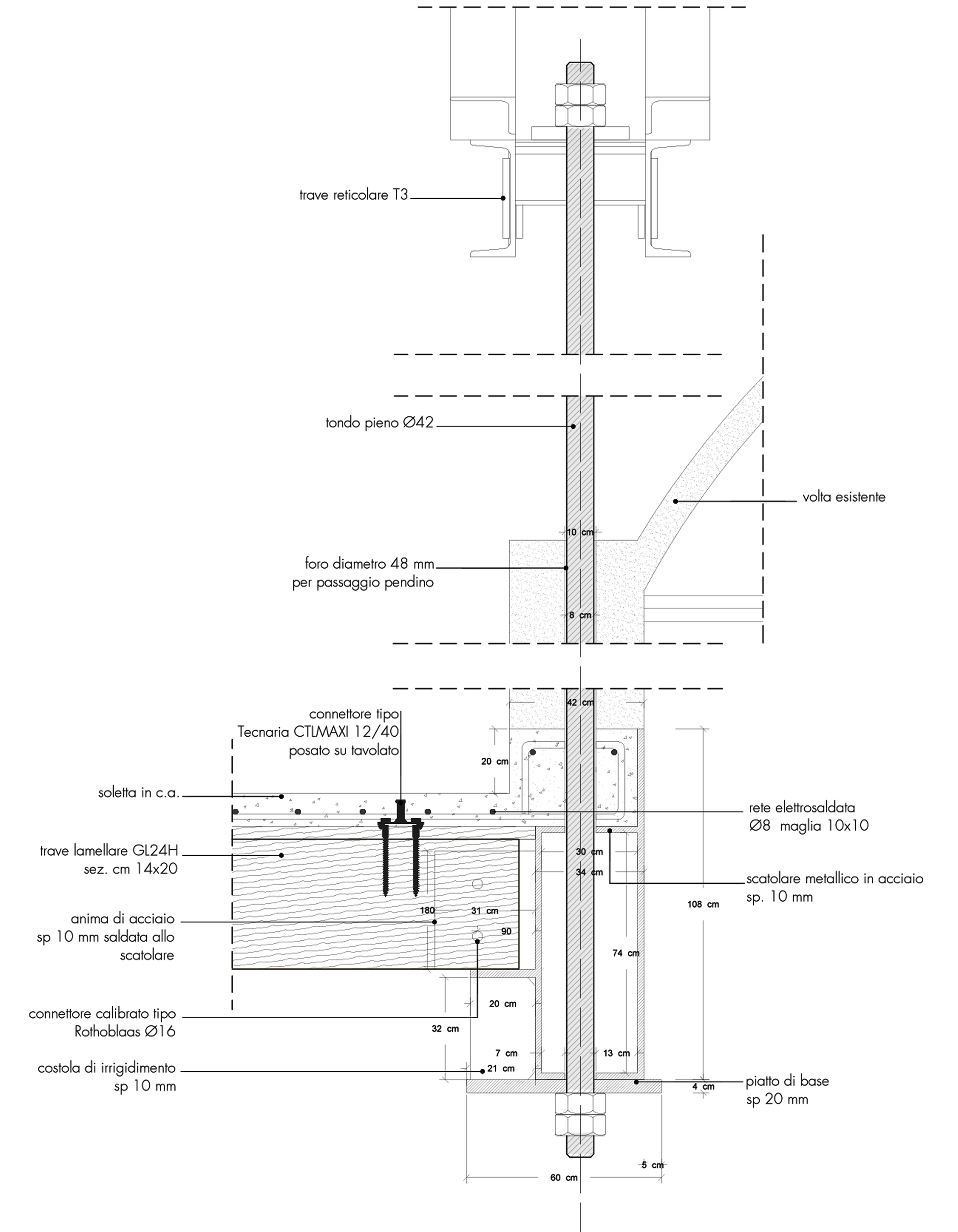
Finally, we enter the renovated main building on the property, a 600-m² villa. The spaces here distribute themselves over three levels; the main areas of use are located on the first upper floor. The idea of creating a spacious, unique heart to the house in this area led to the concept of freeing the space under the vaulting from its interior walls. To fulfill structural requirements, steel supports were hidden under the roof and fixed with tension anchors. This meant that both the vaulting and the central fireplace could be suspended from above, creating an open, homey space. The light interior wall colour presents a subtle contrast to the natural, brick-coloured exterior wall plastering. The technique used here, known as cocciopesto, accents the historical character of the building.























