Hanging Gardens: Jakob Factory in Ho Chi Minh City
Foto: Oki Hiroyuki
Since 2008 the Swiss company Jakob, which manufactures steel-rope mesh for architecture, has been operating a production plant in southern Vietnam. The industrial park − located around 50 km from Ho Chi Minh City − looks like so many others of its kind in the southeast Asian country: large, mostly single-storey halls stand cheek by jowl; there are few green spaces. Furthermore, the former factory was not up to date, the indoor air quality was poor and the energy consumption required for cooling was vast.
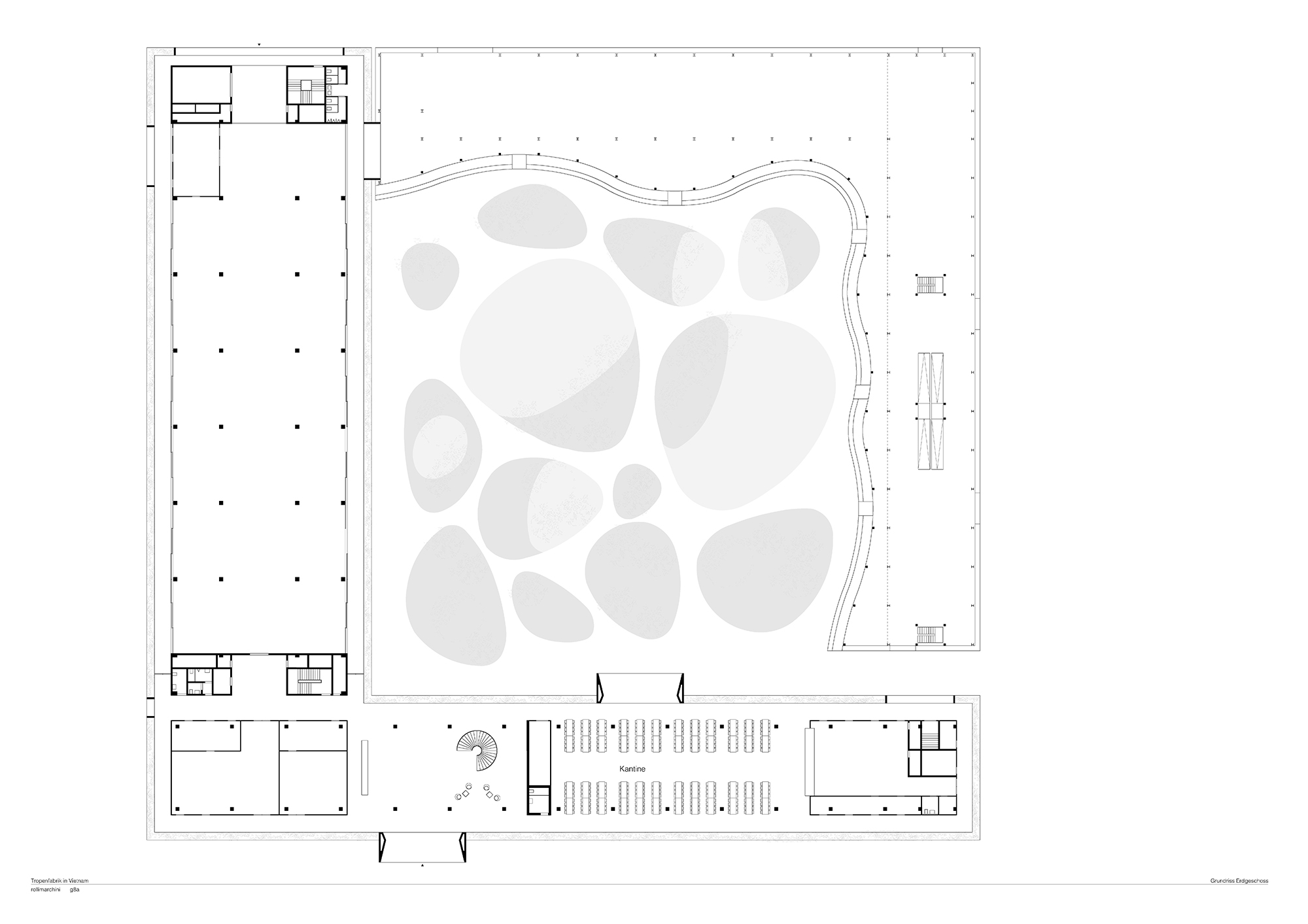
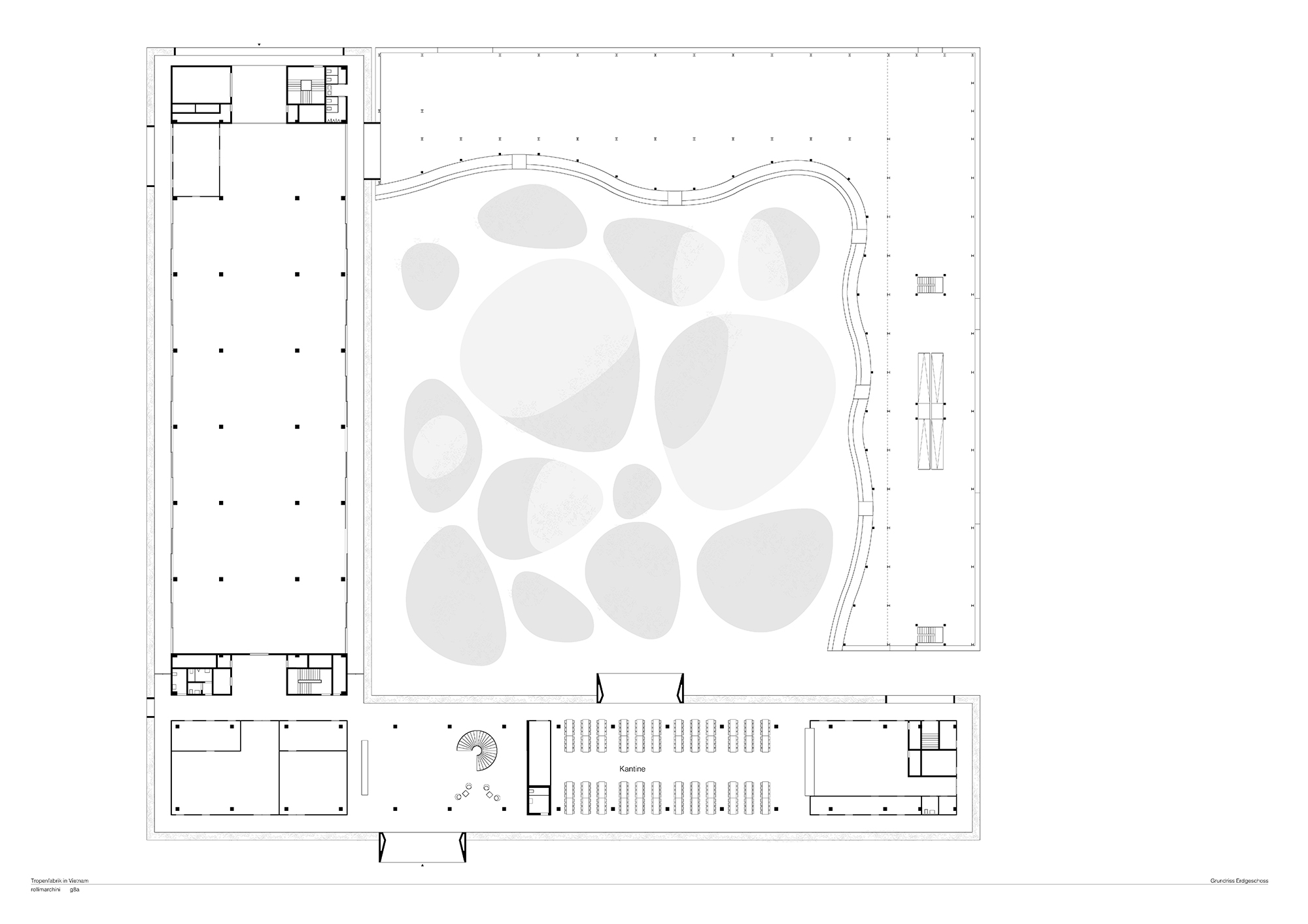
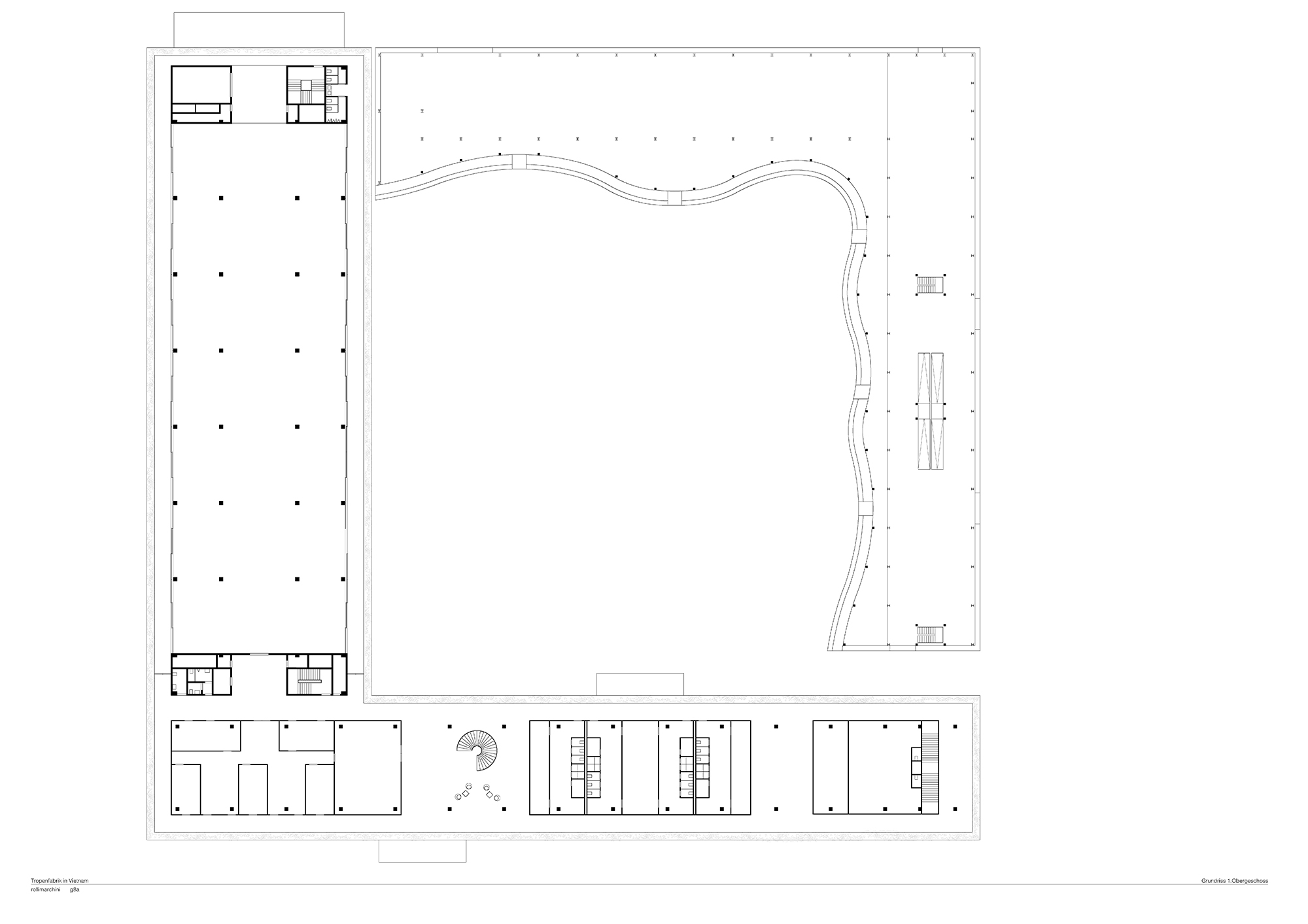
The new complex thus had great potential for improvement and Jakob commissioned Bern architects rollimarchini and Ho Chi Minh City’s G8A Architects with the design. Now three structures, all with several storeys and planted façades, stand around an inner courtyard. One of these accommodates the reception area, the cafeteria with kitchen, coatrooms and office spaces over two levels. In the second and largest building, the production zones are stacked over three storeys. The third building, which is L-shaped, is home to storage areas and a moped garage for employees.
In order to minimize energy consumption, the architects decided in favour of a proven construction principle from tropical regions: beneath a large, sheltering roof, open, permeable façades surround the interior spaces. For the warehousing and garage building, a rather conventional planted rope-mesh façade was used. On the two other buildings, the façade construction is more elaborate: between the roof and the ground, diagonally braced steel cables hold plant troughs which in themselves consist of rope mesh with inlays of plastic membrane. This green, hanging shelving functions like a large, shade-casting vertical blind that also cools the air by means of evaporation. Some of the spaces behind this planted curtain are completely open, such as the cafeteria. Some are delimited with added polycarbonate multiskin sheets, and others feature ceiling-high, sliding multiskin panels that enable the precise adjustment of the size of the opening.



















