// Check if the article Layout ?>
High Relief: Single-Family House in Kosai
Photo: Shuhei Goto Architects
The striking juts and recesses of the narrow volumes, which follow the slightly oblique course of the street, create an interesting and, at first, puzzling façade on the west side of the house. The roof-high foyer and the three-storey central body jut out while the two-storey houselets in between stand back. In order to ensure privacy on the street side, there is only one square window on each of the upper storeys. The tall wooden constructions, clad with galvalume steel sheeting, stand on a concrete base that serves as a unifying element and levels the sloping topography. The carefully considered height variations and the saddle roofs fit perfectly into their surroundings. To avoid casting too much shade on the properties to the north and south, the two outer volumes are of smaller proportions. The east rear view over the neighbouring house forms a homogeneous surface which conceals the long distribution area leading to the main space and adjoining rooms.
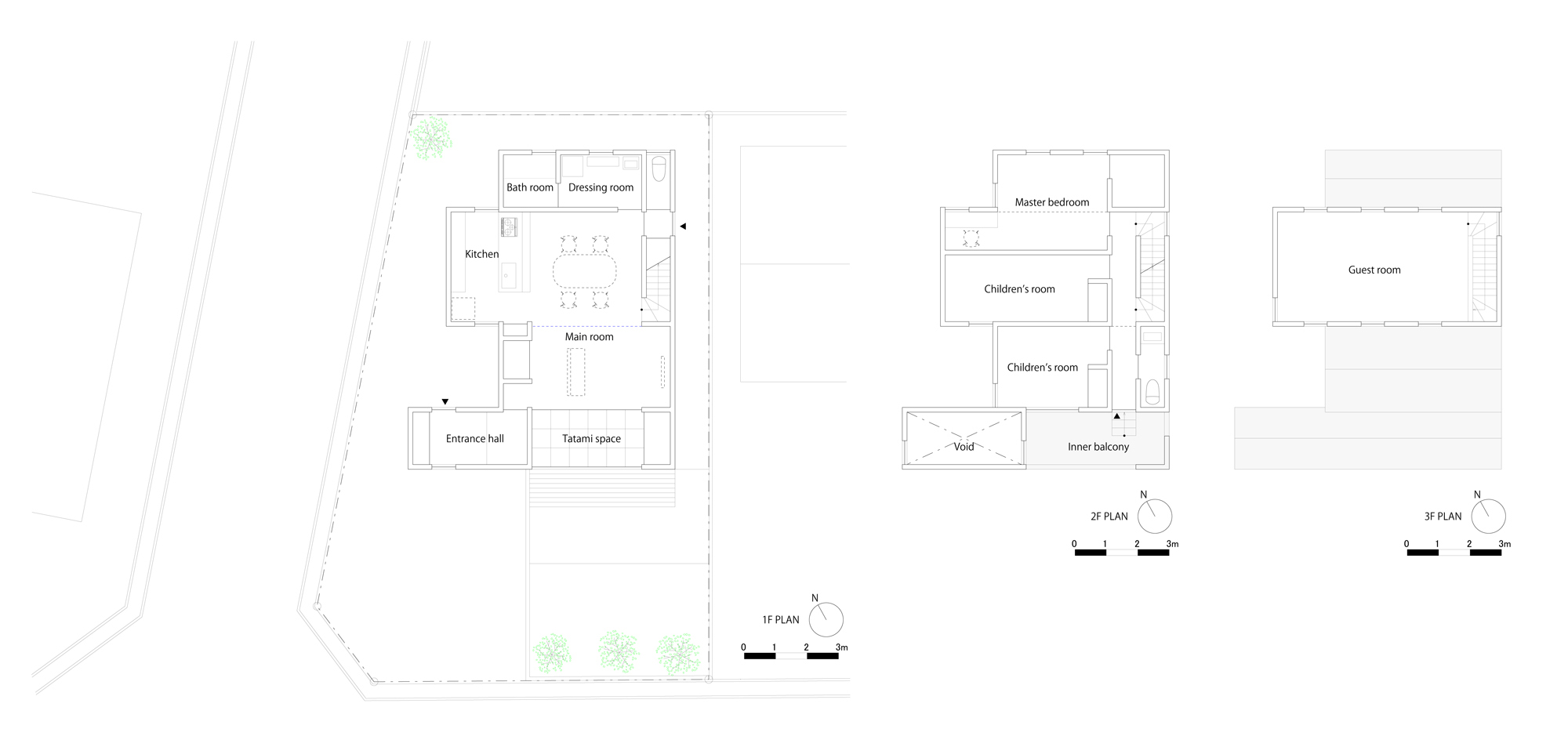
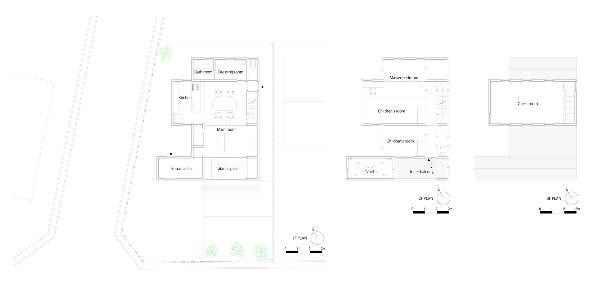
The division of the house into different functions by storey is the result of many hours’ work on the part of Shuhei Goto Architects. The ground floor accommodates the open kitchen and living room. Furthermore, here we find the traditional space known as the tatami space—a room laid with tatami mats – on the south terrace. An interior balcony, found behind the foyer on the second upper storey, illuminates the corridor along the private rooms with daylight. In the bright guest rooms on the third storey, the wooden construction, unseen from outside, reveals its rafters. Moreover, several small windows offer a panoramic view of Kosai.













