A Heavenly Atmosphere: Kosugiyu Tonari in Tokyo
Foto: Katsuhisa Kida/FOTOTECA
Die alte japanische Tradition gemeinschaftlicher Badeanstalten lebt in Tokio in Gebäuden wie dem Kosugiyu im Stadtteil Koenjikita fort. Um dort künftig auch andere Formen des Gemeinschaftslebens zu ermöglichen, haben Kosuke Higuchi und Midori Taki mit ihrem Büro T/H das Badehaus um einen dreigeschossigen Erweiterungsbau ergänzt. Darin sind ein Speisesaal, ein Ruheraum und – auf der obersten Ebene – ein Schlafzimmer mit Balkon untergebracht.
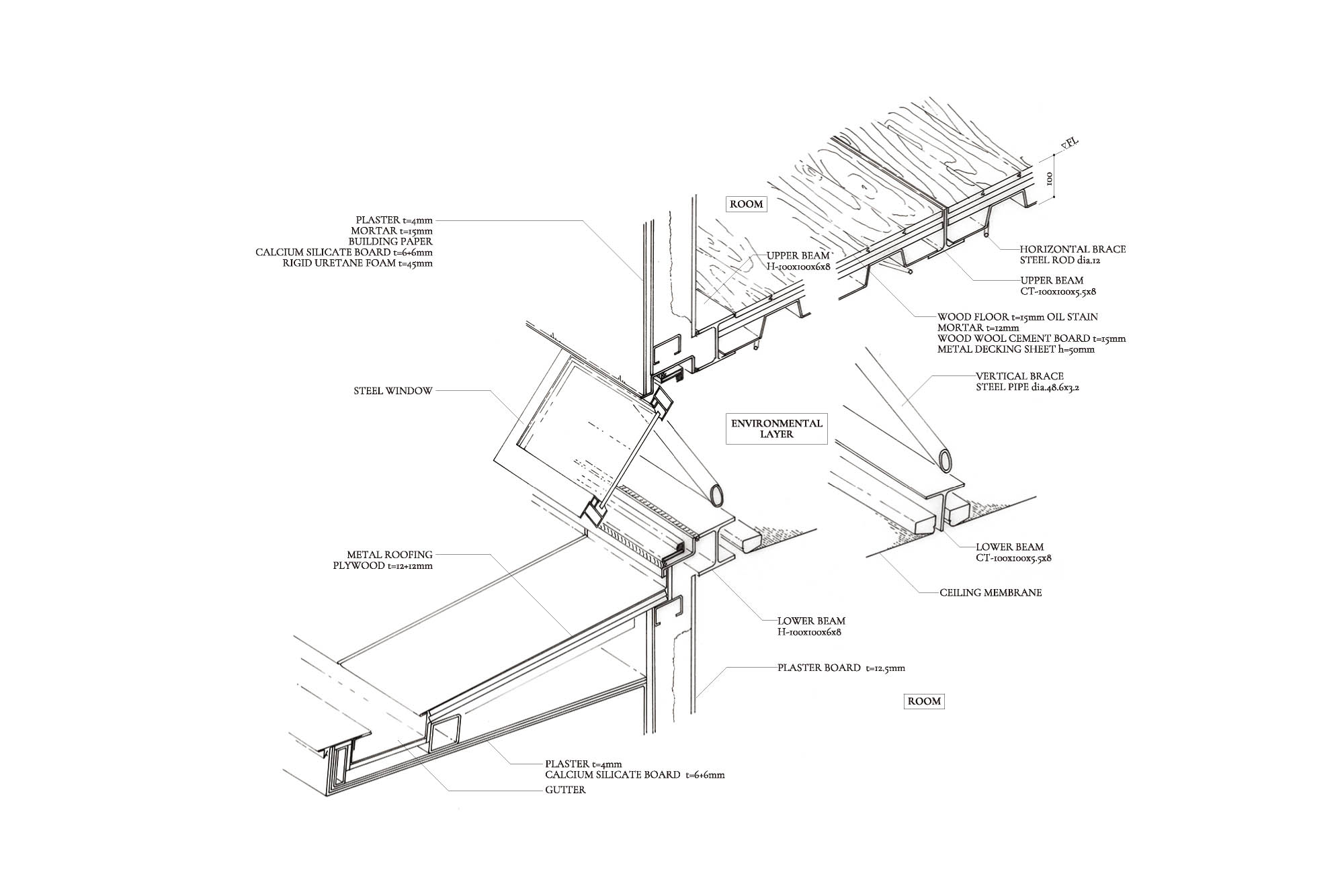
Der erste Anblick des Hauses ist ebenso unkonventionell wie sein innerer Aufbau, erklärt sich jedoch aus der Struktur des benachbarten Bestandsgebäudes. Dort versorgen Oberlichter in einem dreistufigen, pagodenartigen Dach den Badesaal mit Tageslicht. In dem Erweiterungsbau fügten T/H umlaufende Oberlichtstreifen dort ein, wo sich sonst die Installationstechnik verbirgt: auf Höhe der Deckenhohlräume. Abgehängte Membrandecken streuen das hier einfallende Tageslicht in den Speiseraum im Erdgeschoss und den mit Tatami-Matten ausgelegten Ruheraum im ersten Obergeschoss. Ebenso wie die auskragenden Vordächer sind sie in unterschiedliche Richtungen geneigt, um differenzierte Lichtstimmungen in jeder Etage zu erzeugen: mit lebendigerem Südlicht im Erdgeschoss und ruhigerem Nordlicht auf der Ebene darüber. Je nach Blickwinkel erscheinen die Spanndecken entweder opak oder leicht durchsichtig, sodass der Blick auf das darüber liegende Raumfachwerk aus Stahl fällt. Auch zur Durchlüftung tragen die Deckenhohlräume bei, denn die seitlichen Fensterbänder lassen sich teilweise öffnen. Nachts wird das Haus zu einer etwas bizarren, großen Laterne, die die Betrachter über ihre wahre Geschosszahl im Unklaren lässt.
Weitere Informationen:
Landschaftsarchitektur: Brocante
Bauunternehmen: Matsumoto Corporation

















