// Check if the article Layout ?>
In the Play of the Tides: Seashore Chapel
Photo: Chen Hao
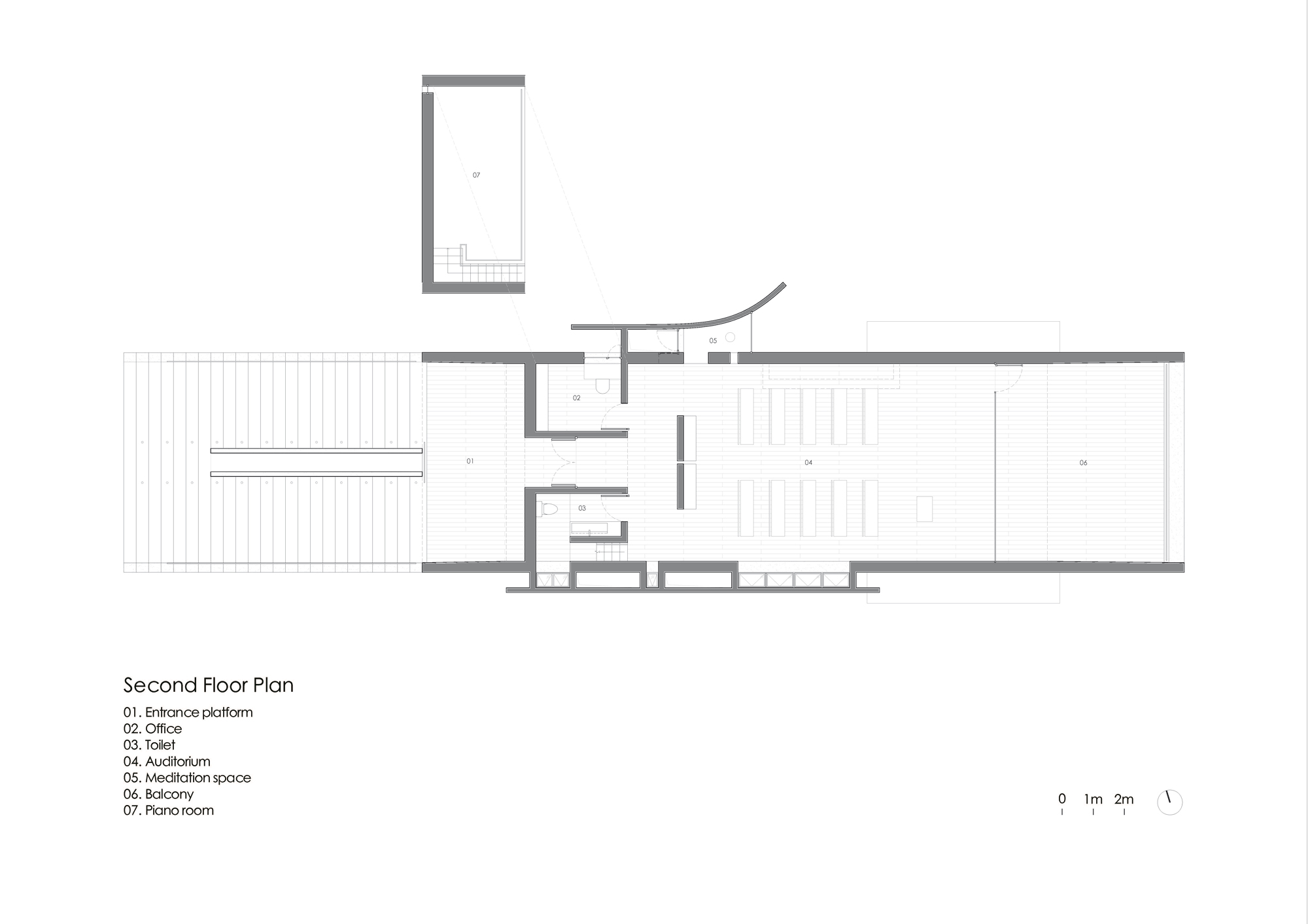
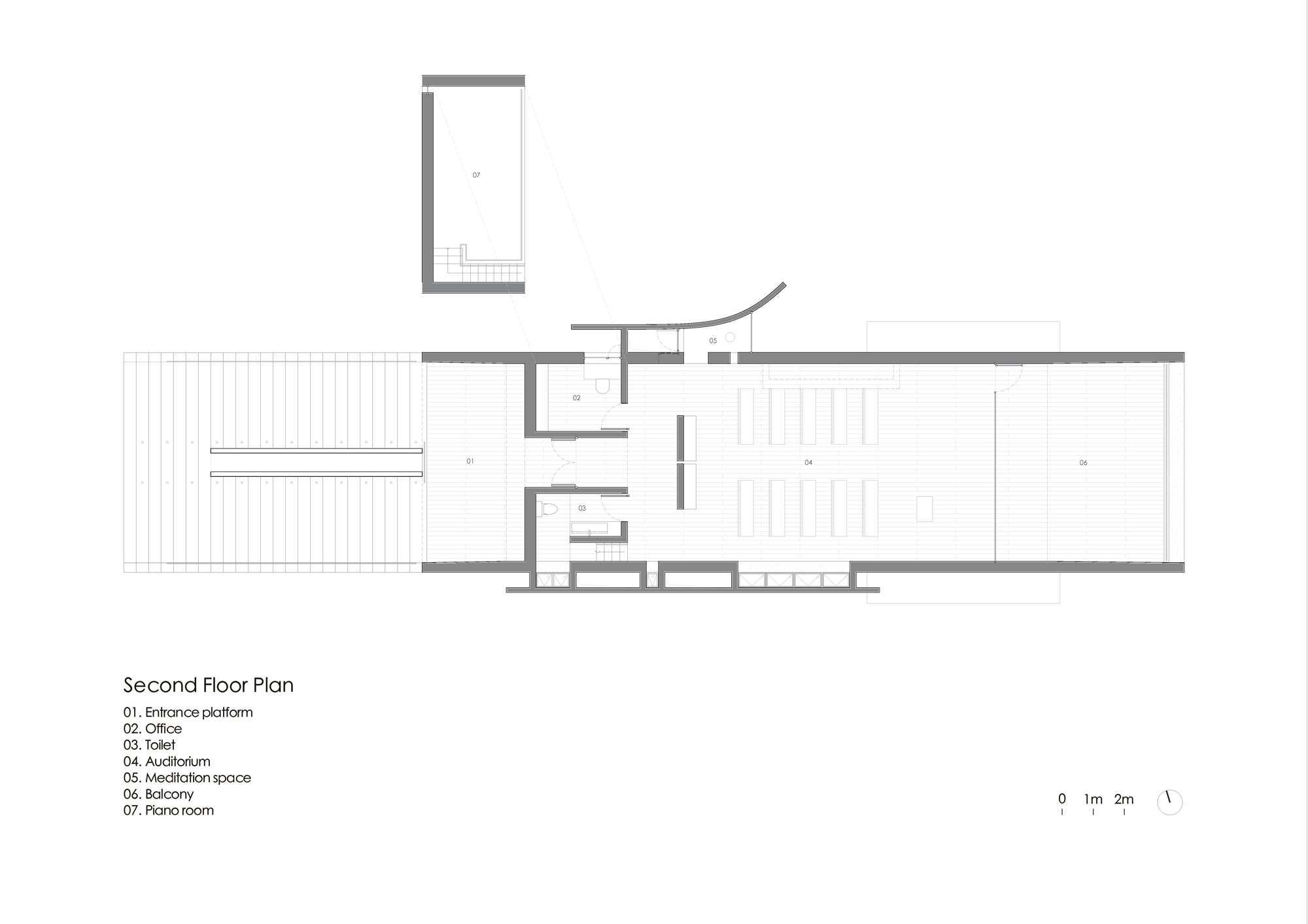
The spatial experience begins with a 30-metre path that leads through the sand to the chapel. At the end of the path, the building is introduced with its large, imposing stairway, which is literally see-through. A 60-mm gap in the closed stairs provides a view of the Gulf of Bohai as visitors ascend. Another gap in the concrete roof emphasizes the transition zone from outside to inside before visitors enter the narthex. From here, a stairway leads to the lower level, a roofed-in exterior place of rest and contemplation. The upper level stands on stilts; its raised position creates a close connection between the space and the sea. The chapel enjoys a spiritual atmosphere: visitors are lulled by the sounds of the ocean as they behold the vastness of the sky.
The appearance of the church changes with the play of the tides. When the tide comes in, the water flows into the lower level. This creates the illusion behind the architects’ original idea: the building floats like a boat on the open sea. When visitors go up to the upper level by means of a narrow corridor, the auditorium opens up to them. This 14 x 7 m hall offers place for 30 to 40 people. On the north side, there is a jutting meditation room just big enough for one.
Daylight was an important element to the architects. The chapel’s windows have been deliberately placed to control stark light, yet allow diffused light to enter. The large picture window is located on the east side. At 2.7 metres high, it frames the unobstructed view from the hall over the sea. Above the window hangs a cross lit from above and below. A 300-mm wide light channel between the curved wall to the north and the roof allows more natural light to stream in. The roof, curved on the inside, is oriented towards the highest point of the summer sun. In spring, summer and autumn, when the sun lies nearly vertically, the light shines directly onto the north-facing wall. Although this does not last long, the materiality of the structure is set in scene for a few moments, and vivid light effects are created.
The construction is clad with white plastering, which gives it a unified look both inside and out. Bamboo planks offer a warm contrast to the straight lines of the surface, accentuated by wooden window frames. The flooring extends all the way to the balcony located behind the large front window. From the balcony, visitors can enjoy the cerulean ocean; they can smell the sea and feel the breaking of the surf.
The appearance of the church changes with the play of the tides. When the tide comes in, the water flows into the lower level. This creates the illusion behind the architects’ original idea: the building floats like a boat on the open sea. When visitors go up to the upper level by means of a narrow corridor, the auditorium opens up to them. This 14 x 7 m hall offers place for 30 to 40 people. On the north side, there is a jutting meditation room just big enough for one.
Daylight was an important element to the architects. The chapel’s windows have been deliberately placed to control stark light, yet allow diffused light to enter. The large picture window is located on the east side. At 2.7 metres high, it frames the unobstructed view from the hall over the sea. Above the window hangs a cross lit from above and below. A 300-mm wide light channel between the curved wall to the north and the roof allows more natural light to stream in. The roof, curved on the inside, is oriented towards the highest point of the summer sun. In spring, summer and autumn, when the sun lies nearly vertically, the light shines directly onto the north-facing wall. Although this does not last long, the materiality of the structure is set in scene for a few moments, and vivid light effects are created.
The construction is clad with white plastering, which gives it a unified look both inside and out. Bamboo planks offer a warm contrast to the straight lines of the surface, accentuated by wooden window frames. The flooring extends all the way to the balcony located behind the large front window. From the balcony, visitors can enjoy the cerulean ocean; they can smell the sea and feel the breaking of the surf.
Seashore Chapel from DETAIL online on Vimeo.
Further infotmation:
Partnerarchitects: Dongping Sun, Yi Chi Wang, Jiahe Zhang
Supporting construction: Beijing Yanhuang International Architecture & Engineering Co. Ltd.; Lixin Ji, Zhongyu Liu
Construction time: November 2014 – Oktober 2015
Partnerarchitects: Dongping Sun, Yi Chi Wang, Jiahe Zhang
Supporting construction: Beijing Yanhuang International Architecture & Engineering Co. Ltd.; Lixin Ji, Zhongyu Liu
Construction time: November 2014 – Oktober 2015


























