Inserted: Renovation of a listed apartment in Valencia
Foto: João Morgado
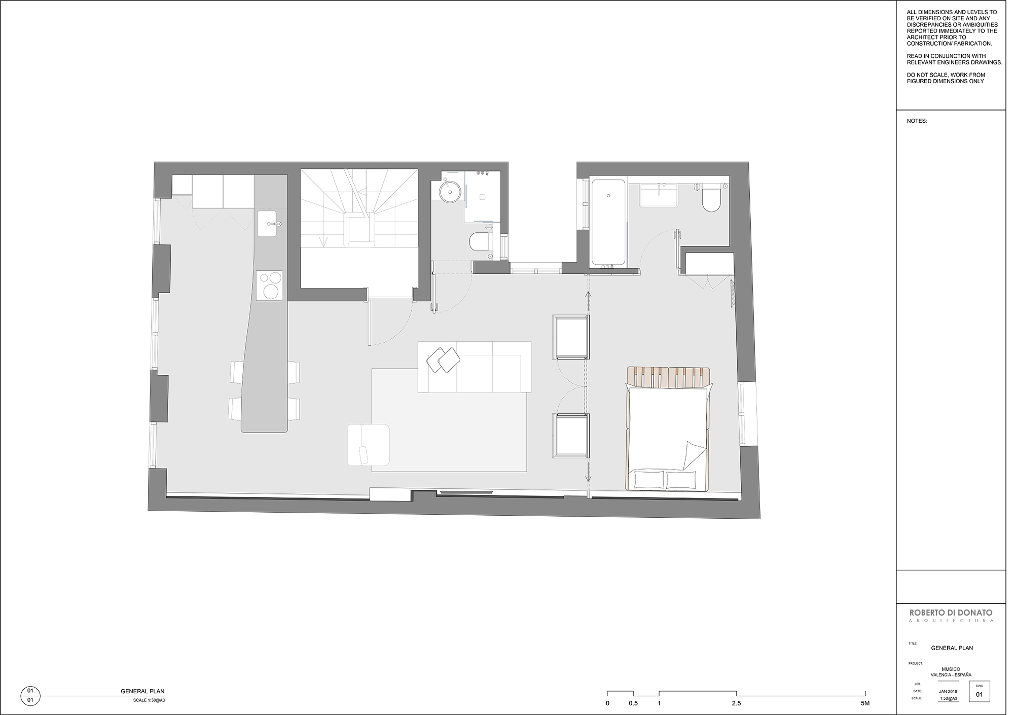
The house, which dates back to the early 20th century, was under preservation orders. However, as it had been in a state of neglect for many years it was now only possible to save the outer shell of the structure. Irrespective of all official specifications and requirements, the London-based Roberto di Donato Architects saw it as a matter of concern to make the original space and its dimensions experienceable again and to clearly set newly-inserted elements apart. Creating a pleasant and functional living space also required the accommodation of very differing rooms within the shell. All have been brought together in a flowing arrangement.
In this approach, the structure as built remained practically untouched. Naked brickwork can be seen on the walls and the reconstructed roof timbers have been left fully exposed. Cabinetwork that forms a wardrobe system and room divider in one separates the sleeping area at one end of the apartment from the living and dining area, while the open kitchen at the opposite end makes full use of the height and width of the space. The kitchen worktop and the white plasterboard skirting that runs the circumference of the entire space, complete with integrated light strips, introduce clear, horizontal lines. On the other hand the cabinetwork elements, the floor-length curtains and a prominently placed ladder underscore the vertical dimension.
The architects showed their respect for the structure's past by using a contemporary design language that impinges only minimally on the fabric of the building. The wounds and layers of past interventions were carefully retained and even left on show, making it possible to detect the red thread that runs through the building's history.




















