// Check if the article Layout ?>
Introverted but open: Sloping house in Belgium
Photo: Tim van de Velde
The plain exterior of the single-family home is reminiscent of tulous, traditional Chinese buildings with aloof outer walls that provide no idea of the fascinating interior. Indeed, the few, precisely positioned window openings in the TV House do little to obviate the impression of a practically closed-off façade. As such the exterior is clad in heat-treated regional wood boards that create a striking textural effect due to their varying thickness, easily legible at the place where the walls meet the roof as the fascia is not visible. Depending on the angle of light and vision, the facade shifts in colour from a dirty brown to dark grey and matte black, and the same dark wooden boards are used around the inner court, but in an even thickness to create a calming and tranquil atmosphere in contrast to the rugged surface of the outer skin.
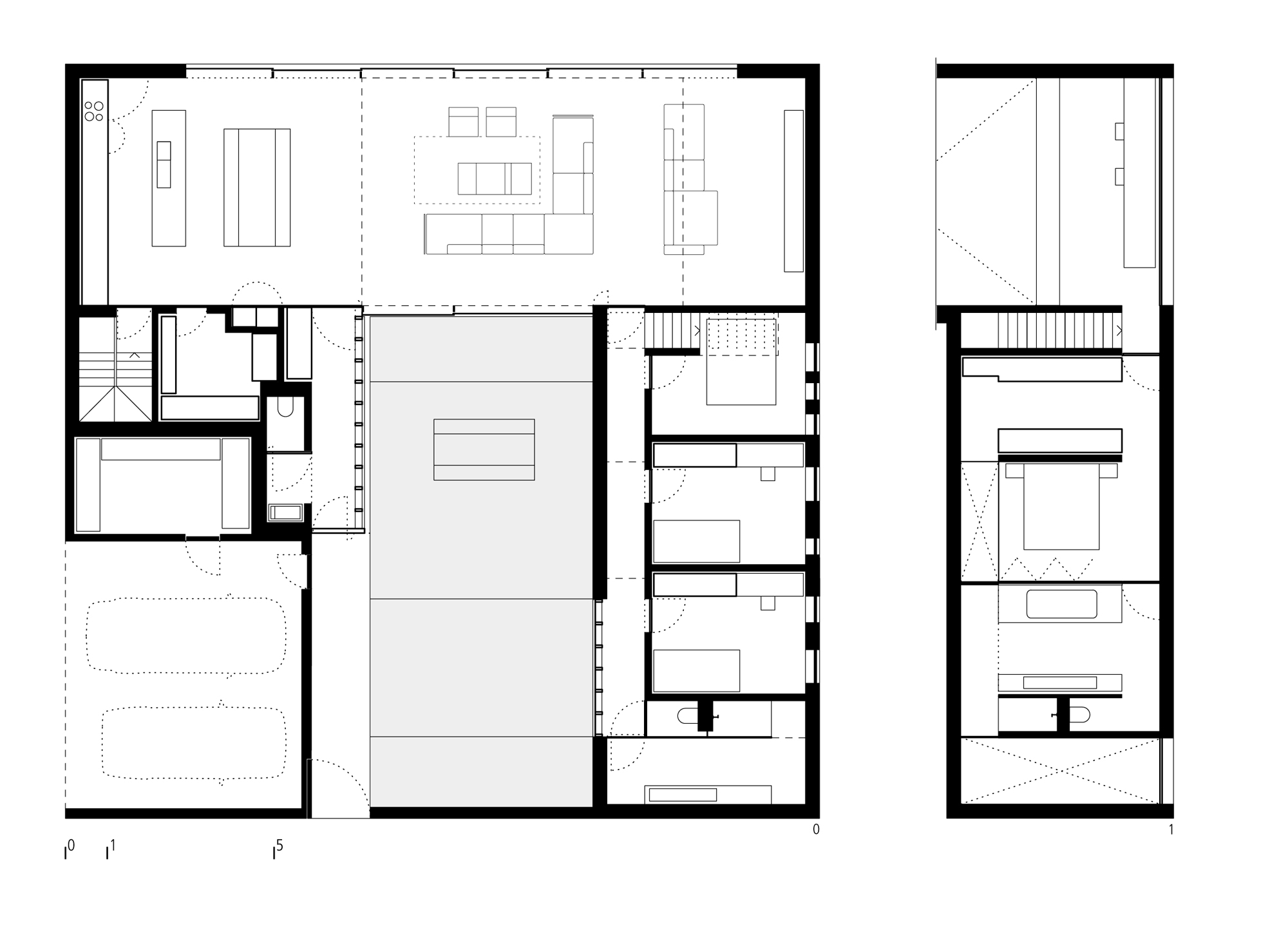
The building is entered by stepping through a wooden door into the private patio, where a narrow concrete walkway leads past an idyllic pond to the actual front door. Toying in this way with urban planning notions of public, semi-public and private space, Bruno Vanbesien has also succeeded in blurring the boundaries between indoors and outdoors by providing the ground floor living area the same concrete flooring as the patio.
The closed-off look of the exterior is contrasted by the sequence of light-flooded spaces inside, with light entering both sides of the generously-sized living and dining area situated towards the far end of the inner court. The dark grey fitted kitchen in this area can be concealed behind a system of white folding cupboards to conceal the mess of everyday life in one easy movement. The same dark-coloured sanded larch wood is to be found in the bathroom set alongside the two ground-floor bedrooms.
The roof rises in a steep incline to the east, leaving enough room for a double-height space and a fairly narrow mezzanine work area that overlooks the garden and the family's main living area. The master bedroom is also located below the sloping roof and features an adjacent bathroom that can be closed off or opened up with wooden floor-to-ceiling folding elements. All the upper floor spaces are faced in oak to create a homey and intimate atmosphere.
The architect has restricted himself to a limited choice of selected materials and used them both indoors and outdoors, thus forming a harmonious whole. At the same time, the introverted design surprises with both light-flooded interior spaces and green foliage close on hand.


























