Fast construction, high quality
Nursery School by BDR Bureau
The kindergarten opens to the south, towards the street, with large glass fronts. The corners of the building are set back slightly to create sheltered outdoor areas. © Federico Fariniatti
It is now about eight years since a series of earthquakes struck central Italy. The city of Macerata in the Marche region, about 50 km south-west of Ancona, was also affected. In the aftermath of the disaster, many organisations showed their solidarity by donating money or goods. Among them was the private foundation of opera and pop singer Andrea Boccelli. In particular, it has helped to repair a school centre in the Sforzacosta district.


The roof structure, with its skylight, towers over the rest of the building. © Federico Fariniatti
Inconspicuous but full of surprises
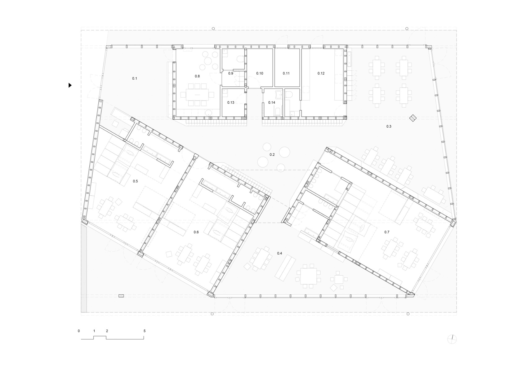
The first phase of the project involved the construction of a new nursery school for around 70 children on the outskirts of the village. It was designed by the BDR studio in Turin, which won the competition for the project in 2022. The 600 m² building was constructed in just 150 days. But the speed did not mean compromising on the quality of the design. Despite its simple exterior, the kindergarten is full of surprises. This can be seen from the floor plan: A largely glazed volume with three enclosed structures opens up under the wide overhanging pitched roof. One of these contains two group rooms for the kindergarten, a second for a crèche group, and the third houses the staff rooms and a fully equipped kitchen.


View of the interior spaces in between: On the left, the canteen with its striking single column, ...© Federico Fariniatti


... on the right, the art and creative area. © Federico Fariniatti
Flowing transitions under the gabled roof
Equally exciting is the use of the spaces in between and the nature of the transitions. At the centre of the building is a cloakroom area, lit from above by a large skylight. To the south, separated by a striking doorway, is an area for the children's artistic activities and early science experiments. Musical instruments are housed in the north-west entrance area and the canteen in the north-east. The transitions between the zones are as fluid as those to the outside. The Andrea Boccelli Foundation will continue to operate there: At the end of 2024, the neighbouring school centre was also renovated and handed over to the pupils. Construction also took around 150 days.
Read more in Detail 9.2025 and in our databank Detail Inspiration.
Architecture: BDR bureau
Client: ABF Andrea Bocelli Foundation
Location: Via G. Natali, Sforzacosta, Macerata (IT)
Structural engineering: Andrea Montagna
Site manangement: Paolo Bianchi
Building services engineering: Gianluca Serpilli, Fabio Serpilli















