Classic Revival: Studio Houses by Klaus Schlosser near Potsdam
Foto: Stefan Müller
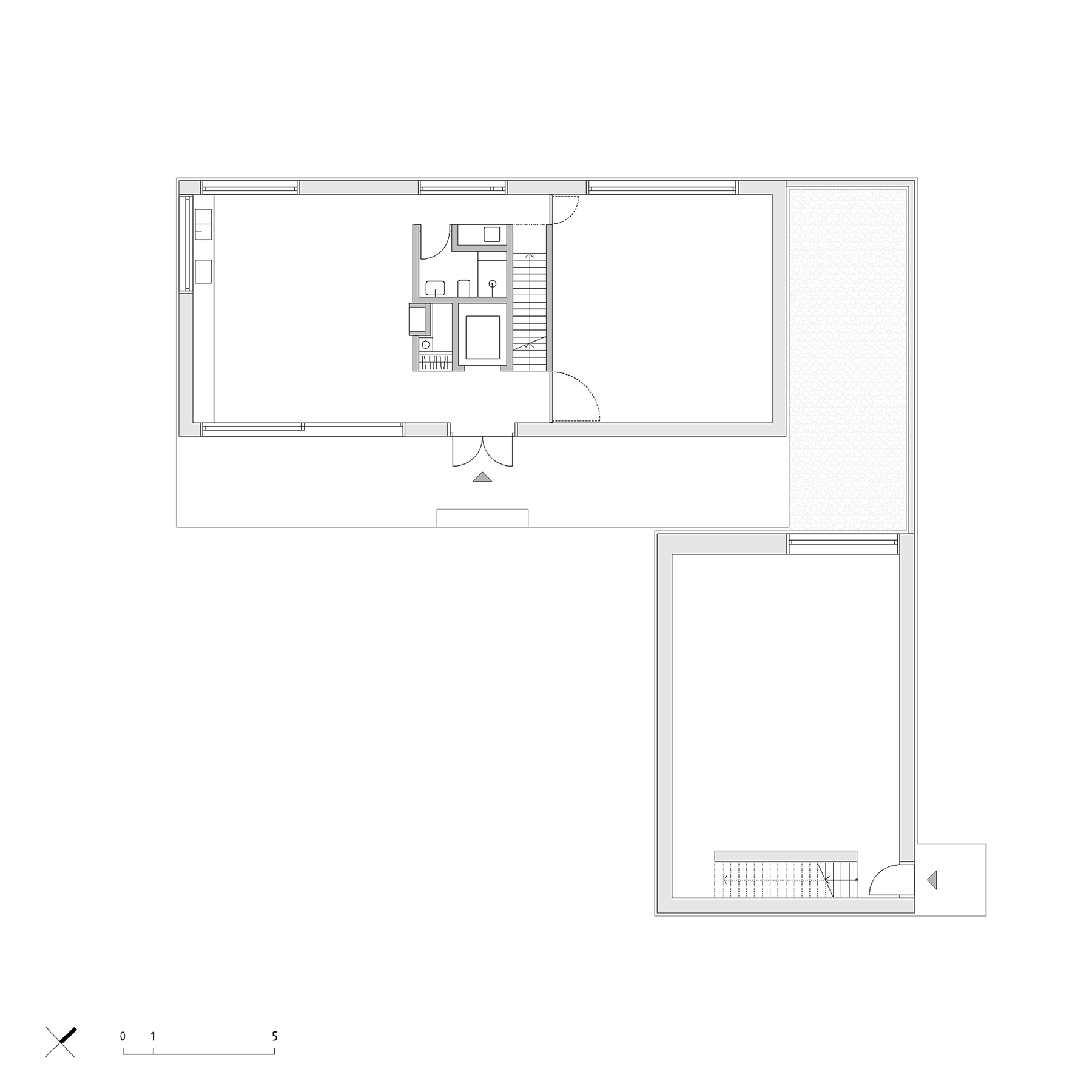
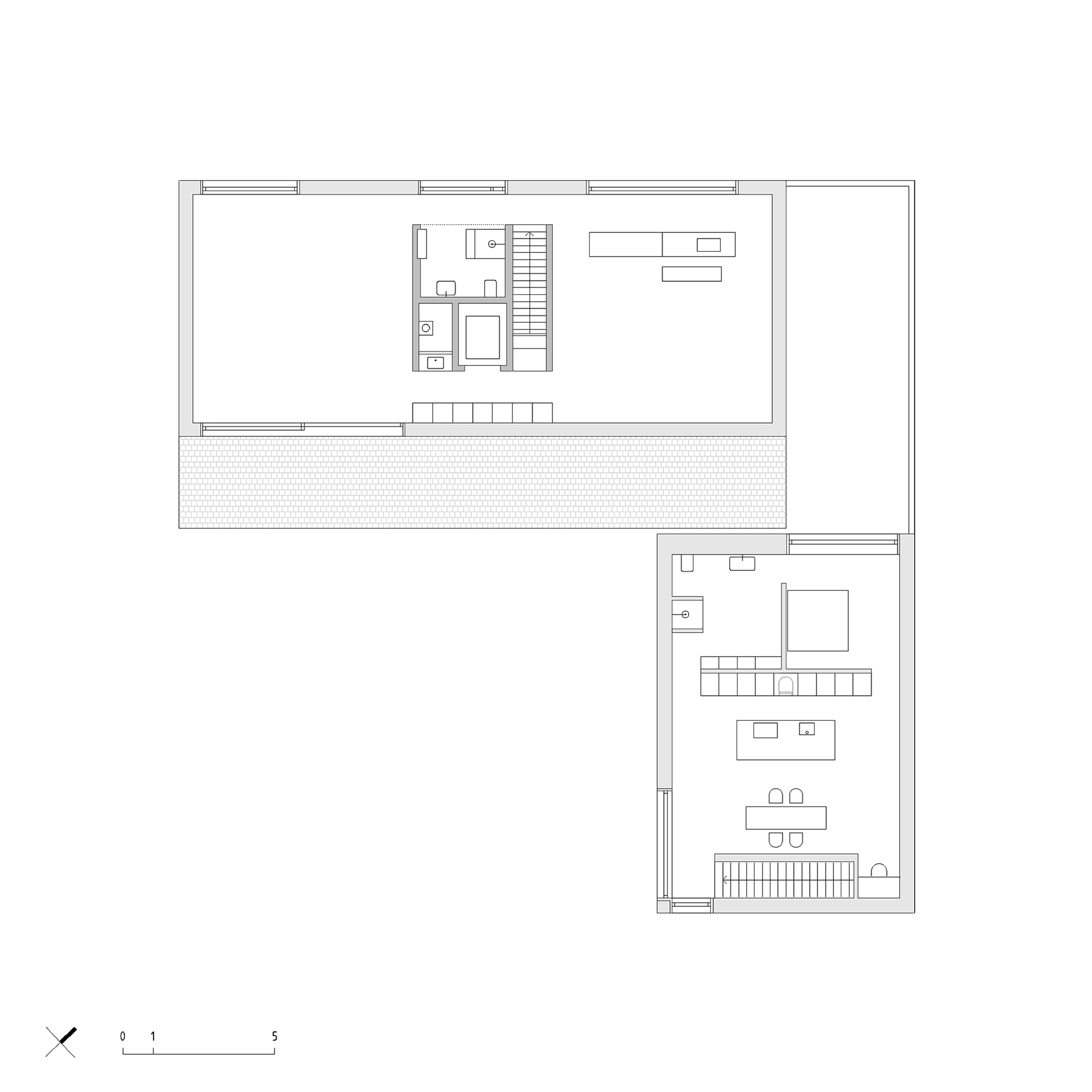
Dem Berliner Architekturbüro Klaus Schlosser ist es zu verdanken, dass der regionale Bautyp des wendischen Hauses neu belebt wird: mit einfachen Baukörpern, spitzem Giebeldach und verputzten Fachwerkwänden. Die beiden neuen zweigeschossigen Atelierhäuser zum Wohnen und Arbeiten sind in rechtem Winkel zueinander angeordnet und als vorgefertigte Holztafelbauten errichtet.
Wendische Traditionen
Als Friedrich Wilhelm IV. um 1840 den Norden von Potsdam entlang der Havel den Lenneschen Landschaftsgärten zuschlug, veränderten sich die Dorfstrukturen für die dort ansässigen wendischen Bauern und Fischer. Mit der Anpflanzung von Bäumen und der Anlage von Landschaftsgärten auf den ehemals landwirtschaftlich genutzten Feldern und Wiesen wurde ihnen die Existenzgrundlage entzogen. Damit verschwand auch die ortstypische Bauform des wendischen Hauses aus verputztem Fachwerk mit steil aufragendem Giebeldach fast vollständig.
Neuinterpretation einer Bautradition
Klaus Schlosser greift mit seinen Atelierhäusern auf diese Bautradition zurück. Das Hauptgebäude der beiden Baukörper ist unterkellert und nimmt die Haustechnik sowie eine Wärmepumpe auf, die auch das Nebengebäude mitversorgen. Das kleinere Nebengebäude kennzeichnet ein markantes keilförmiges Vordach über einem Innenhof, hier kann im Freien gearbeitet werden. Ein Kern aus Stahlbeton beinhaltet die sanitären Anlagen sowie die Treppe und trennt die Geschossebenen mittig in je zwei Nutzbereiche. Beheizt werden die Ateliers über eine Fußbodenheizung, ergänzt durch einen raumluftunabhängigen Kamin. Sämtliche Außenwände sind mit Douglasienvollholzbrettern bekleidet. Fenster und Türrahmen bestehen aus Lärchenholz. Große ungeteilte Atelierfenster, teilweise als Hebe-Schiebefenster ausgeführt, belichten die Räume, die Kunstschaffenden aus dem Nebeneinander von Wohnen und Arbeiten eine inspirierende Atmosphäre bieten.















