Art instead of coal
Power Plant Conversion in Xi'an by Nomos Architects
The former power station, which used to supply heat to residential buildings on the university campus, now houses an art gallery and commercial units. © Studio Ten, Tan Xiao
The coal-fired power plant at Shiyou University in Xi'an was less than 20 years old when it closed in 2014. This infrastructure building is located on the inner-city campus of a state university that specialises in petroleum and petrochemical subjects. Until the energy supply was converted, the building was mainly used to heat student accommodation.


Section, Graphic © Nomos Architects
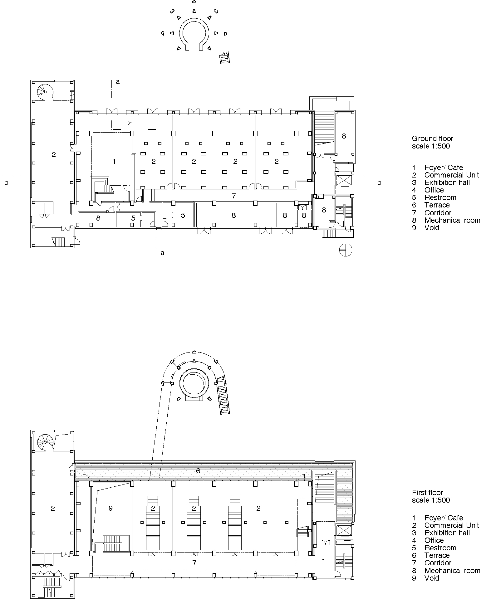
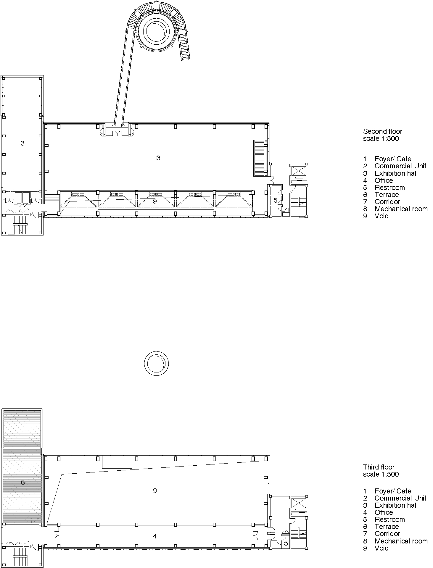
Mixed use revitalises existing buildings
The vacant reinforced concrete structure was converted by the Nomos architectural firm and now houses a variety of spaces. At its centre is the high boiler room, which can be used to host exhibitions. The smaller rooms below can be rented out as commercial space, helping to finance art and cultural events. The shops also attract people who might not otherwise visit an exhibition.
Power station becomes architectural backdrop
The power station's exterior has barely changed, and even the brick chimney has been left intact. It now provides access to the exhibition space on the second floor and is complemented by a winding staircase and a footbridge. The building itself looks like a sculpture, surrounded by a band of pre-oxidised steel – the cladding of the parapets. The commercial units on the ground and first floors were given additional space. Nomos extended the building at ground level with a narrow extension clad in corrugated iron. The roof of the floor above has been designed as a terrace and the adjacent commercial units are fully glazed.


The building's facade is characterised by polycarbonate and corrugated iron. © Studio Ten, Tan Xiao
Transparency for the boiler room
However, for the facade of the boiler room on the second and third floors, the planning team removed the brick infill, exposing the supporting structure. In front of this, they installed a polycarbonate facade. Inside the exhibition space, the coal silos have been preserved, bearing witness to the past. The air duct outlets are integrated between them. The raw surfaces, and the works of art where applicable, are illuminated by indirect light that falls through the facade and the skylighted roof structure.


Inside, the funnel-shaped coal silos hint at the building's past, too. © Studio Ten, Tan Xiao
The power plant ruins are an example of the kind of building that the Nomos architectural firm finds charming, as they can be seen as evidence of China's rapid economic rise. Surrounded by uniform residential high-rises, the hope is that the mixed-use concept will prove successful, ensuring that both recent history and art remain present in this densely populated district of Xi'an.
Architecture: Nomos Architects
Client: TanArt Community
Location: Xi'an, Shaanxi, China



















