Kunst statt Kohle
Kraftwerksumbau in Xi’an von Nomos Architects
Einst versorgte das Kraftwerk die Wohnbauten auf dem Hochschulcampus mit Wärme, nun sind darin eine Kunsthalle und Gewerbeeinheiten untergebracht. © Studio Ten, Tan Xiao
Keine 20 Jahre alt war das Kohleheizkraftwerk der Shiyou Universität in Xi’an, als es 2014 geschlossen wurde. Das Infrastrukturbauwerk steht auf einem innerstädtischen Campus der staatlichen Hochschule, deren Schwerpunkt auf Studienfächern rund um Petroleum und Petrochemie liegt. Bis zur Umstellung der Energieversorgung diente es vor allem der Beheizung der Unterkünfte für die Studierenden.


Schnitt, Grafik © Nomos Architect
Mischnutzung belebt Bestandsbau
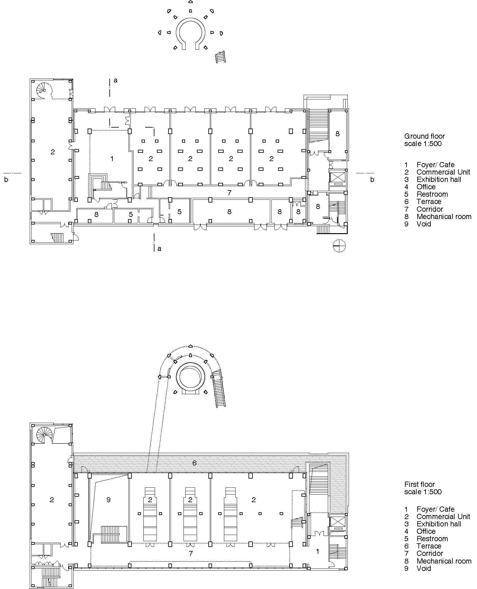
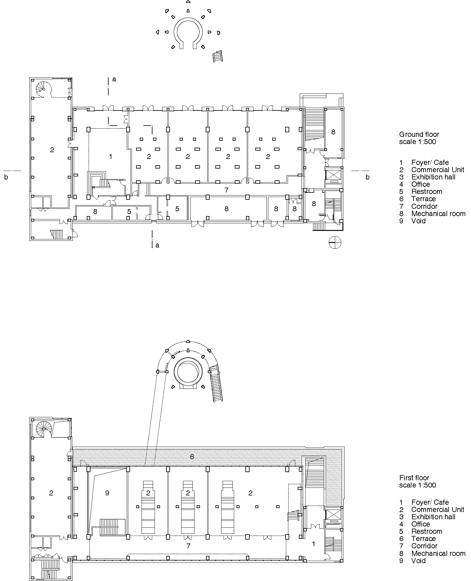
Der leerstehende Stahlbetonskelettbau wurde vom Architekturbüro Nomos umgebaut und beherbergt nun verschiedene Nutzungen. Im Zentrum steht dabei der hohe Kesselraum, in dem Ausstellungen stattfinden können. Die kleineren Räume darunter hingegen lassen sich als Gewerbeflächen vermieten, was wiederum dazu beiträgt, die Kunst- und Kulturveranstaltungen zu finanzieren. Gleichzeitig locken die Läden Menschen an, die ansonsten vielleicht keine Ausstellung besuchen würden.
Kraftwerk wird Architekturkulisse
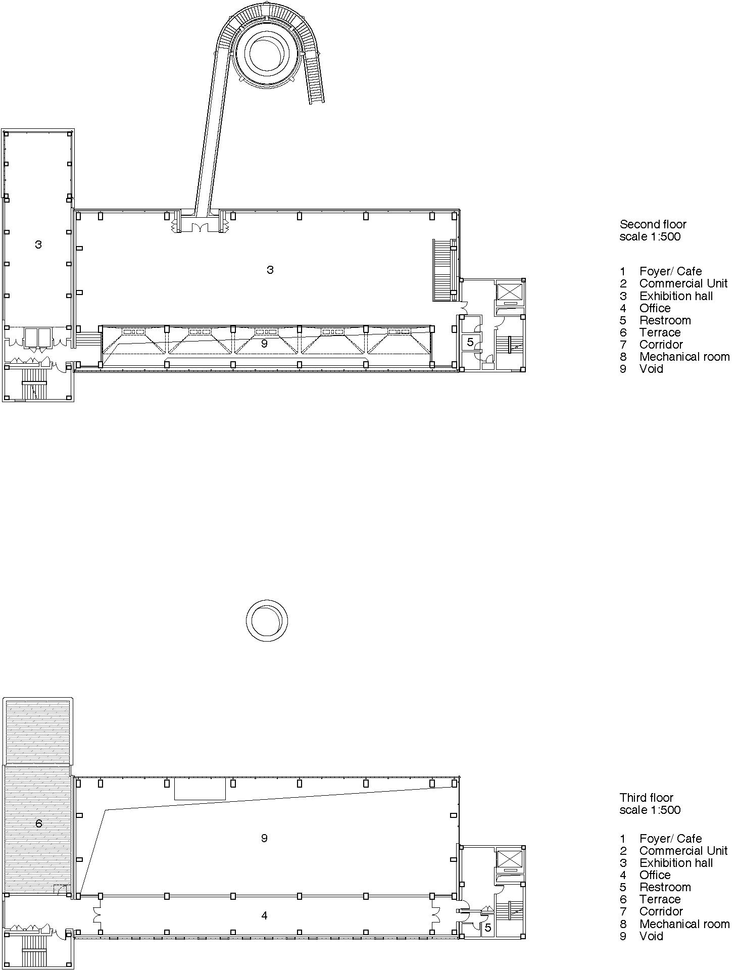
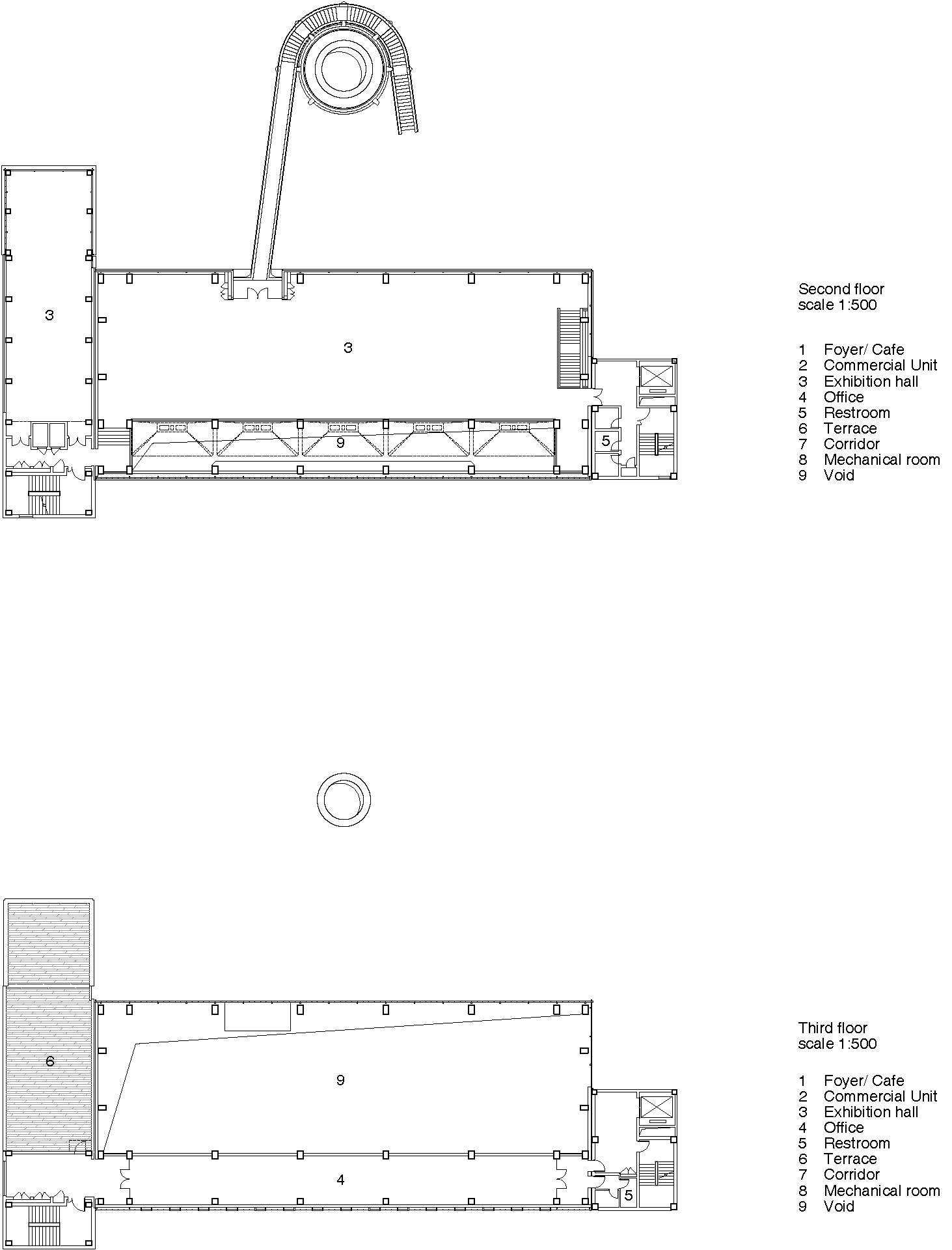
Der Rohbau des Kraftwerks wurde kaum verändert, sogar der gemauerte Kamin konnte bestehen bleiben. Er dient nun, ergänzt um eine gewundene Treppe und einen Steg, der Erschließung des Ausstellungsraums im zweiten Obergeschoss. Dabei wirkt er selbst wie eine Skulptur, um das ein Band aus voroxidiertem Stahl – die Bekleidung der Brüstungen – läuft. Die Gewerbeeinheiten im Erdgeschoss und ersten Obergeschoss erhielten zusätzlichen Raum: Im Sockelbereich erweiterten Nomos das Bauwerk um einen schmalen, mit Wellblech bekleideten Anbau. Das Dach im Geschoss darüber ist als Terrasse ausgebildet, die angrenzenden Gewerbeeinheiten sind voll verglast.


Polycarbonat und Wellblech prägt die Fassade des ehemaligen Kraftwerks. © Studio Ten, Tan Xiao
Transparenz für den Kesselraum
Bei der Fassade des Kesselraumes im zweiten und dritten Obergeschoss hingegen ließ das Planungsteam die gemauerten Füllungen entfernen und schälte so das Tragwerk frei. Davor montierte es eine Polycarbonatfassade. Das Innere des Ausstellungsraumes zeugt von der Vergangenheit, da die Kohlesilos erhalten blieben. Dazwischen sind die Auslässe der Luftkanäle integriert. Die rohen Oberflächen – und gegebenenfalls auch die Kunstwerke – werden vom indirekten Licht, dass durch die Fassade und den Dachaufsatz mit den Oberlichtern fällt, inszeniert.


Die trichterförmigen Kohlesilos lassen auch im Inneren auf die Vergangenheit des Gebäudes schließen. © Studio Ten, Tan Xiao
Für das Architekturbüro Nomos haben Bauten wie die Kraftwerksruine einen eigenen Charme, da sie sich als Zeugnisse des raschen wirtschaftlichen Aufstiegs Chinas lesen lassen. Dem von gleichförmigen Wohnhochhäusern umgebenen Umbau ist zu wünschen, dass sich das Konzept der Mischnutzung bewährt, sodass nicht nur die jüngere Geschichte, sondern auch die Kunst in diesem dicht bewohnten Stadtteil von Xi’an präsent bleiben kann.
Architektur: Nomos Architects
Bauherr: TanArt Community
Standort: Xi'an, Shaanxi, China



















