27.04.2021 Jakob Schoof

Cultural Air Sovereignty: Museum Boola Bardip in Perth by Hassell and OMA

Foto: © Peter Bennetts, courtesy of Hassell + OMA / OMA © VG Bild-Kunst, Bonn 2021

Bilder von Menschen, die ohne Schutzmasken in Massen in ein Museum strömen, sind uns im Corona-Winter 2020/21 fremd geworden. Doch weil Australien seit Oktober praktisch Covid-19-frei ist, spielten sich genau solche Szenen im letzten Herbst bei der Wiedereröffnung des Museum Boola Bardip ab. Vier Jahre lang war der Gebäudekomplex im Kulturbezirk von Perth zuvor von Hassell und OMA saniert und erweitert worden. Er ist  Hauptsitz des Western Australian Museum, das die staatlichen Kunst- und Naturkundesammlungen des Bundesstaats Westaustralien beherbergt. Bis heute steht das ehemalige Gefängnis der Stadt, in dem 1891 zunächst das Geologische Museum seine Tore öffnete, als Keimzelle der Institution im Museumshof. Weitere, inzwischen denkmalgeschützte Gebäudeflügel kamen zwischen 1899 und 1913 für die ethnologischen Sammlungen, die Kunstsammlungen und einen Lesesaal der Staatsbibliothek hinzu.

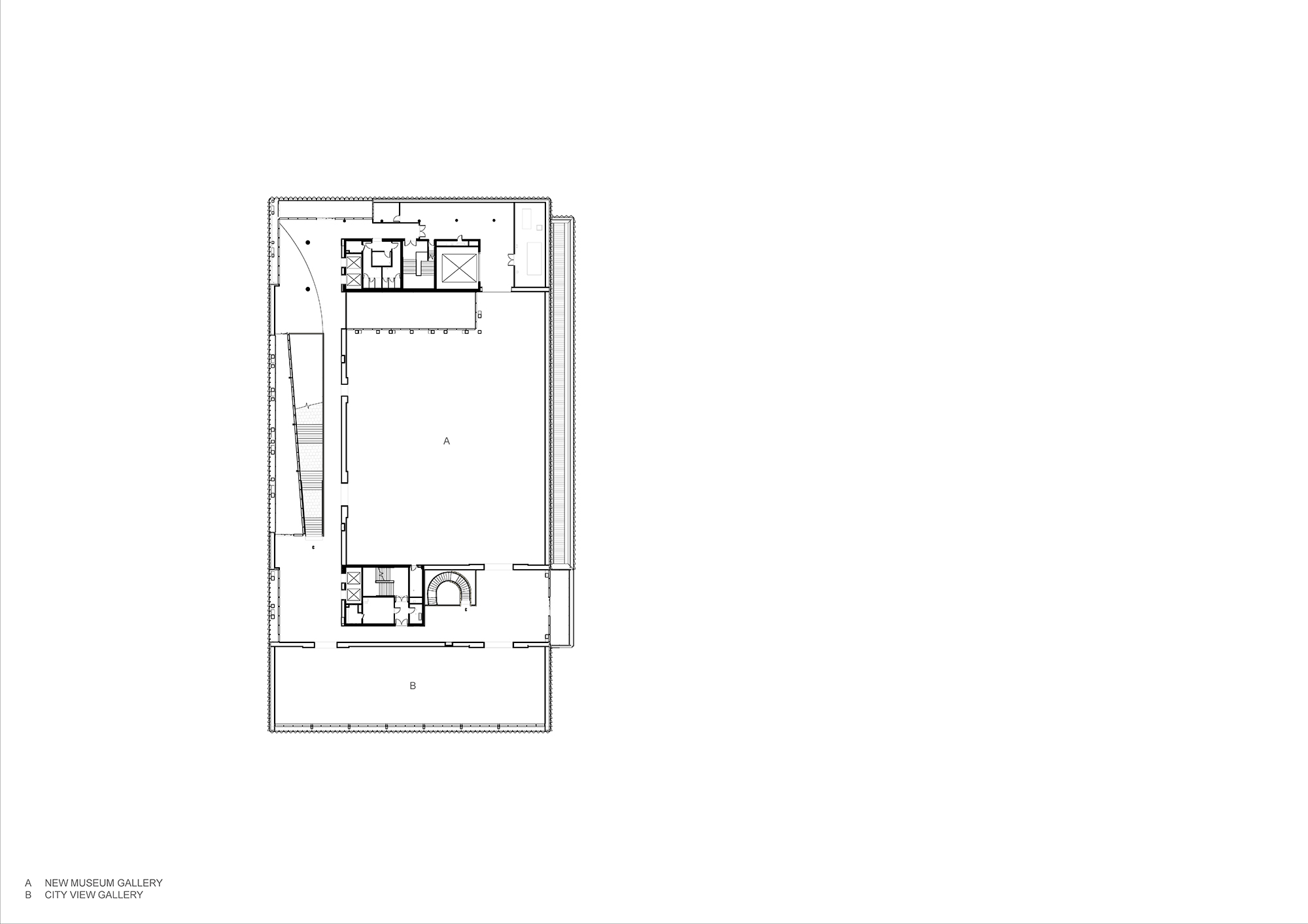
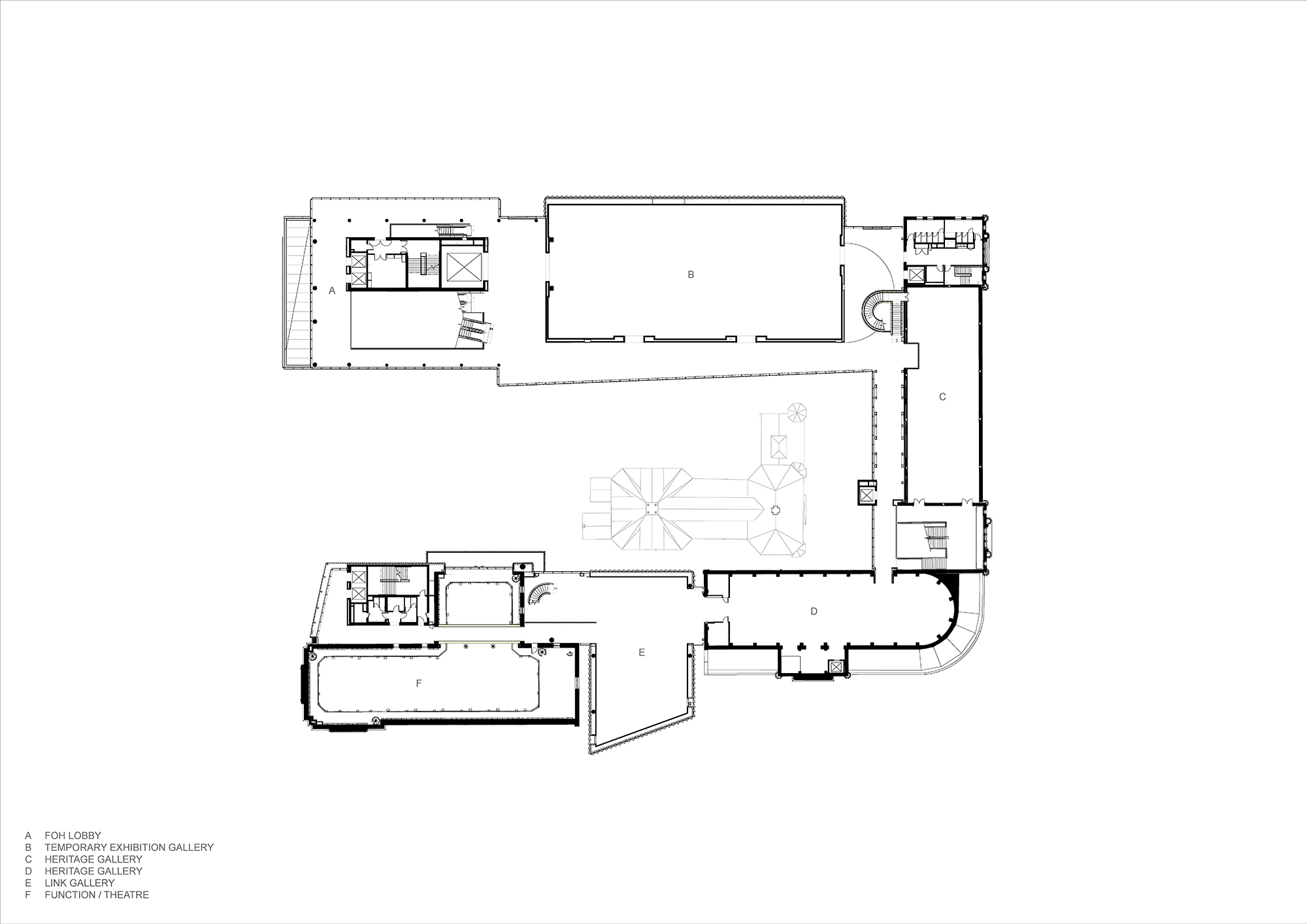
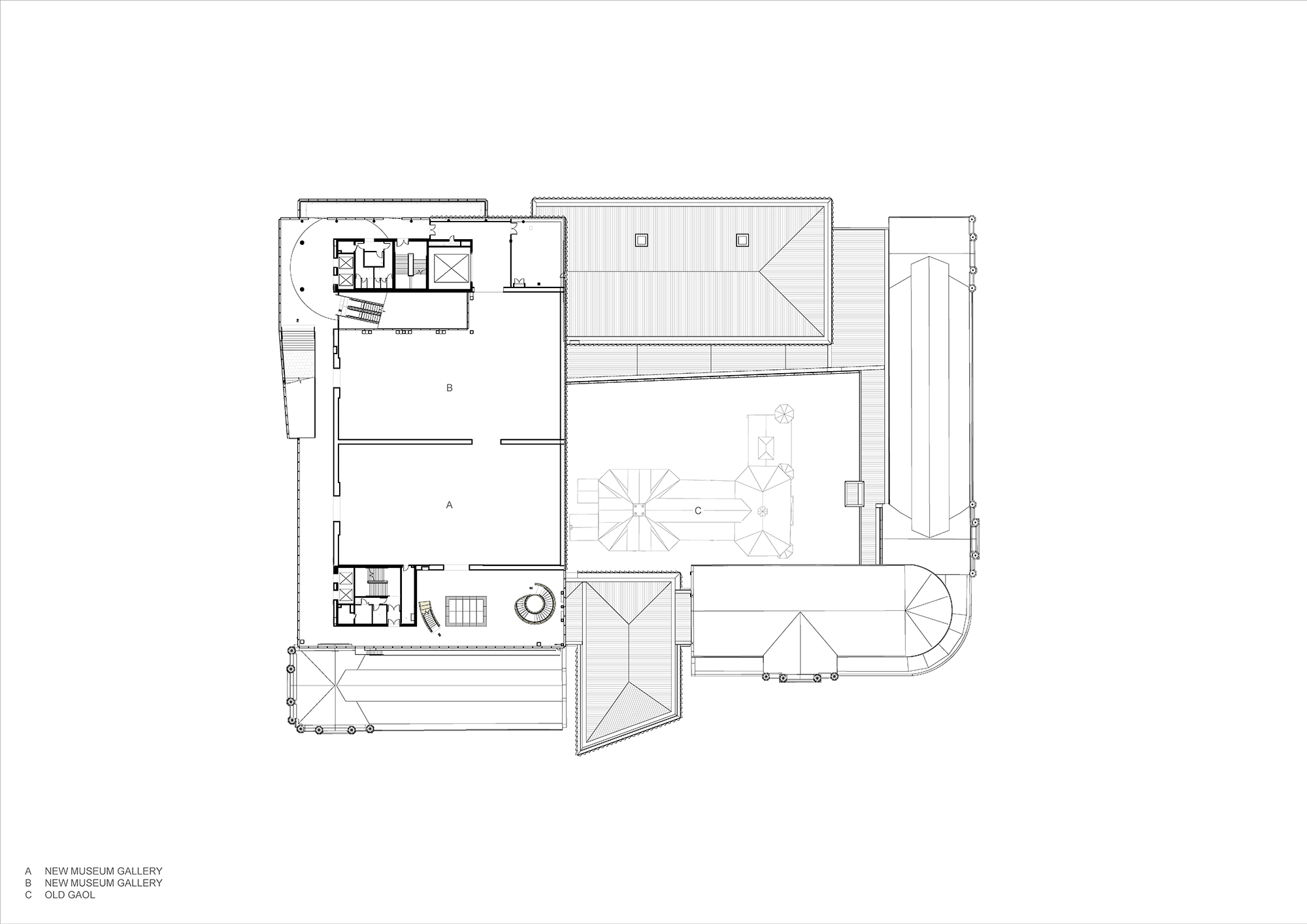
Mit dem rund 400 Millionen australische Dollar (umgerechnet etwa 260 Millionen Euro) teuren Umbau und Erweiterungsbau ist das Museum nun erneut deutlich gewachsen. Hassell und OMA, die die Planungsleistung im Auftrag des Totalunternehmers Multiplex erbrachten, ergänzten den zuvor L-förmigen Museumskomplex durch mehrere Ergänzungsbauten zu einem geschlossenen Rundgang – oder vielmehr derer zwei: Im ersten Obergeschoss können die Besucher nun in der Horizontalen den Innenhof umrunden. Die zwei aufgeständerten Kuben, die sich in gewagter Konstruktion quer über den Eingangshof und einen für die Museumspädagogik umfunktionierten Altbau legen, erlauben ihnen einen ähnlichen Parcours in der Vertikalen. Auch die transluzente Fassadengestaltung aus Glas und perforiertem Metallblech mindert das schwergewichtige Erscheinungsbild dieser Ergänzungen nicht – die klassischen Prinzipien der Tektonik sind am Museum Boola Bardip, wie so oft im Werk von OMA, auf den Kopf gestellt. Dreh- und Angelpunkt aller Wege durchs Haus ist der von den Neubauten teilüberdachte Hof, den die Architekten als „City Room“ inszenierten und in dem künftig öffentliche Veranstaltungen aller Art stattfinden sollen.

Weitere Informationen:

Bauunternehmen: Multiplex
TGA-Planung: Wood & Grieve
Fassadenplanung: Hera

Foto: 
© Peter Bennetts, courtesy of Hassell + OMA

Foto: 
© Peter Bennetts, courtesy of Hassell + OMA

Foto: 
© Peter Bennetts, courtesy of Hassell + OMA

Foto: 
© Peter Bennetts, courtesy of Hassell + OMA

Foto: 
© Peter Bennetts, courtesy of Hassell + OMA

Foto: 
© Peter Bennetts, courtesy of Hassell + OMA

Foto: 
© Peter Bennetts, courtesy of Hassell + OMA

Foto: 
© Peter Bennetts, courtesy of Hassell + OMA

Foto: 
© Peter Bennetts, courtesy of Hassell + OMA

Foto: 
© Peter Bennetts, courtesy of Hassell + OMA

Foto: 
© Peter Bennetts, courtesy of Hassell + OMA

Foto: 
© Peter Bennetts, courtesy of Hassell + OMA

Foto: 
© Peter Bennetts, courtesy of Hassell + OMA

Foto: 
© Peter Bennetts, courtesy of Hassell + OMA

Foto: 
© Peter Bennetts, courtesy of Hassell + OMA

Foto: 
© Peter Bennetts, courtesy of Hassell + OMA

Foto: 
© Peter Bennetts, courtesy of Hassell + OMA

Foto: 
© Peter Bennetts, courtesy of Hassell + OMA

Foto: 
© Peter Bennetts, courtesy of Hassell + OMA

Foto: 
© Peter Bennetts, courtesy of Hassell + OMA

Foto: 
© Peter Bennetts, courtesy of Hassell + OMA

Foto: 
© Peter Bennetts, courtesy of Hassell + OMA

Lageplan, Grafik: Hassell + OMA

Grundriss EG, Grafik: Hassell + OMA

Grundriss 1. OG, Grafik: Hassell + OMA

Grundriss 2. OG, Grafik: Hassell + OMA

Grundriss 3. OG, Grafik: Hassell + OMA

Schnitt, Grafik: Hassell + OMA

Schnitt, Grafik: Hassell + OMA

Foto: 
© Peter Bennetts, courtesy of Hassell + OMA

Foto: 
© Peter Bennetts, courtesy of Hassell + OMA

Foto: 
© Peter Bennetts, courtesy of Hassell + OMA

Foto: 
© Peter Bennetts, courtesy of Hassell + OMA

Foto: 
© Peter Bennetts, courtesy of Hassell + OMA

Foto: 
© Peter Bennetts, courtesy of Hassell + OMA

Foto: 
© Peter Bennetts, courtesy of Hassell + OMA

Foto: 
© Peter Bennetts, courtesy of Hassell + OMA

Foto: 
© Peter Bennetts, courtesy of Hassell + OMA

Foto: 
© Peter Bennetts, courtesy of Hassell + OMA

Foto: 
© Peter Bennetts, courtesy of Hassell + OMA

Foto: 
© Peter Bennetts, courtesy of Hassell + OMA

Foto: 
© Peter Bennetts, courtesy of Hassell + OMA

Foto: 
© Peter Bennetts, courtesy of Hassell + OMA

Foto: 
© Peter Bennetts, courtesy of Hassell + OMA

Foto: 
© Peter Bennetts, courtesy of Hassell + OMA

Foto: 
© Peter Bennetts, courtesy of Hassell + OMA

Foto: 
© Peter Bennetts, courtesy of Hassell + OMA

Foto: 
© Peter Bennetts, courtesy of Hassell + OMA

Foto: 
© Peter Bennetts, courtesy of Hassell + OMA

Foto: 
© Peter Bennetts, courtesy of Hassell + OMA

Foto: 
© Peter Bennetts, courtesy of Hassell + OMA

Lageplan, Grafik: Hassell + OMA

Grundriss EG, Grafik: Hassell + OMA

Grundriss 1. OG, Grafik: Hassell + OMA

Grundriss 2. OG, Grafik: Hassell + OMA

Grundriss 3. OG, Grafik: Hassell + OMA

Schnitt, Grafik: Hassell + OMA

Schnitt, Grafik: Hassell + OMA

https://detail-cdn.s3.eu-central-1.amazonaws.com/media/catalog/product/M/u/Museum-Boola-Bardip-Perth-OMA-Hassell-00-T1500.jpg?width=437&height=582&store=de_en&image-type=image https://detail-cdn.s3.eu-central-1.amazonaws.com/media/catalog/product/M/u/Museum-Boola-Bardip-Perth-OMA-Hassell-00-T735.jpg?width=437&height=582&store=de_en&image-type=image https://detail-cdn.s3.eu-central-1.amazonaws.com/media/catalog/product/M/u/Museum-Boola-Bardip-Perth-OMA-Hassell-01_2.jpg?width=437&height=582&store=de_en&image-type=image https://detail-cdn.s3.eu-central-1.amazonaws.com/media/catalog/product/M/u/Museum-Boola-Bardip-Perth-OMA-Hassell-01a.jpg?width=437&height=582&store=de_en&image-type=image https://detail-cdn.s3.eu-central-1.amazonaws.com/media/catalog/product/M/u/Museum-Boola-Bardip-Perth-OMA-Hassell-01b.jpg?width=437&height=582&store=de_en&image-type=image https://detail-cdn.s3.eu-central-1.amazonaws.com/media/catalog/product/M/u/Museum-Boola-Bardip-Perth-OMA-Hassell-02.jpg?width=437&height=582&store=de_en&image-type=image https://detail-cdn.s3.eu-central-1.amazonaws.com/media/catalog/product/M/u/Museum-Boola-Bardip-Perth-OMA-Hassell-03.jpg?width=437&height=582&store=de_en&image-type=image https://detail-cdn.s3.eu-central-1.amazonaws.com/media/catalog/product/M/u/Museum-Boola-Bardip-Perth-OMA-Hassell-04.jpg?width=437&height=582&store=de_en&image-type=image https://detail-cdn.s3.eu-central-1.amazonaws.com/media/catalog/product/M/u/Museum-Boola-Bardip-Perth-OMA-Hassell-04a.jpg?width=437&height=582&store=de_en&image-type=image https://detail-cdn.s3.eu-central-1.amazonaws.com/media/catalog/product/M/u/Museum-Boola-Bardip-Perth-OMA-Hassell-05.jpg?width=437&height=582&store=de_en&image-type=image https://detail-cdn.s3.eu-central-1.amazonaws.com/media/catalog/product/M/u/Museum-Boola-Bardip-Perth-OMA-Hassell-06.jpg?width=437&height=582&store=de_en&image-type=image https://detail-cdn.s3.eu-central-1.amazonaws.com/media/catalog/product/M/u/Museum-Boola-Bardip-Perth-OMA-Hassell-07.jpg?width=437&height=582&store=de_en&image-type=image https://detail-cdn.s3.eu-central-1.amazonaws.com/media/catalog/product/M/u/Museum-Boola-Bardip-Perth-OMA-Hassell-08.jpg?width=437&height=582&store=de_en&image-type=image https://detail-cdn.s3.eu-central-1.amazonaws.com/media/catalog/product/M/u/Museum-Boola-Bardip-Perth-OMA-Hassell-08a.jpg?width=437&height=582&store=de_en&image-type=image https://detail-cdn.s3.eu-central-1.amazonaws.com/media/catalog/product/M/u/Museum-Boola-Bardip-Perth-OMA-Hassell-09.jpg?width=437&height=582&store=de_en&image-type=image https://detail-cdn.s3.eu-central-1.amazonaws.com/media/catalog/product/M/u/Museum-Boola-Bardip-Perth-OMA-Hassell-10.jpg?width=437&height=582&store=de_en&image-type=image https://detail-cdn.s3.eu-central-1.amazonaws.com/media/catalog/product/M/u/Museum-Boola-Bardip-Perth-OMA-Hassell-11.jpg?width=437&height=582&store=de_en&image-type=image https://detail-cdn.s3.eu-central-1.amazonaws.com/media/catalog/product/M/u/Museum-Boola-Bardip-Perth-OMA-Hassell-12.jpg?width=437&height=582&store=de_en&image-type=image https://detail-cdn.s3.eu-central-1.amazonaws.com/media/catalog/product/M/u/Museum-Boola-Bardip-Perth-OMA-Hassell-13.jpg?width=437&height=582&store=de_en&image-type=image https://detail-cdn.s3.eu-central-1.amazonaws.com/media/catalog/product/M/u/Museum-Boola-Bardip-Perth-OMA-Hassell-14.jpg?width=437&height=582&store=de_en&image-type=image https://detail-cdn.s3.eu-central-1.amazonaws.com/media/catalog/product/M/u/Museum-Boola-Bardip-Perth-OMA-Hassell-15.jpg?width=437&height=582&store=de_en&image-type=image https://detail-cdn.s3.eu-central-1.amazonaws.com/media/catalog/product/M/u/Museum-Boola-Bardip-Perth-OMA-Hassell-16.jpg?width=437&height=582&store=de_en&image-type=image https://detail-cdn.s3.eu-central-1.amazonaws.com/media/catalog/product/M/u/Museum-Boola-Bardip-Perth-OMA-Hassell-17.jpg?width=437&height=582&store=de_en&image-type=image https://detail-cdn.s3.eu-central-1.amazonaws.com/media/catalog/product/M/u/Museum-Boola-Bardip-Perth-OMA-Hassell-18-Lageplan_Kopie.jpg?width=437&height=582&store=de_en&image-type=image https://detail-cdn.s3.eu-central-1.amazonaws.com/media/catalog/product/M/u/Museum-Boola-Bardip-Perth-OMA-Hassell-19-Gr-0_Kopie.jpg?width=437&height=582&store=de_en&image-type=image https://detail-cdn.s3.eu-central-1.amazonaws.com/media/catalog/product/M/u/Museum-Boola-Bardip-Perth-OMA-Hassell-20-Gr-1_Kopie.jpg?width=437&height=582&store=de_en&image-type=image https://detail-cdn.s3.eu-central-1.amazonaws.com/media/catalog/product/M/u/Museum-Boola-Bardip-Perth-OMA-Hassell-21-Gr-2_Kopie.jpg?width=437&height=582&store=de_en&image-type=image https://detail-cdn.s3.eu-central-1.amazonaws.com/media/catalog/product/M/u/Museum-Boola-Bardip-Perth-OMA-Hassell-22-Gr-3_Kopie.jpg?width=437&height=582&store=de_en&image-type=image https://detail-cdn.s3.eu-central-1.amazonaws.com/media/catalog/product/M/u/Museum-Boola-Bardip-Perth-OMA-Hassell-23-Schnitt_Kopie.jpg?width=437&height=582&store=de_en&image-type=image https://detail-cdn.s3.eu-central-1.amazonaws.com/media/catalog/product/M/u/Museum-Boola-Bardip-Perth-OMA-Hassell-24-Schnitt_Kopie.jpg?width=437&height=582&store=de_en&image-type=image
Copyright © 2024 DETAIL. All rights reserved.