Helga de Alvear Foundation in Cáceres: Art Palace at an Old Quarter’s Edge
Foto: Luis Asín
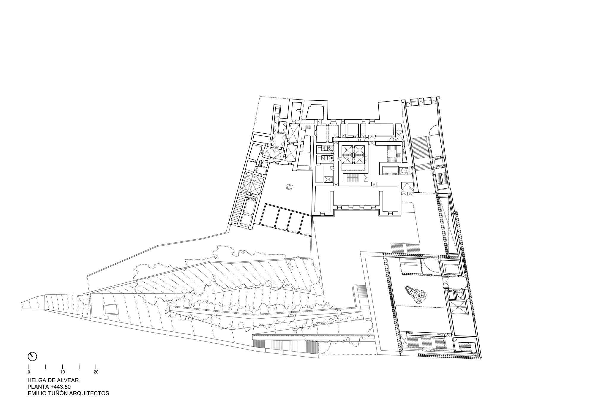
Fernab der großen Kunstmetropolen, in Cáceres in der spanischen Extremadura, hat sich die 1936 in Deutschland geborene Helga de Alvear über die Jahre eine Kunstsammlung aufgebaut, die in Europa ihresgleichen sucht: Rund 2500 Werke moderner und zeitgenössischer Künstler von Ai Weiwei bis Marcel Duchamp und von Santiago Sierra bis Jeff Wall nennt sie ihr Eigen. Viel zu viele also für den bisherigen Sitz ihrer Kunststiftung, weshalb sie 2014 Emilio Tuñón und sein Büro Tuñón Arquitectos beauftragte, dem Stadtpalais am Rande der Altstadt von Cáceres einen großen Erweiterungsbau zur Seite zu stellen. Zuvor hatten Tuñón und sein 2012 verstorbener Partner Luís Mansilla auch schon das vom Anfang des 20. Jahrhunderts datierende Bestandsgebäude saniert. Es beherbergt künftig Säle für Wechselausstellungen, die Stiftungsbüros, eine Bibliothek und Werkstätten. Die Dauerausstellung sowie das Kunstlager der Sammlerin sind dagegen im Neubau untergebracht.
Das Ausstellungsgebäude steht auf einem Hanggrundstück am Rand der Altstadt und vermittelt zwischen dem Eingangsniveau des Altbaus im Norden und der deutlich tiefer gelegenen Wohnstraße im Süden. Ausstellungssäle auf vier Ebenen nehmen den größten Teil des Bauvolumens ein. Parallel zu dieser Raumsequenz legten die Architekten im Freien einen neuen, öffentlich zugänglichen Rampen- und Treppenweg an, der die Altstadt und die südlich angrenzende Vorstadt quer über das Grundstück miteinander verbindet.
Die Altstadt von Cáceres zählt zum Weltkulturerbe und ist ein bedeutender Touristenmagnet in der ansonsten dünn besiedelten Region. Ihre Renaissancepaläste sind von einer strengen, bisweilen etwas wehrhaft anmutenden Eleganz. Das Fassadenmaterial, ockerfarbener Sandstein, verleiht ihnen ein einheitliches Gepräge.
Diesem Charakter entspricht auch der Neubau von Tuñón Arquitectos, wobei diese auf Weißbeton statt Sandstein setzten. Geschosshohe Pfeiler bilden eine umlaufende Kolonnade vor Fensteröffnungen und geschlossenen Wandabschnitten gleichermaßen. Hinzu kommen Fensterrahmen und Einbauten aus Eichenholz sowie ein dunkler, polierter Betonfußboden im Gebäudeinneren.
Weitere Informationen:
Mitarbeiter: Carlos Brage, Andrés Regueiro, Ruben Arend, Rosa Bandeirinha, Inés García de Paredes
Ingenieure: Gogaite, Úrculo































