Larchwood and brick: St. Peter's parish community centre in Stuttgart
Foto: Brigida González
A new building was to meet the requirements the old church was no longer able to fulfil, with the wish for a smaller sacral space, more room for the children's day care centre and a flexible arrangement of space leading to demolition of the run-down building from the seventies and construction of a modern equivalent.
Urban planning situation
The new building holds a conspicuous corner within its context, while its tall sacral space sets a clear accent in the urban setting. Surrounded by greenery on three sides, the church is positioned a certain distance from the neighbouring buildings, enabling visibility both from afar and from differing lines of sight. A sole adjacent building has also been erected at the jointly-owned plot, namely an establishment operated by the Liebenau Foundation for the physically and mentally impaired. Both buildings are based on the same clear architectural grid and come in a simple form language.
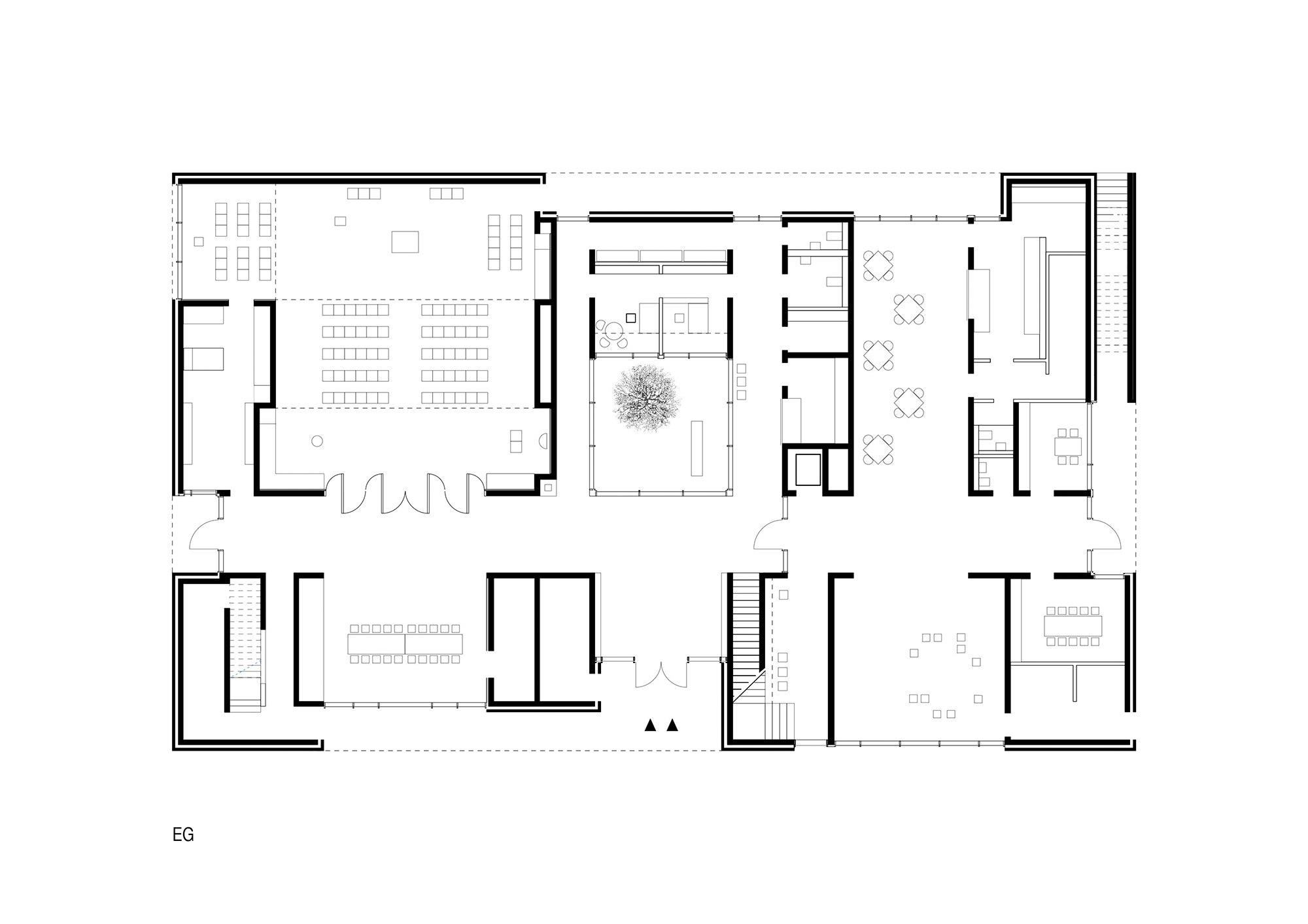
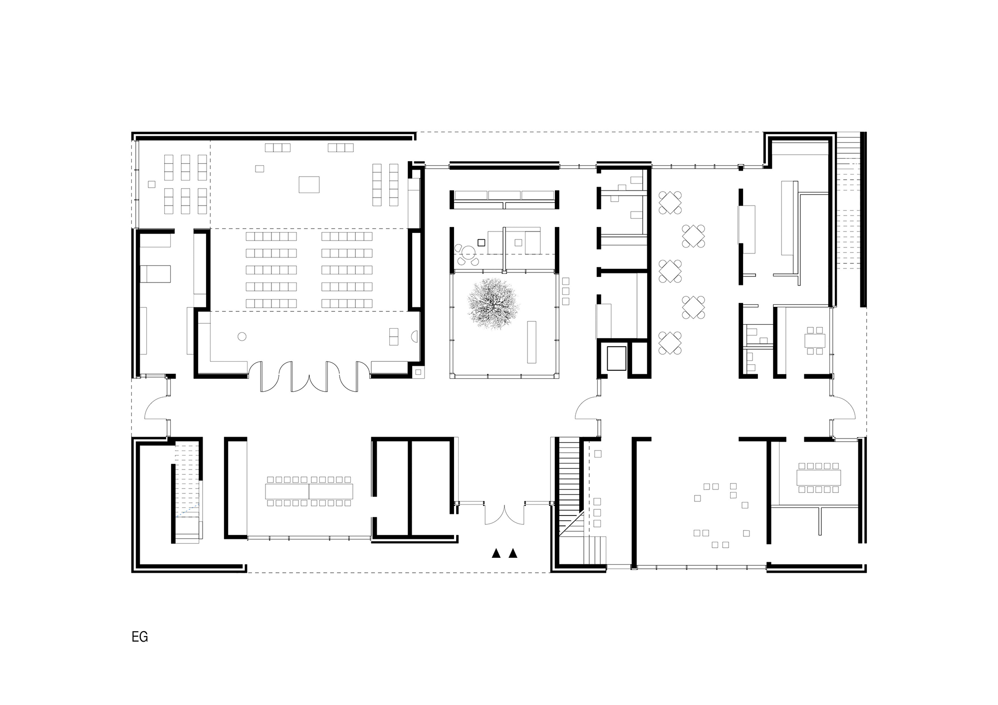
Interior circulation
Inside the building, an axial principle also applies to the arrangement of space, with intersecting lines of movement forming walkways and access areas. Space is organized in a linear and simple manner to facilitate orientation. The main entrance leads directly over to the glazed atrium, which provides the central areas with natural light. From here the broadest passageway continues on to the sacral space.
Symmetry of the sacral space
The sacral space is practically square in shape and characterised by a well-ordered axial symmetry. The ceiling height increases in steps from the entrance to the altar. Solely the lateral apsis with its south-facing window breaches the stringent order, whereby sun shining through the stained-glass of the window introduces a shimmering play of light. Both the stained-glass windows and the liturgical objects were designed by the artist Madleine Dietz of Landau.
A few elements recall the former church, as seen by religious statues that have found a new home in their own niches. Mosaic Stations of the Cross from the old church were saved and restored and have now been provided a place on a light-coloured wall in the foyer.















