// Check if the article Layout ?>
Layer by layer: Stratum House by stpmj
Photo: Song Yousub
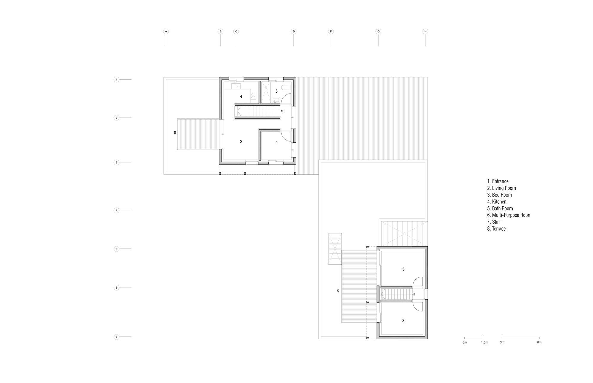
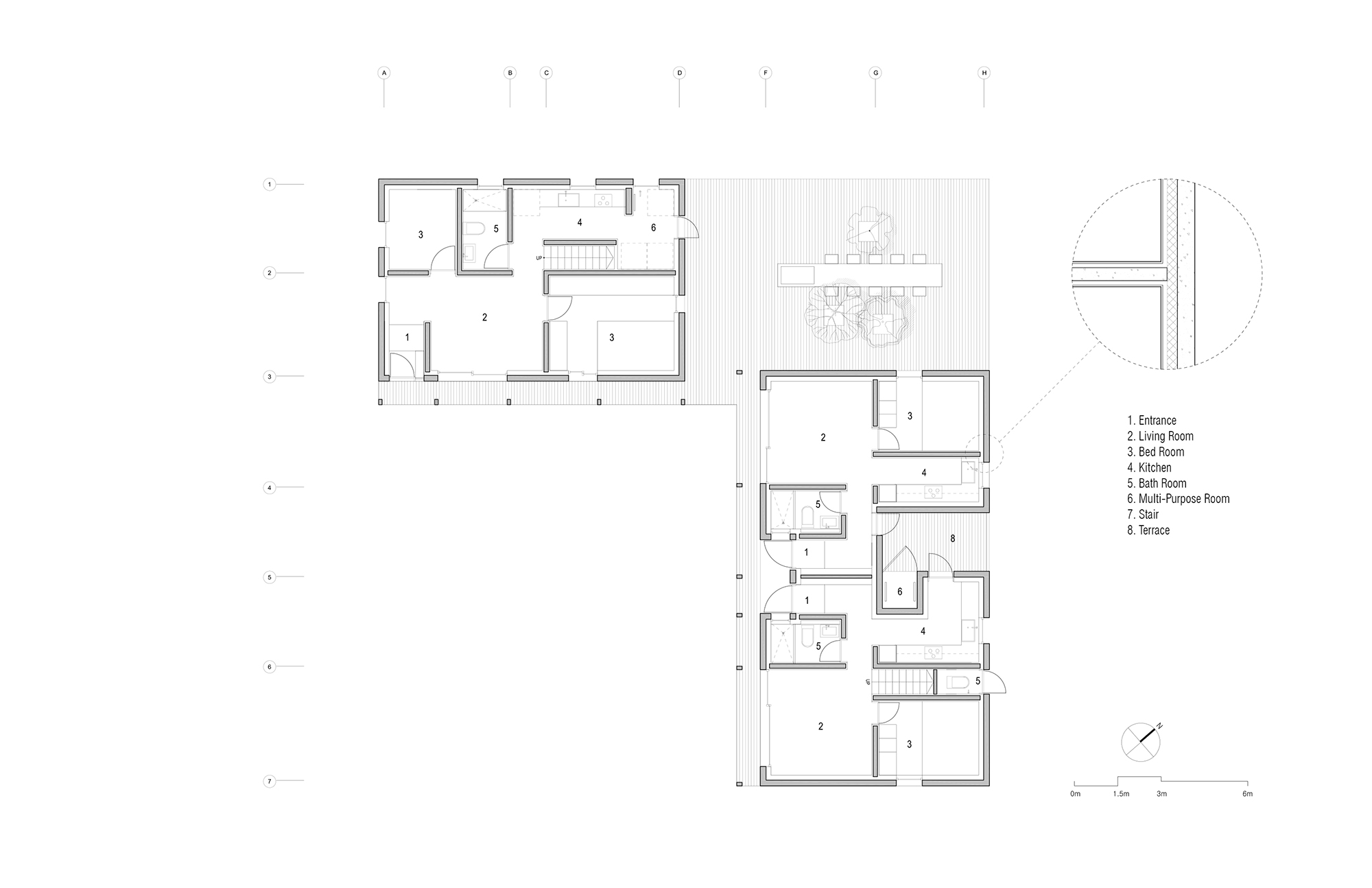
This multi-family dwelling project by Korean studio stpmj is, to a certain extent, a home game. On a rectangular lot, they designed two separate structures with three individual living units arranged as a small ensemble around a communal courtyard and garden. The lovingly designed exterior space is directly adjacent to the south side of the building site. It is surrounded by wooden boardwalks and is planted in the middle. Moreover, it provides access to the houses.
The two buildings are located to the northwest and northeast. They stand perpendicular to each other, face the courtyard and are linked by a communal terrace in the north corner. Both houses are sleek, two-storey cubes covered with flat roofs. The design of the floor plan pays equal attention to functionality and optimal use of space. While the living spaces, which are found on the ground floor, face either south or east and connect all areas, there are more intimate rooms upstairs. The first upper storey offers small terraces for a bit of privacy. The design of the units is bright and sleek: white surfaces combined with warm wooden floors create a pleasant living atmosphere.
The real eye-catcher in this project comes from the material concrete and its preparation. A number of experiments which upheld the parameters for strength led to changes in the material’s consistency, texture and colour: a palette of various “types” of concrete. On the one hand, this came from the proportions in the mixture; on the other, from modifications to the additives and pigments. Within 22 days, the walls grew one layer at a time. They now function as indoor-insulated exposed concrete that is unclad on the outside. The façades vary not only in their colours, but also in their texture, giving Stratum House its characteristic exterior.
The two buildings are located to the northwest and northeast. They stand perpendicular to each other, face the courtyard and are linked by a communal terrace in the north corner. Both houses are sleek, two-storey cubes covered with flat roofs. The design of the floor plan pays equal attention to functionality and optimal use of space. While the living spaces, which are found on the ground floor, face either south or east and connect all areas, there are more intimate rooms upstairs. The first upper storey offers small terraces for a bit of privacy. The design of the units is bright and sleek: white surfaces combined with warm wooden floors create a pleasant living atmosphere.
The real eye-catcher in this project comes from the material concrete and its preparation. A number of experiments which upheld the parameters for strength led to changes in the material’s consistency, texture and colour: a palette of various “types” of concrete. On the one hand, this came from the proportions in the mixture; on the other, from modifications to the additives and pigments. Within 22 days, the walls grew one layer at a time. They now function as indoor-insulated exposed concrete that is unclad on the outside. The façades vary not only in their colours, but also in their texture, giving Stratum House its characteristic exterior.





















