Let There Be Light: Single-Family Home with Intelligent Façade by Layan
Photo: Peter Bennetts
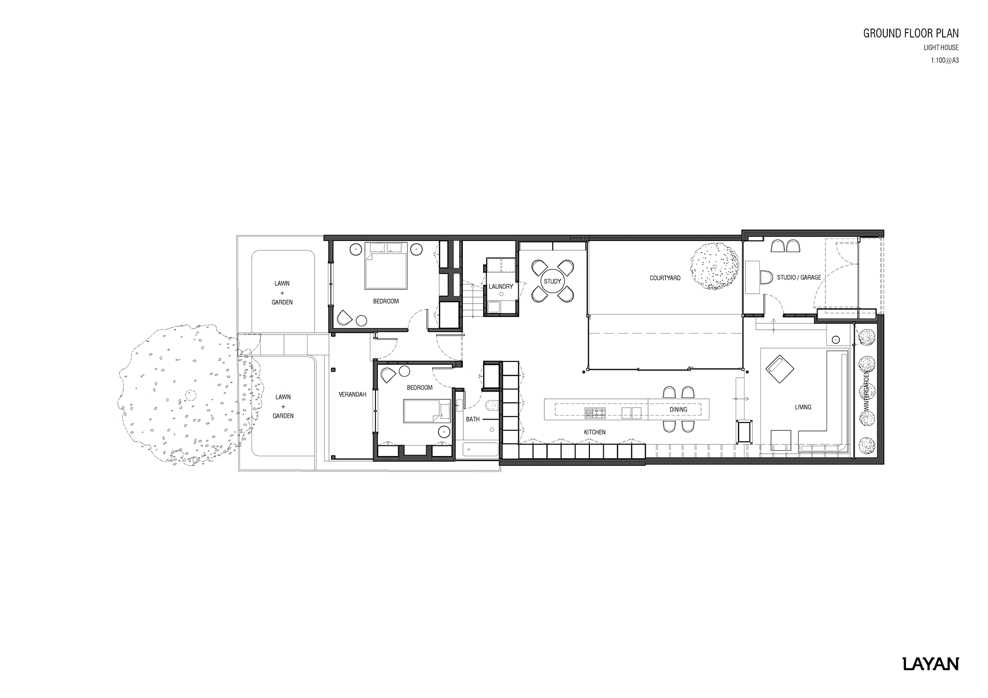
Over the course of the renovation project, the architects expanded the low building by a two-storey addition that creates sufficient living space for the entire family. According to the requirements of the historic preservation office, the street-side existing structure and its façade must remain unchanged. In consideration for the neighbours, the new wing will stand on the rear portion of the lot.
The ground floor comprises an office, an open living-dining area with kitchen and finally the addition, which features a stairway, bathroom and two bedrooms. The new upper level is home to the master bedroom with its adjacent dressing room and ensuite bathroom. All the spaces on the ground floor are arranged around a central inner courtyard surrounded by ceiling-high glazing. This not only lets extensive light and air indoors, but also provides a sheltered place to relax. In the lower areas muted, warm colours and materials determine the look of the house. Both the walls and patio are clad with cream-coloured travertine brick. American oak and terrazzo flooring provide timeless elegance.
The eponymous highlight of Light House is the intelligent façade that veils the upper storey. It was meticulously planned by the client and the director from The Flaming Beacon themselves; it consists of 907 polyethylene discs. These decorative plastic elements are mounted in two layers on a subconstruction of stainless-steel pipes and provide protection from both the sun and undesired views into the house. They direct the light and cast myriad shadows in the rooms. Furthermore, each of the discs bears an intelligent LED: altogether, these transform the façade into a diffuse luminaire. What’s more, they also support the residents’ melatonin balance, which has a significant effect on sleep quality.
Further information:
Cost: 590.000 €




















