A Glowing Sports Pavilion: Campus Addition in Madrid
Foto: Javier Callejas
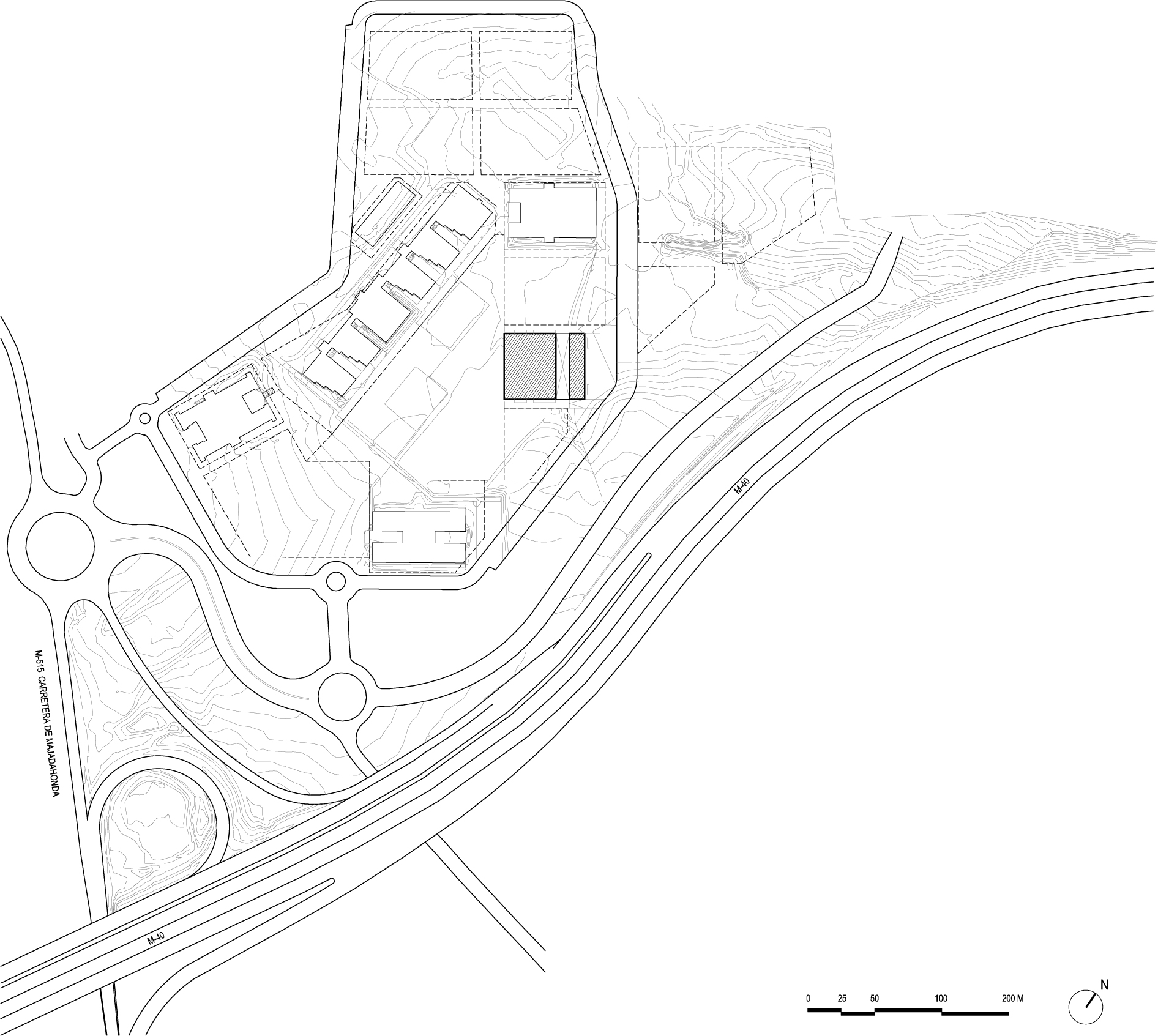
Für die Francisco de Vitoria-Universität in Pozuelo geplant, beinhaltet der neue Sport- und Lernkomplex eine Sporthalle, Multifunktionsräume, Physiotherapie-Einrichtungen, sowie ein Schwimmbecken im Untergeschoss. Zum Hauptplatz des Campus ausgerichtet kann die Sporthalle für unterschiedliche universitäre Veranstaltungen umgenutzt werden und bildet einen qualitativen Aufenthaltsraum.
Der Neubau passt sich in Höhe, Volumen und Ausrichtung den umgebenden Bauten auf dem Campus an. Der Komplex besteht aus einem Sportpavillon und einem Körper für Klassen- und Multifunktionsräume. Die beiden klar definierten Kuben sind über einen eingeschossigen Gebäudeteil miteinander verbunden, dessen Dach als Patio im 1. OG fungiert.
Die beiden Bauten unterscheiden sich einerseits durch ihre Dimensionen, andererseits durch Fassadengestaltung und Materialität. Während der Lernkomplex und der eingeschossige Verbindungsbau eine introvertierte Anmutung durch eine geschlossene Fassade aus glasfaserverstärkten Betonfertigteilen aufweisen, zeigt sich der Sportpavillon als transluzenter, leuchtender Körper.
Je nach Ausrichtung hat das Sportzentrum eine unterschiedliche Geste. Die Südfassade besteht aufgrund der starken Sonneneinstrahlung aus vorgefertigten Glasfaserbetonteilen, in Nord-West- und Nord-Ost-Richtung präsentiert sich der Körper mit einer Pfosten-Riegel-Fassade aus transluzentem Glas. Die Süd-West-Fassade betont die Verbindung zum Hauptcampus mit einem bodentiefen Fensterband aus transparentem Glas.
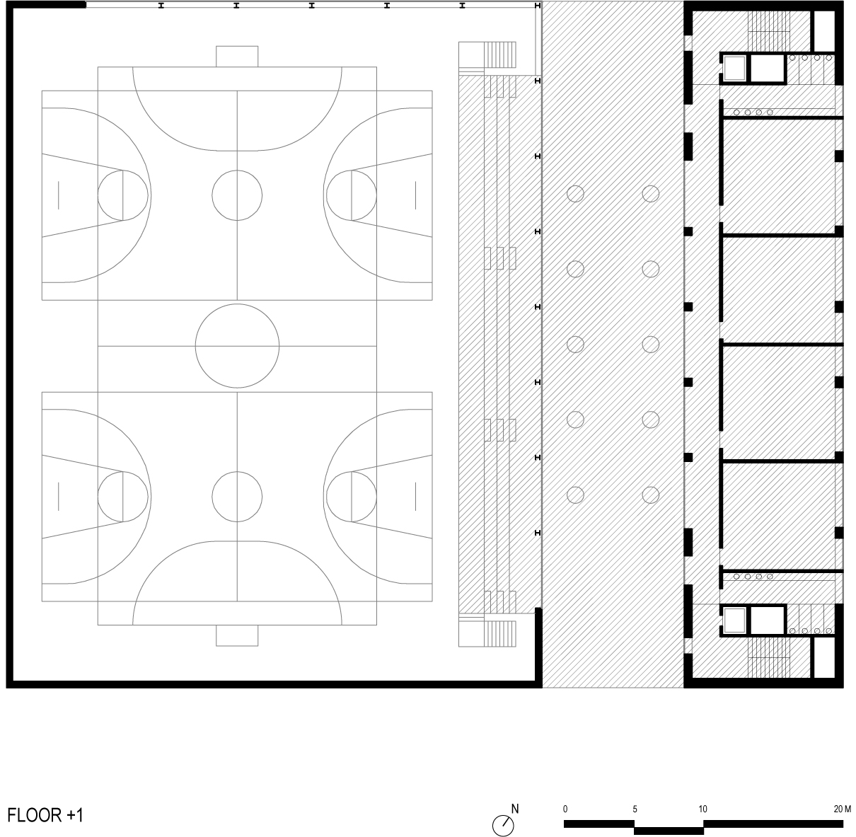
Die große Spannweite innerhalb der Sporthalle wird stützenfrei mit Fachwerkträgern überbrückt. Im Keller über dem Schwimmbecken werden Unterzüge als konstruktives Element verwendet. Sämtliche Bestandteile des Gebäudes sind in weißer Farbe gehalten, wodurch die Kubatur insgesamt sehr zurückhaltend und schlicht wirkt.





















